Івано-Франківська обл., Надвірнянський р-н, м.Надвірна, вул.Мазепи, 1. Оренда – приміщення 5-го поверху, площею 249,8 кв.м. (П)

16 859.00 грн
67.49 грн / м2
Україна, Івано-Франківська обл., Надвірнянський р-н, м. Надвірна, вул. Мазепи, 1
Перейти до аукціону на сайті
  • Інформація
  • Опис
  • Документи
Дата оголошення пропозиції:
08 листопада 2024
Площа:
249.80 м2
Тип об’єкта:
Приміщення
Тип аукціону:
Англійський аукціон
Статус аукціону:
Аукціон не відбувся
Тип угоди:
Оренда
Розмір мінімального кроку:
200.00 ₴
Розмір гарантійного внеску:
10 115.40 ₴
Початок прийому пропозицій:
08.11.2024 13:28:32
Завершення прийому пропозицій:
09.12.2024 20:00:00
Проведення аукціону:
10.12.2024 12:00:00
Лот:
CLE001-UA-20241108-52122
№ лоту (УТК):
UTK081124_07P
Лот виставляється на торги (раз):
1
Стислий опис майна:
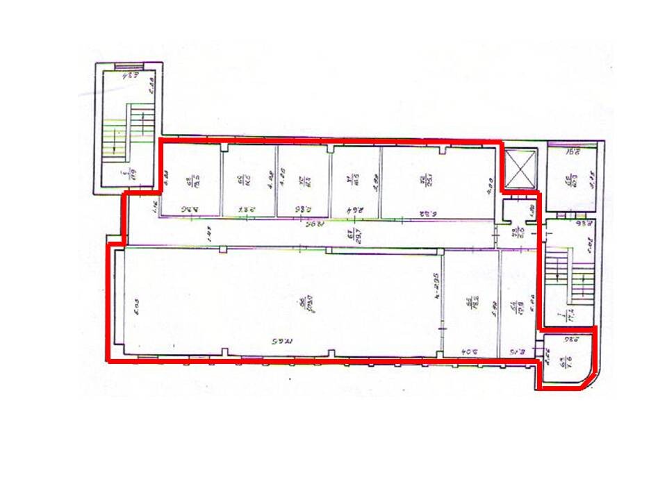
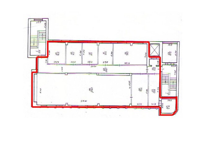
Пропонуються до оренди приміщення 5-го поверху, площею 249,8 кв.м. в м.Надвірна, Надвірнянського р-ну, Івано-Франківської обл., по вул.Мазепи, 1. Будівля знаходиться в центральній частині міста, розвинена інфраструктура, високий пішохідний та транспортний потік. Характеристики кількість поверхів – 5 Загальна площа – 1885,9 кв.м. Площа запропонована до оренди – 249,8 кв.м. Дозволена потужність (на орендовану площу) - 3,0 кВт Опалення – газове; земельна ділянка – 0,3877 га
Адреса місцезнаходження майна:
Україна, Івано-Франківська обл., Надвірнянський р-н, м. Надвірна, вул. Мазепи, 1
Схожі пропозиції
02.08.2023
м. Івано-Франківськ, вул. Довга, 58. Оренда – приміщення підвалу виробничого будинку, площею 57,6 кв.м. (В)
3 070.08 грн
53.30 грн / м2
Приміщення
м. Івано-Франківськ, вул. Довга, 58. Оренда – приміщення підвалу виробничого будинку, площею 57,6 кв.м. (В)
Україна, Івано-Франківська обл., м. Івано-Франківськ, вулиця Довга, 58
Івано-Франківська обл., Коломийський р-н, смт.Заболотів, вул.Грушевського, 5. Оренда – Приміщення 2-го поверху, площею 304,1 м.кв. (В)
7 918.76 грн
26.04 грн / м2
Приміщення
Івано-Франківська обл., Коломийський р-н, смт.Заболотів, вул.Грушевського, 5. Оренда – Приміщення 2-го поверху, площею 304,1 м.кв. (В)
Україна, Івано-Франківська обл., Коломийський р-н, смт.Заболотів, вул.Грушевського, 5
08.10.2025
Івано-Франківська обл., Калуський р-н, смт. Рожнятів, площа Єдності, 9. Оренда – Приміщення 3-го поверху площею 100,80 м.кв. (В)
1 257.98 грн
12.48 грн / м2
Приміщення
Івано-Франківська обл., Калуський р-н, смт. Рожнятів, площа Єдності, 9. Оренда – Приміщення 3-го поверху площею 100,80 м.кв. (В)
Україна, Івано-Франківська обл., Рожнятів, площа Єдності, 9
28.12.2023
Івано-Франківська обл., м. Івано-Франківськ, вул. В.Симоненка,1;   Оренда – приміщення 3-го поверху, площею 800,2 м.кв (В)
50 444.61 грн
63.04 грн / м2
Приміщення
Івано-Франківська обл., м. Івано-Франківськ, вул. В.Симоненка,1; Оренда – приміщення 3-го поверху, площею 800,2 м.кв (В)
Україна, Івано-Франківська обл., Івано-Франківськ, вул. Василя Симоненка,1
Переглянуті пропозиції
14.11.2024
Одеська обл., м. Одеса, вул. Балківська, буд.№54. Оренда – приміщення 3-го поверху площею 228,90 кв.м. (В)
18 941.48 грн
82.75 грн / м2
Приміщення
Одеська обл., м. Одеса, вул. Балківська, буд.№54. Оренда – приміщення 3-го поверху площею 228,90 кв.м. (В)
Україна, Одеська обл., м. Одеса, вул. Балківська, буд.№54
05.06.2024
Полтавська обл., Кременчуцький р-н., с. Вишняки, вул. Шкільна,14;   Оренда – Частина будівлі площею 41,2 кв.м. (В)
500.58 грн
12.15 грн / м2
Будівля
Полтавська обл., Кременчуцький р-н., с. Вишняки, вул. Шкільна,14; Оренда – Частина будівлі площею 41,2 кв.м. (В)
Україна, Полтавська обл., Вишняки, вул. Шкільна,14
12.07.2023
Харківська обл., Красноградський р-н, смт. Зачепилівка, вул. Паркова, 3. Оренда - приміщення на 1-му поверсі площею 82,8 кв.м. (В)
2 235.60 грн
27.00 грн / м2
Приміщення
Харківська обл., Красноградський р-н, смт. Зачепилівка, вул. Паркова, 3. Оренда - приміщення на 1-му поверсі площею 82,8 кв.м. (В)
Україна, Харківська обл., Красноградський р-н, смт. Зачепилівка, вул. Паркова, 3
21.03.2024
Полтавська обл., Миргородський р-н., смт. Шишаки, вул. Корніліча, буд.10. Оренда – приміщення 2-го поверху площею 32,00 кв.м. (В)
500.80 грн
15.65 грн / м2
Приміщення
Полтавська обл., Миргородський р-н., смт. Шишаки, вул. Корніліча, буд.10. Оренда – приміщення 2-го поверху площею 32,00 кв.м. (В)
Україна, Полтавська обл., Миргородський р-н., смт. Шишаки, вул. Корніліча, буд.10