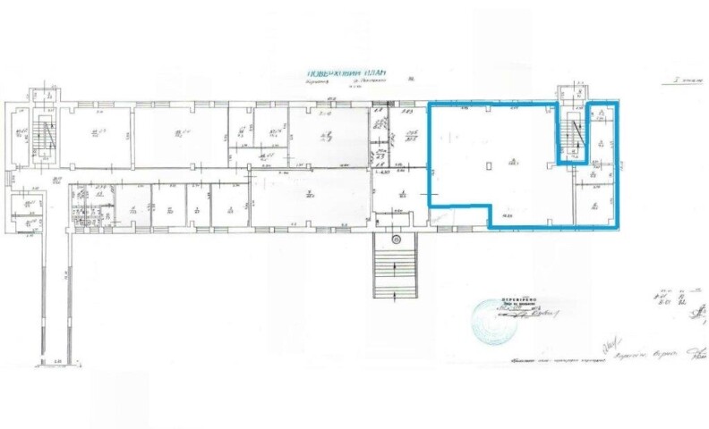
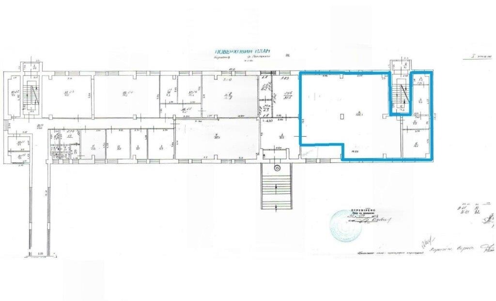
Львівська обл., м. Борислав, вул. Д.Галицького,32. Оренда – приміщення 1-го поверху площею 184,71 кв.м. (В)

4 617.50 грн
25.00 грн / м2
Україна, Львівська обл., м. Борислав, вул. Д.Галицького,32
Перейти до аукціону на сайті
  • Інформація
  • Опис
  • Документи
Дата оголошення пропозиції:
31 січня 2022
Площа:
184.71 м2
Тип об’єкта:
Приміщення
Тип аукціону:
Англійський аукціон
Статус аукціону:
Аукціон не відбувся
Тип угоди:
Оренда
Розмір мінімального кроку:
200.00 ₴
Розмір гарантійного внеску:
2 770.50 ₴
Початок прийому пропозицій:
31.01.2022 11:48:55
Завершення прийому пропозицій:
02.03.2022 20:00:00
Лот:
UA-PS-2022-01-31-000011-1
№ лоту (УТК):
UTK160721_08P
Лот виставляється на торги (раз):
6
Стислий опис майна:
Пропонується до оренди приміщення 1-го поверху площею 184,71 кв.м. Будівля знаходиться у центральній частини міста, розвинена інфраструктура. Характеристики: кількість поверхів – 3; Опалення - автономне , електропостачання,водопостачання, водовідведення – централізоване; Вільна до використання потужність – 40кВт; земельна ділянка – 0,5287 га (договір оренди)
Адреса місцезнаходження майна:
Україна, Львівська обл., м. Борислав, вул. Д.Галицького,32
Схожі пропозиції
25.02.2025
Львівська обл., м. Кам’янка-Бузька, вул. Грушевського, 15;  Оренда – приміщення 1-го поверху площею 14,20 кв. м. (В)
2 013.56 грн
141.80 грн / м2
Приміщення
Львівська обл., м. Кам’янка-Бузька, вул. Грушевського, 15; Оренда – приміщення 1-го поверху площею 14,20 кв. м. (В)
Україна, Львівська обл., Кам’янка-Бузька, вул. Грушевського, 15
07.09.2022
Львівська обл., с. Болозів, вул. Шевченка,73. Оренда – приміщення площею 47,80 кв. м (В)
677.80 грн
14.18 грн / м2
Приміщення
Львівська обл., с. Болозів, вул. Шевченка,73. Оренда – приміщення площею 47,80 кв. м (В)
Україна, Львівська обл., с. Болозів, вул. Шевченка,73
21.06.2024
Львівська обл., м. Львів, вул. Виговського, 29а. Оренда – приміщення 3-го поверху площею 508,20 кв.м. (В)
45 743.08 грн
90.01 грн / м2
Приміщення
Львівська обл., м. Львів, вул. Виговського, 29а. Оренда – приміщення 3-го поверху площею 508,20 кв.м. (В)
Україна, Львівська обл., м. Львів, вул. Виговського, 29а
Львівська обл., м. Новий Розділ, пр. Шевченка, 30. Оренда – приміщення  2-го поверху 49,6 кв.м.
441.94 грн
8.91 грн / м2
Приміщення
Львівська обл., м. Новий Розділ, пр. Шевченка, 30. Оренда – приміщення 2-го поверху 49,6 кв.м.
Україна, Львівська обл., м. Новий Розділ, пр. Шевченка, 30
Переглянуті пропозиції
29.07.2025
м. Харків, пр-т Ювілейний,66. Оренда – приміщення 2-го поверху площею 36,5 кв.м (В)
1 935.96 грн
53.04 грн / м2
Приміщення
м. Харків, пр-т Ювілейний,66. Оренда – приміщення 2-го поверху площею 36,5 кв.м (В)
Україна, Харківська обл., м. Харків, пр-т Ювілейний,66
21.03.2024
Полтавська обл., Кременчуцький р-н., смт. Семенівка, вул. Воїнів Інтернаціоналістів, 12/9. Оренда – Приміщення 3-го поверху площею 105,6 кв.м. (В)
570.24 грн
5.40 грн / м2
Приміщення
Полтавська обл., Кременчуцький р-н., смт. Семенівка, вул. Воїнів Інтернаціоналістів, 12/9. Оренда – Приміщення 3-го поверху площею 105,6 кв.м. (В)
Україна, Полтавська обл., Кременчуцький р-н., смт. Семенівка, вул. Воїнів Інтернаціоналістів, 12/9
14.09.2023
Львівська обл., м. Глиняни, вул. Св. Миколая, 5    Оренда – приміщення 1-го поверху площею 18,50 кв.м. (В)
647.69 грн
35.01 грн / м2
Приміщення
Львівська обл., м. Глиняни, вул. Св. Миколая, 5 Оренда – приміщення 1-го поверху площею 18,50 кв.м. (В)
Україна, Львівська обл., Глиняни, вул. Св. Миколая, 5
09.06.2023
Харківська обл., смт. Борова, вул. Центральна, 3, будівля Літ. А. Оренда – приміщення першого поверху, площею 65,0 кв.м. (В)
500.50 грн
7.70 грн / м2
Приміщення
Харківська обл., смт. Борова, вул. Центральна, 3, будівля Літ. А. Оренда – приміщення першого поверху, площею 65,0 кв.м. (В)
Україна, Харківська обл., смт. Борова, вул. Центральна, 3, будівля Літ. А