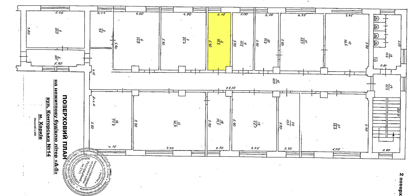
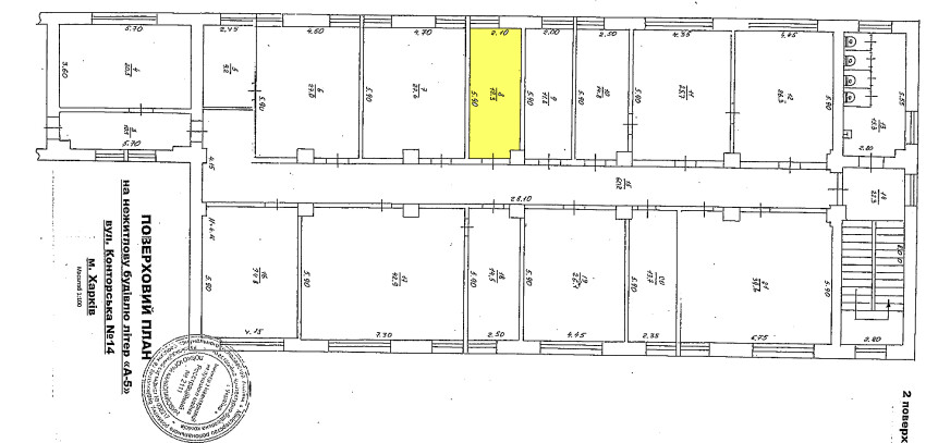
м.Харків, вул.Конторська,14; Оренда–приміщення 2-го поверху площею 12,3 кв.м (В)

852.39 грн
69.30 грн / м2
Україна, Харківська обл., Харків, вулиця Конторська, 14
Перейти до аукціону на сайті
  • Інформація
  • Опис
  • Документи
Дата оголошення пропозиції:
09 листопада 2024
Площа:
12.30 м2
Тип об’єкта:
Приміщення
Тип аукціону:
Англійський аукціон
Статус аукціону:
Аукціон не відбувся
Тип угоди:
Оренда
Розмір мінімального кроку:
50.00 ₴
Розмір гарантійного внеску:
511.43 ₴
Початок прийому пропозицій:
09.11.2024 12:06:36
Завершення прийому пропозицій:
10.12.2024 20:00:00
Проведення аукціону:
11.12.2024 11:00:00
Лот:
CLE001-UA-20241109-56962
№ лоту (УТК):
UTK070723_05T
Лот виставляється на торги (раз):
10
Стислий опис майна:
Пропонується до оренди приміщення 2-го поверху площею 12,3 кв.м. Будівля в центрі міста Харкова.15 хв до метро Центральний ринок. Характеристики: Кількість поверхів – 4; Загальна площа – 5611,00 кв.м_ Площа запропонована до оренди - 12,3 кв.м Дозволена потужність – 4 кВт Теплопостачання - відсутнє Земельна ділянка – 0,5169 га
Адреса місцезнаходження майна:
Україна, Харківська обл., Харків, вулиця Конторська, 14
Схожі пропозиції
05.11.2024
м.Харків, пр-т Ювілейний, 66;   Оренда – приміщення 2-го поверху площею 35,3 кв.м (В)
1 925.97 грн
54.56 грн / м2
Приміщення
м.Харків, пр-т Ювілейний, 66; Оренда – приміщення 2-го поверху площею 35,3 кв.м (В)
Україна, Харківська обл., Харків, проспект Ювілейний, 66
14.02.2024
Харківська обл., м. Первомайський, мікрорайон 3, буд.1-А. Оренда – приміщення першого поверху, площею 145,2 кв.м. (В)
871.20 грн
6.00 грн / м2
Приміщення
Харківська обл., м. Первомайський, мікрорайон 3, буд.1-А. Оренда – приміщення першого поверху, площею 145,2 кв.м. (В)
Україна, Харківська обл., м. Первомайський, мікрорайон 3, буд.1-А
11.12.2024
Харківська обл., м. Харків, вул. Рибалка, 3-А. Оренда – приміщення одноповерхової будівлі площею 10,00 кв.м. (В)
502.60 грн
50.26 грн / м2
Приміщення
Харківська обл., м. Харків, вул. Рибалка, 3-А. Оренда – приміщення одноповерхової будівлі площею 10,00 кв.м. (В)
Україна, Харківська обл., м. Харків, вул. Рибалка, 3-А
17.09.2024
м.Харків, вул. Старошишківська, 5а. Оренда – приміщення другого поверху площею 173,4 кв.м (П)
8 983.53 грн
51.81 грн / м2
Приміщення
м.Харків, вул. Старошишківська, 5а. Оренда – приміщення другого поверху площею 173,4 кв.м (П)
Україна, Харківська обл., м. Харків, вул. Старошишківська, 5а