Вінницька обл., Вінницький р-н, с. Івча, вул. Центральна, 35; Оренда – приміщення площею 35,0 кв.м. (В)

350.00 грн
10.00 грн / м2
Україна, Вінницька обл., Івча, вул. Центральна, 35
Перейти до аукціону на сайті
  • Інформація
  • Опис
  • Документи
Дата оголошення пропозиції:
21 листопада 2024
Площа:
35.00 м2
Тип об’єкта:
Приміщення
Тип аукціону:
Англійський аукціон
Статус аукціону:
Аукціон не відбувся
Тип угоди:
Оренда
Розмір мінімального кроку:
10.00 ₴
Розмір гарантійного внеску:
210.00 ₴
Початок прийому пропозицій:
21.11.2024 11:32:27
Завершення прийому пропозицій:
23.12.2024 20:00:00
Проведення аукціону:
24.12.2024 11:35:00
Лот:
CLE001-UA-20241121-10810
№ лоту (УТК):
UTK200522_10T
Лот виставляється на торги (раз):
10
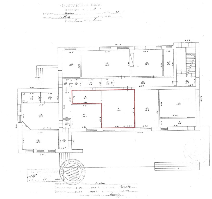
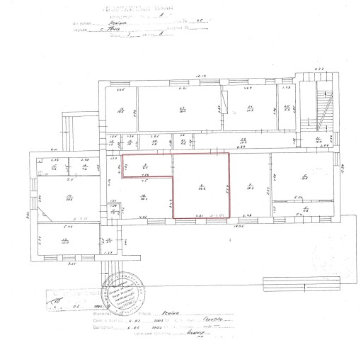
Стислий опис майна:
Пропонується до оренди приміщення площею 35,0 кв.м. Будівля знаходиться в центральній частині с. Івча в зоні житлової забудови на спільній території із селищною радою. Характеристики - Кількість поверхів – 2; - Загальна площа – 35,0 кв.м; - Площа запропонована до оренди – 35,0 кв.м. - Водопостачання та електропостачання відсутнє.
Адреса місцезнаходження майна:
Україна, Вінницька обл., Івча, вул. Центральна, 35
Схожі пропозиції
Вінницька обл., м. Іллінці, вул. Соборна, 29. Оренда – приміщення 1-го поверху
809.82 грн
19.80 грн / м2
Приміщення
Вінницька обл., м. Іллінці, вул. Соборна, 29. Оренда – приміщення 1-го поверху
Україна, Вінницька обл., м. Іллінці, вул. Соборна, буд. 29
18.09.2025
Вінницька обл., Хмільницький р-н, м. Козятин, вул. Незалежності 39. Оренда – приміщення 3-го поверху площею 288,40 кв.м. (В)
6 575.52 грн
22.80 грн / м2
Приміщення
Вінницька обл., Хмільницький р-н, м. Козятин, вул. Незалежності 39. Оренда – приміщення 3-го поверху площею 288,40 кв.м. (В)
Україна, Вінницька обл., Козятин, Козятин, вул. Незалежності 39
14.06.2024
Вінницька обл., м. Вінниця, вул. О. Береста, 6;   Оренда – Навіс площею 109,0 кв.м. (В)
5 166.60 грн
47.40 грн / м2
Приміщення
Вінницька обл., м. Вінниця, вул. О. Береста, 6; Оренда – Навіс площею 109,0 кв.м. (В)
Україна, Вінницька обл., Вінниця, вулиця Олексія Береста, 6
29.10.2025
Вінницька обл., м. Вінниця, вул. О. Береста, 6. Оренда – приміщення площею 215,90 кв.м. (В)
12 954.00 грн
60.00 грн / м2
Приміщення
Вінницька обл., м. Вінниця, вул. О. Береста, 6. Оренда – приміщення площею 215,90 кв.м. (В)
Україна, Вінницька обл., Вінниця, вулиця Олексія Береста, 6
Переглянуті пропозиції
18.05.2023
Чернігівська обл., м. Чернігів, вул. Текстильників,7. Оренда – приміщення 2-го поверху та частини підвалу, площею 363,6 кв.м. (В)
16 798.32 грн
46.20 грн / м2
Приміщення
Чернігівська обл., м. Чернігів, вул. Текстильників,7. Оренда – приміщення 2-го поверху та частини підвалу, площею 363,6 кв.м. (В)
Україна, Чернігівська обл., Чернігів, вулиця Текстильників, 7
30.01.2025
Вінницька обл., м. Вінниця, вул. М. Оводова, 22 ;     Оренда – приміщення 2-го поверху площею 12,0 кв.м. (В)
2 143.56 грн
178.63 грн / м2
Приміщення
Вінницька обл., м. Вінниця, вул. М. Оводова, 22 ; Оренда – приміщення 2-го поверху площею 12,0 кв.м. (В)
Україна, Вінницька обл., Вінниця, вулиця Миколи Оводова, 22
20.12.2023
Сумська обл., Сумський р-н, смт. Краснопілля, вул. Сумська, 5. Оренда – офісне приміщення 1-го поверху площею 20,10 кв.м. (В)
530.64 грн
26.40 грн / м2
Офіс
Сумська обл., Сумський р-н, смт. Краснопілля, вул. Сумська, 5. Оренда – офісне приміщення 1-го поверху площею 20,10 кв.м. (В)
Україна, Сумська обл., Сумський р-н, смт. Краснопілля, вул. Сумська, 5
23.08.2022
Полтавська обл., Лубенський р-н, с. Козубівка, вул. Шевченка, буд. 25. Оренда – частина будівлі площею 42,40 кв.м. (В)
267.97 грн
6.32 грн / м2
Будівля
Полтавська обл., Лубенський р-н, с. Козубівка, вул. Шевченка, буд. 25. Оренда – частина будівлі площею 42,40 кв.м. (В)
Україна, Полтавська обл., Козубівка, вул. Шевченка, буд. 25