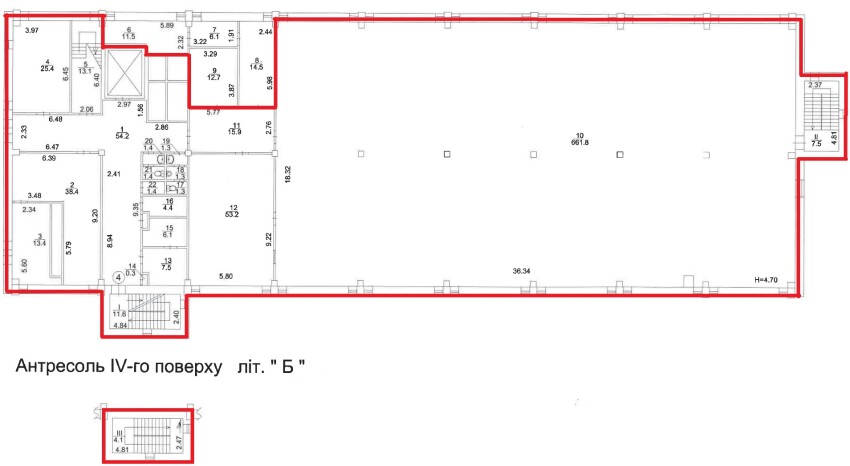
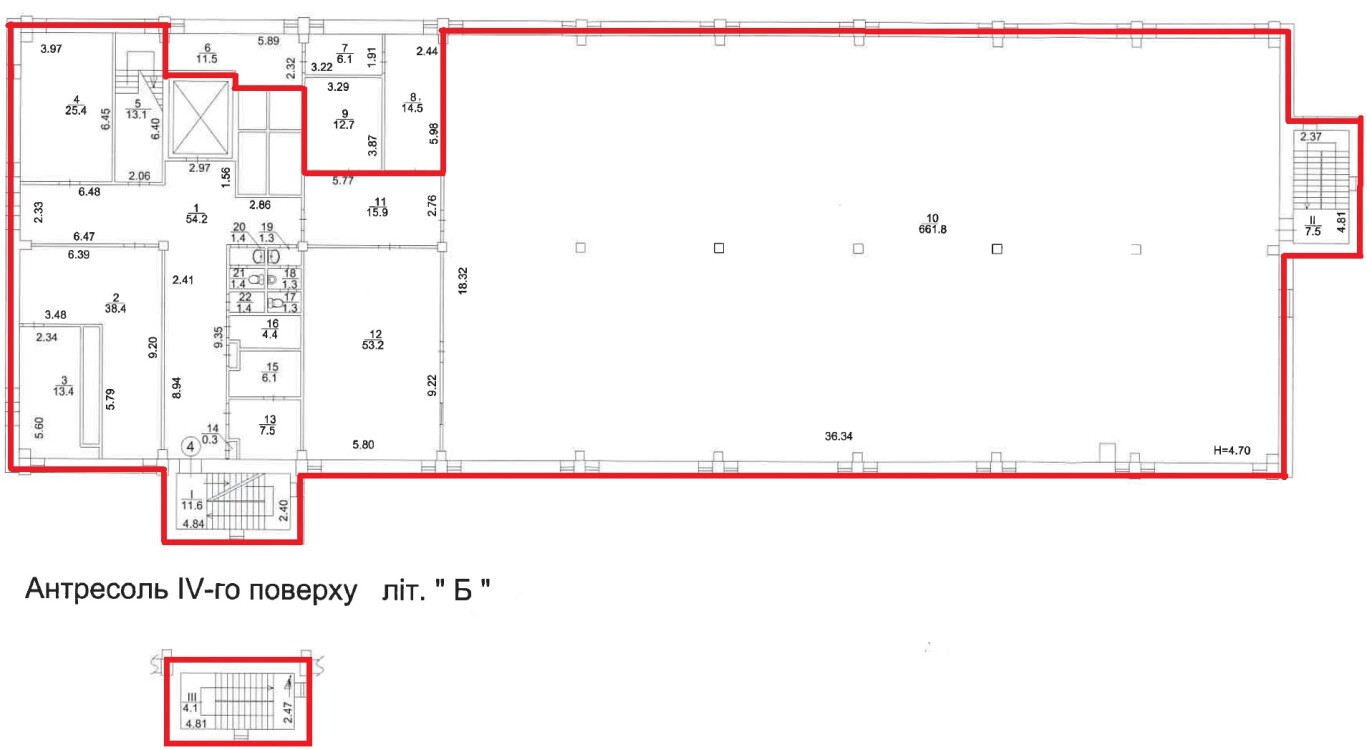
ДОВГОСТРОКОВА ОРЕНДА! м. Київ, вул. Салютна, 5а, літ. «Б»; Оренда – приміщення 3-го та 4-го поверхів площею 992,8 кв.м. (В)

122 720.01 грн
123.61 грн / м2
Україна, м.Київ, Київ, вулиця Салютна, 5а, літ.Б
Перейти до аукціону на сайті
  • Інформація
  • Опис
  • Документи
Дата оголошення пропозиції:
24 листопада 2024
Площа:
992.80 м2
Тип об’єкта:
Приміщення
Тип аукціону:
Англійський аукціон
Статус аукціону:
Аукціон не відбувся
Тип угоди:
Оренда
Розмір мінімального кроку:
1 500.00 ₴
Розмір гарантійного внеску:
73 632.00 ₴
Початок прийому пропозицій:
24.11.2024 19:07:51
Завершення прийому пропозицій:
25.12.2024 20:00:00
Проведення аукціону:
26.12.2024 11:55:00
Лот:
CLE001-UA-20241124-44434
№ лоту (УТК):
UTK040422_06T
Лот виставляється на торги (раз):
10
Стислий опис майна:
Пропонуються до оренди приміщення 3-го та 4-го поверху, літ. «Б», площею 992,8 кв.м . Будівля розташована в Шевченківському районі міста Києва, місцевість Нивки. Поруч розвинена інфраструктура, зупинки маршрутного транспорту, супермаркети, бізнес-центри, фінансові заклади, 5 хв. від ст. м. «Нивки». Вхід з двору. Доступ 24/7. Характеристики • кількість поверхів – 4; • сан. вузол, каналізація – присутні; • площа будівлі – літ. «Б» - 4892,1 м2; • опалення централізоване (міське); • земельна ділянка – 0,6317 га;
Адреса місцезнаходження майна:
Україна, м.Київ, Київ, вулиця Салютна, 5а, літ.Б
Схожі пропозиції
м. Київ, Антоновича 40 Оренда приміщень 6 пов.
273 168.00 грн
360.00 грн / м2
Приміщення
м. Київ, Антоновича 40 Оренда приміщень 6 пов.
Україна, м.Київ, місто Київ, вул. Антоновича, 40
09.09.2025
м. Київ, вул. Наталії Ужвій 1 (Подільський р-н). Оренда – приміщення 3-го поверху, загальною площею – 105,80 м. кв. (В)
6 919.32 грн
65.40 грн / м2
Приміщення
м. Київ, вул. Наталії Ужвій 1 (Подільський р-н). Оренда – приміщення 3-го поверху, загальною площею – 105,80 м. кв. (В)
Україна, м.Київ, Київ, 04108, м. Київ, вул. Наталії Ужвій 1
12.04.2023
м. Київ, пр-т. Василя Порика, 12А Оренда – приміщення 4-го поверху площею 861,8 кв.м. (П)
114 705.58 грн
133.10 грн / м2
Приміщення
м. Київ, пр-т. Василя Порика, 12А Оренда – приміщення 4-го поверху площею 861,8 кв.м. (П)
Україна, м.Київ, м. Київ, проспект Василя Порика, 12А
28.10.2025
 м. Київ, вулиця Академіка Шалімова, 39/8. Оренда – приміщення 1-го поверху, площею 54,30 м. кв.(В)
7 012.85 грн
129.15 грн / м2
Приміщення
м. Київ, вулиця Академіка Шалімова, 39/8. Оренда – приміщення 1-го поверху, площею 54,30 м. кв.(В)
Україна, м.Київ, Київ, вулиця Академіка Шалімова, 39/8