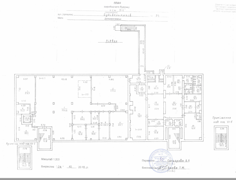
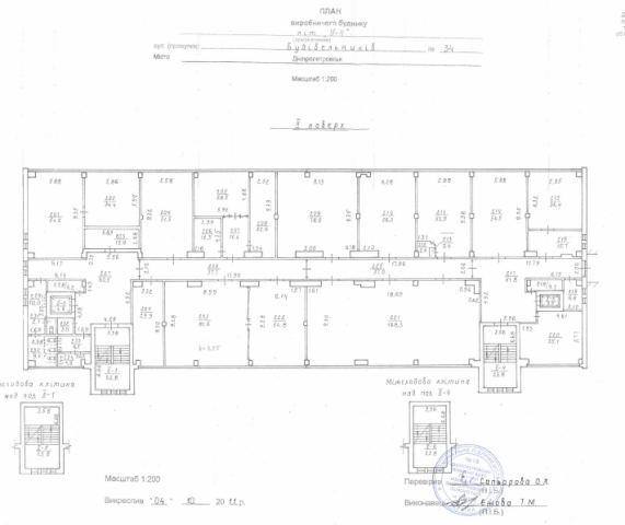
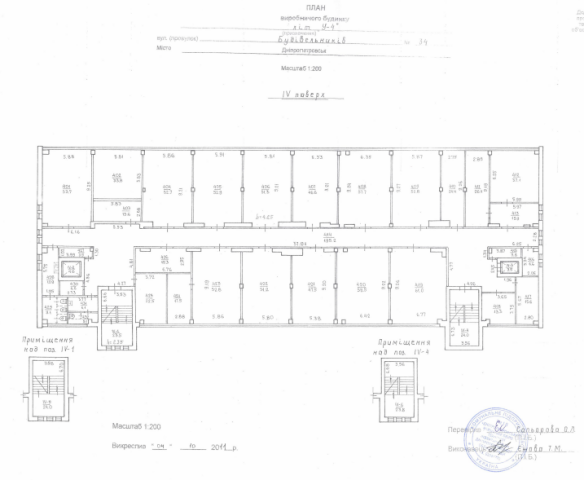
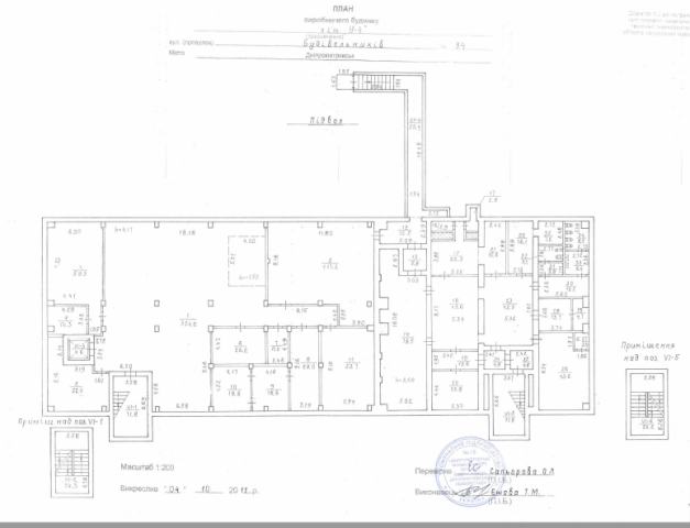
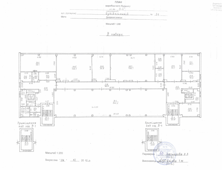
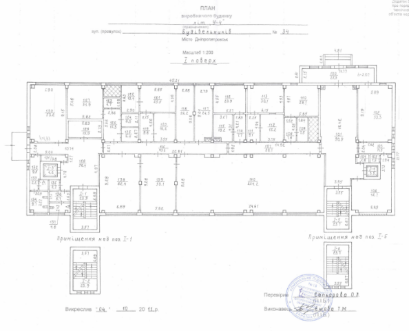
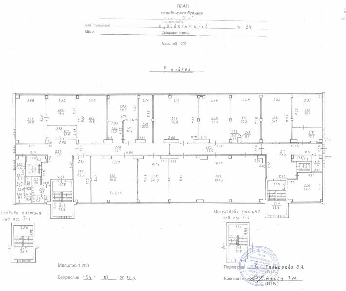
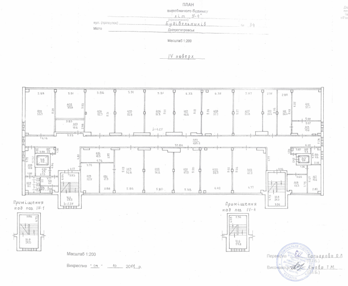
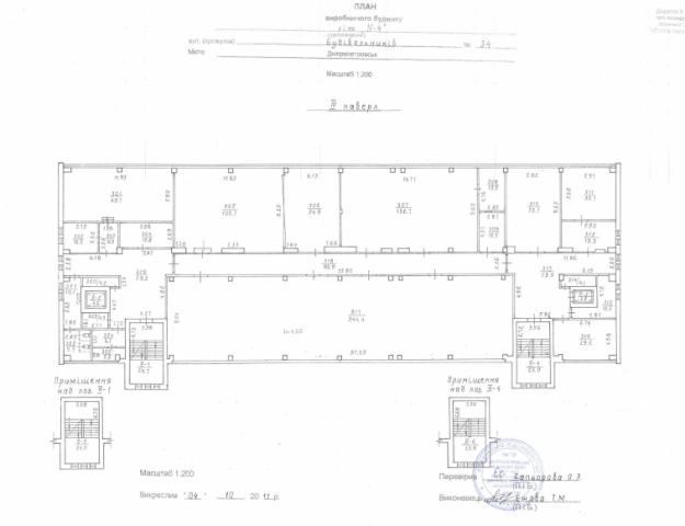
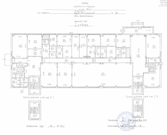
ДОВГОСТРОКОВА ОРЕНДА! Дніпропетровська обл., м. Дніпро, вул. Будівельників, буд. 34. Оренда – чотириповерхова будівля площею 6273,70 кв.м. (В)

154 333.02 грн
24.60 грн / м2
Україна, Дніпропетровська обл., м. Дніпро, вул. Будівельників, буд. 34
Перейти до аукціону на сайті
  • Інформація
  • Опис
  • Документи
Дата оголошення пропозиції:
02 лютого 2022
Площа:
6273.70 м2
Тип об’єкта:
Будівля
Тип аукціону:
Англійський аукціон
Статус аукціону:
Аукціон не відбувся
Тип угоди:
Оренда
Розмір мінімального кроку:
4 000.00 ₴
Розмір гарантійного внеску:
92 599.81 ₴
Початок прийому пропозицій:
02.02.2022 10:04:50
Завершення прийому пропозицій:
03.03.2022 20:00:00
Лот:
UA-PS-2022-02-02-000013-1
№ лоту (УТК):
UTK191021_01P
Лот виставляється на торги (раз):
4
Стислий опис майна:
Пропонується до оренди чотириповерхова будівля, площею 6273,70 кв.м. Будівля в Чечелівському районі міста. Поруч розташовані відділення пошт, магазини тощо. Вхід в приміщення спільний. Зручна транспортна розв’язка та інфраструктура. Характеристики: Кількість поверхів – 4; Загальна площа – 6273,70 кв.м_ Площа запропонована до оренди – 6273,70 кв.м Електропостачання, водопостачання. Земельна ділянка – 0 га (договір оренди)
Адреса місцезнаходження майна:
Україна, Дніпропетровська обл., м. Дніпро, вул. Будівельників, буд. 34
Схожі пропозиції
ДОВГОСТРОКОВА ОРЕНДА! Дніпропетровська обл., м. Дніпро, вул. Кармалюка, 6а. Оренда – одноповерхова будівля площею 219,7 кв.м. (В)
10 126.41 грн
46.09 грн / м2
Будівля
ДОВГОСТРОКОВА ОРЕНДА! Дніпропетровська обл., м. Дніпро, вул. Кармалюка, 6а. Оренда – одноповерхова будівля площею 219,7 кв.м. (В)
Україна, Дніпропетровська обл., м. Дніпро, вул. Кармалюка, 6а
08.08.2023
ДОВГОСТОКОВА ОРЕНДА! Дніпропетровська обл., м. Кам`янське, вул. Телефонічна, буд. 8. Оренда – Триповерхова будівля АТС-4, площею 1777,10 кв.м. (В)
10 964.71 грн
6.17 грн / м2
Будівля
ДОВГОСТОКОВА ОРЕНДА! Дніпропетровська обл., м. Кам`янське, вул. Телефонічна, буд. 8. Оренда – Триповерхова будівля АТС-4, площею 1777,10 кв.м. (В)
Україна, Дніпропетровська обл., м. Кам`янське, вул. Телефонічна, буд. 8
20.08.2024
ДОВГОСТРОКОВА ОРЕНДА!   Дніпропетровська обл., с. Новопокровка, вул. Центральна, 4; Оренда – комплекс будівель загальною площею 395,60 кв.м. (В)
13 984.46 грн
35.35 грн / м2
Будівля
ДОВГОСТРОКОВА ОРЕНДА! Дніпропетровська обл., с. Новопокровка, вул. Центральна, 4; Оренда – комплекс будівель загальною площею 395,60 кв.м. (В)
Україна, Дніпропетровська обл., с. Новопокровка, Центральна вулиця, 4
ДОВГОСТРОКОВА ОРЕНДА! Дніпропетровська обл., м. Дніпро, вул. Будівельників, буд. 34. Оренда – чотириповерхова будівля площею 6273,70 кв.м. (В)
123 466.42 грн
19.68 грн / м2
Будівля
ДОВГОСТРОКОВА ОРЕНДА! Дніпропетровська обл., м. Дніпро, вул. Будівельників, буд. 34. Оренда – чотириповерхова будівля площею 6273,70 кв.м. (В)
Україна, Дніпропетровська обл., м. Дніпро, вул. Будівельників, буд. 34
Переглянуті пропозиції
м. Харків, вул. Салтівське шосе, 2. Оренда - приміщення 1го поверху площею 63,0 кв.м. (В)
1 161.09 грн
18.43 грн / м2
Приміщення
м. Харків, вул. Салтівське шосе, 2. Оренда - приміщення 1го поверху площею 63,0 кв.м. (В)
Україна, Харківська обл., м. Харків, вул. Салтівське шосе, 2