Дніпропетровська обл., м. Кривий Ріг, вул. Героїв АТО, 30. Оренда – приміщення 1-го поверху площею 76,90 кв. м. (В)

8 997.30 грн
117.00 грн / м2
Україна, Дніпропетровська обл., м. Кривий Ріг, вул. Героїв АТО, 30
Перейти до аукціону на сайті
  • Інформація
  • Опис
  • Документи
Дата оголошення пропозиції:
29 листопада 2024
Площа:
76.90 м2
Тип об’єкта:
Приміщення
Тип аукціону:
Англійський аукціон
Статус аукціону:
Аукціон не відбувся
Тип угоди:
Оренда
Розмір мінімального кроку:
200.00 ₴
Розмір гарантійного внеску:
5 398.38 ₴
Початок прийому пропозицій:
29.11.2024 12:25:25
Завершення прийому пропозицій:
29.12.2024 20:00:00
Проведення аукціону:
30.12.2024 11:25:00
Лот:
CLE001-UA-20241129-51270
№ лоту (УТК):
UTK291124_01P
Лот виставляється на торги (раз):
1
Стислий опис майна:
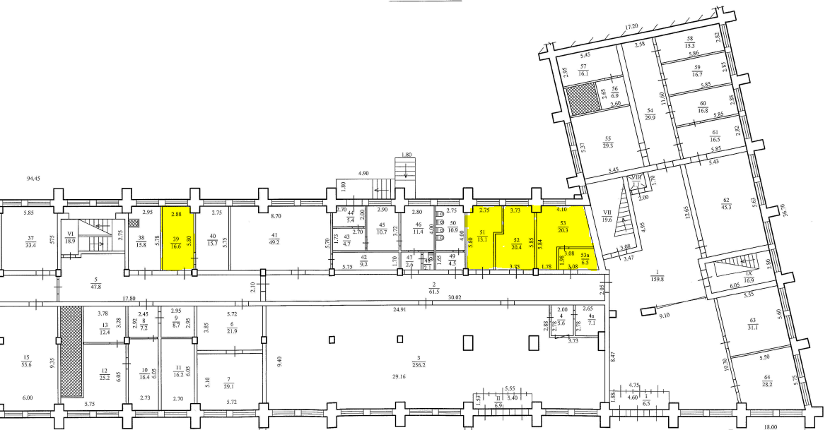
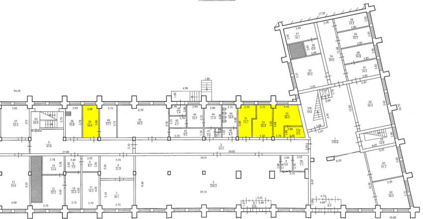
Пропонується до оренди приміщення 1-го поверху площею 76,90 кв. м (приміщення №№39,51-53,53а). Будівля знаходиться в центральному районі міста. Стан приміщення задовільний, підходить для офісу, Ідеальне місце під розвиток будь-якого бізнесу. Можливість передачі приміщень в суборенду. Характеристики: Кількість поверхів – 4-5 Загальна площа – 13040,10 кв.м. Площа запропонована до оренди – 76,90 кв. м. Електропостачання, теплопостачання, водопостачання централізоване; Площа земельної ділянки-0,4712 га (договір оренди) Ресурсні податки 8,77 грн.
Адреса місцезнаходження майна:
Україна, Дніпропетровська обл., м. Кривий Ріг, вул. Героїв АТО, 30
Схожі пропозиції
Дніпропетровська обл., м. Дніпро, бульвар Рубіновий, буд.18. Оренда приміщень 1-5 -го поверхів
73 564.83 грн
19.35 грн / м2
Приміщення
Дніпропетровська обл., м. Дніпро, бульвар Рубіновий, буд.18. Оренда приміщень 1-5 -го поверхів
Україна, Дніпропетровська обл., м. Дніпро, бульвар Рубіновий, буд.18
11.01.2023
Дніпропетровська обл., Апостолівський р-н, с. Мар`янське, вул. Терешкової, 7. Оренда – приміщення 1-го поверху площею 32,30 кв.м. (В)
607.89 грн
18.82 грн / м2
Приміщення
Дніпропетровська обл., Апостолівський р-н, с. Мар`янське, вул. Терешкової, 7. Оренда – приміщення 1-го поверху площею 32,30 кв.м. (В)
Україна, Дніпропетровська обл., Апостолівський р-н, с. Мар`янське, вул. Терешкової, 7
20.04.2023
Дніпропетровська обл., м. Кривий Ріг, вул. Водоп`янова, 1а. Оренда – приміщення 4-го поверху, площею 789,8 кв.м. (В)
25 399.97 грн
32.16 грн / м2
Приміщення
Дніпропетровська обл., м. Кривий Ріг, вул. Водоп`янова, 1а. Оренда – приміщення 4-го поверху, площею 789,8 кв.м. (В)
Україна, Дніпропетровська обл., Кривий Ріг, вулиця Водоп'янова, 1а
21.11.2025
Дніпропетровська обл., м. Жовті Води, вул. Свободи, 39. Оренда – приміщення 3-го поверху площею 32,50 кв.м. (В)
650.00 грн
20.00 грн / м2
Приміщення
Дніпропетровська обл., м. Жовті Води, вул. Свободи, 39. Оренда – приміщення 3-го поверху площею 32,50 кв.м. (В)
Україна, Дніпропетровська обл., Жовті Води, бульвар Свободи, 39