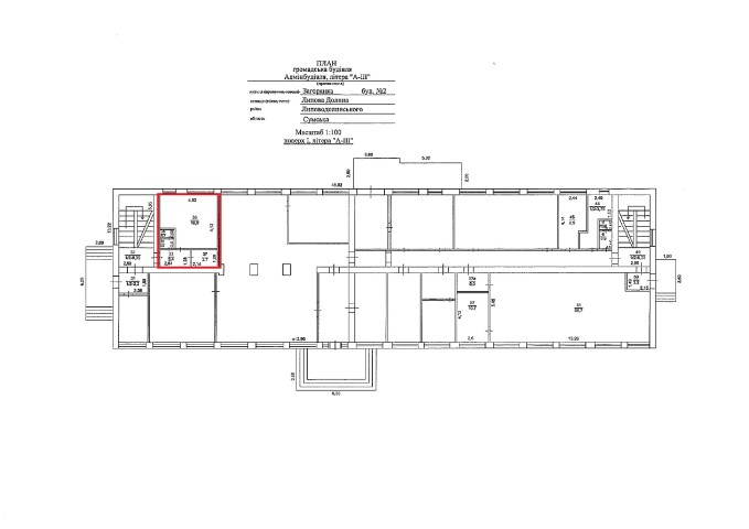
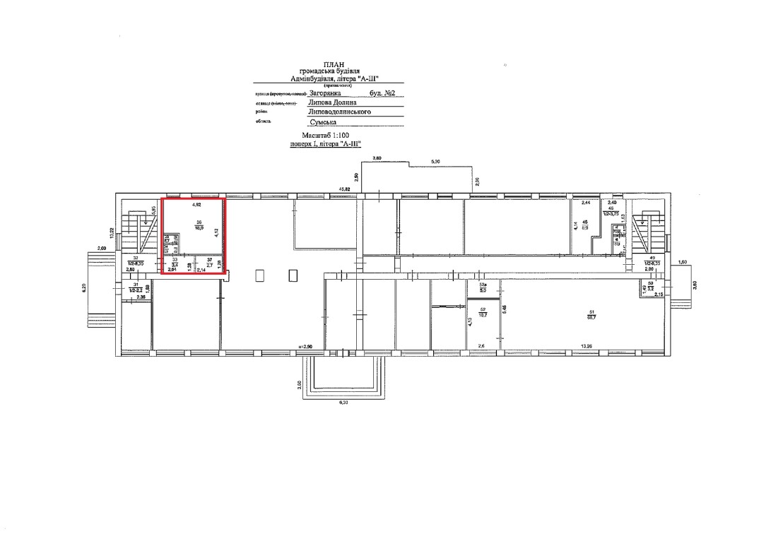
Сумська обл., Роменський р-н, смт. Липова Долина, вул. Загорянка, 2; Оренда – офісні приміщення 1-го поверху площею 25,7 кв.м. (В)

514.00 грн
20.00 грн / м2
Україна, Сумська обл., смт. Липова Долина, вулиця Загорянка, 2
Перейти до аукціону на сайті
  • Інформація
  • Опис
  • Документи
Дата оголошення пропозиції:
17 грудня 2024
Площа:
25.70 м2
Тип об’єкта:
Офіс
Тип аукціону:
Англійський аукціон
Статус аукціону:
Аукціон не відбувся
Тип угоди:
Оренда
Розмір мінімального кроку:
50.00 ₴
Розмір гарантійного внеску:
308.40 ₴
Початок прийому пропозицій:
17.12.2024 14:14:22
Завершення прийому пропозицій:
20.01.2025 20:00:00
Проведення аукціону:
21.01.2025 12:30:00
Лот:
CLE001-UA-20241217-59251
№ лоту (УТК):
UTK120123_06Т
Лот виставляється на торги (раз):
10
Стислий опис майна:
Пропонуються до оренди офісні приміщення 1-го поверху площею 25,7 кв.м. Знаходиться в центральній частині міста. Окремий вхід з фасаду. Добра візуалізація з дороги. В даному приміщенні наявне лише електропостачання. Можливість передачі приміщень в суборенду. Доступ вільний 24/7. Характеристики: • Кількість поверхів – 3; • Загальна площа – 1241,75 кв.м.; • Площа запропонована до оренди - 25,7 кв.м.; • Електропостачання – наявне; • Опалення, водопостачання – відсутнє (наявний санвузол та вода загального користування на другому поверсі); • Земельна ділянка – 0,2541 га (договір оренди).
Адреса місцезнаходження майна:
Україна, Сумська обл., смт. Липова Долина, вулиця Загорянка, 2
Схожі пропозиції
09.09.2022
Сумська обл., м. Лебедин, вул. Героїв Майдану, буд. 25. Оренда – офісні приміщення 3-го поверху площею 554,70 кв.м (В)
6 728.51 грн
12.13 грн / м2
Офіс
Сумська обл., м. Лебедин, вул. Героїв Майдану, буд. 25. Оренда – офісні приміщення 3-го поверху площею 554,70 кв.м (В)
Україна, Сумська обл., Лебедин, вул. Героїв Майдану, 25
14.02.2024
Сумська обл., м. Суми, вул. Петропавлівська, буд. 65. Оренда – офісні приміщення 2-го поверху площею 40,10 кв.м. (В)
2 296.53 грн
57.27 грн / м2
Офіс
Сумська обл., м. Суми, вул. Петропавлівська, буд. 65. Оренда – офісні приміщення 2-го поверху площею 40,10 кв.м. (В)
Україна, Сумська обл., м. Суми, вул. Петропавлівська, буд. 65
21.08.2024
Сумська обл., Роменський р-н, смт. Липова Долина, вул. Загорянка, буд. 2. Оренда – офісне приміщення 2-го поверху площею 40,00 кв.м. (В)
504.00 грн
12.60 грн / м2
Офіс
Сумська обл., Роменський р-н, смт. Липова Долина, вул. Загорянка, буд. 2. Оренда – офісне приміщення 2-го поверху площею 40,00 кв.м. (В)
Україна, Сумська обл., Роменський р-н, смт. Липова Долина, вул. Загорянка, буд. 2
12.07.2024
Сумська обл., м. Путивль, вул. Першотравнева, буд. 86. Оренда – офісні приміщення 2-го поверху площею 54,60 кв.м. (В)
518.70 грн
9.50 грн / м2
Офіс
Сумська обл., м. Путивль, вул. Першотравнева, буд. 86. Оренда – офісні приміщення 2-го поверху площею 54,60 кв.м. (В)
Україна, Сумська обл., м. Путивль, вул. Першотравнева, буд. 86
Переглянуті пропозиції
Рівненська обл., м. Сарни, Широка 33 Оренда приміщення 1 пов.
758.16 грн
23.40 грн / м2
Приміщення
Рівненська обл., м. Сарни, Широка 33 Оренда приміщення 1 пов.
Україна, Рівненська обл., м. Сарни, вул. Широка, буд. 33
Харківська обл., м. Лозова, вул. Михайла Грушевського, 7. Оренда – приміщення 1-го та 2-го поверхів
12 961.80 грн
22.80 грн / м2
Приміщення
Харківська обл., м. Лозова, вул. Михайла Грушевського, 7. Оренда – приміщення 1-го та 2-го поверхів
Україна, Харківська обл., м. Лозова, вул. Михайла Грушевського, буд. 7
17.11.2020
ГОЛЛАНДСЬКИЙ АУКЦІОН. Полтавська обл., м. Миргород, вулиця Гоголя, буд. 96/9 . Оренда – приміщення 3-го поверху площею 20,1 кв.м. (В)
818.07 грн
40.70 грн / м2
Приміщення
ГОЛЛАНДСЬКИЙ АУКЦІОН. Полтавська обл., м. Миргород, вулиця Гоголя, буд. 96/9 . Оренда – приміщення 3-го поверху площею 20,1 кв.м. (В)
Україна, Полтавська обл., м. Миргород, вул. Гоголя, буд. 96/9
Полтавська обл., м. Кременчук, вул. Вадима Пугачова, 12 Оренда приміщень 3й пов.
30 251.52 грн
46.80 грн / м2
Приміщення
Полтавська обл., м. Кременчук, вул. Вадима Пугачова, 12 Оренда приміщень 3й пов.
Україна, Полтавська обл., м. Кременчук, вул. Вадима Пугачова, 12