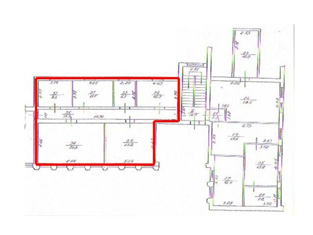
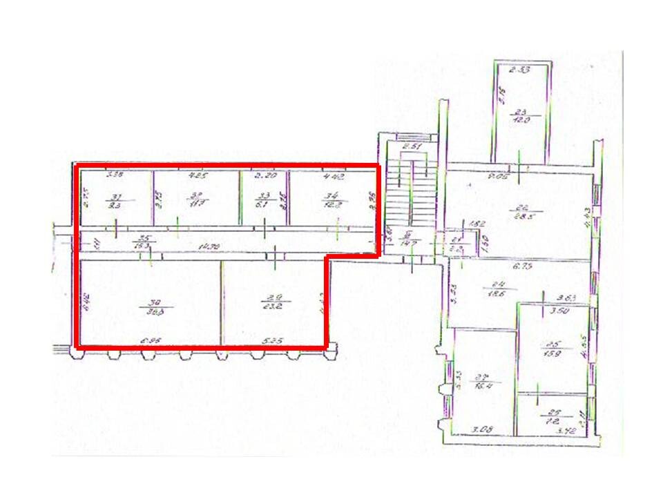
Івано-Франківська обл., Калуський район, смт. Рожнятів, площа Єдності, 9; Оренда – приміщення 3-го поверху площею 109,6 кв.м. (В)

1 367.81 грн
12.48 грн / м2
Україна, Івано-Франківська обл., Рожнятів, площа Єдності, 9
Перейти до аукціону на сайті
  • Інформація
  • Опис
  • Документи
Дата оголошення пропозиції:
02 січня 2025
Площа:
109.60 м2
Тип об’єкта:
Приміщення
Тип аукціону:
Англійський аукціон
Статус аукціону:
Аукціон не відбувся
Тип угоди:
Оренда
Розмір мінімального кроку:
40.00 ₴
Розмір гарантійного внеску:
820.68 ₴
Початок прийому пропозицій:
02.01.2025 13:45:27
Завершення прийому пропозицій:
03.02.2025 20:00:00
Проведення аукціону:
04.02.2025 11:35:00
Лот:
CLE001-UA-20250102-00069
№ лоту (УТК):
UTK070721_10Т
Лот виставляється на торги (раз):
10
Стислий опис майна:
Пропонуються до оренди приміщення 3-го поверху площею 109,6 кв.м. Будівля знаходиться в центральній частині населеного пункту. Високі пішохідний та транспортний потоки. Характеристики: • кількість поверхів – 3 • опалення газове • земельна ділянка – 0,1126 га (договір оренди)
Адреса місцезнаходження майна:
Україна, Івано-Франківська обл., Рожнятів, площа Єдності, 9
Схожі пропозиції
31.08.2022
Івано-Франківська обл., Івано-Франківський р-н, м. Бурштин вул. Січових Стрільців, 17. Оренда – приміщення 2-го поверху, площею 384,30 кв.м. (В)
9 868.82 грн
25.68 грн / м2
Приміщення
Івано-Франківська обл., Івано-Франківський р-н, м. Бурштин вул. Січових Стрільців, 17. Оренда – приміщення 2-го поверху, площею 384,30 кв.м. (В)
Україна, Івано-Франківська обл., Бурштин, вулиця Січових Стрільців, 17
Івано-Франківська обл., смт. Верховина, вул. Франка, 6. Оренда – Приміщення 2-го поверху площею 11,2 кв.м.
106.62 грн
9.52 грн / м2
Приміщення
Івано-Франківська обл., смт. Верховина, вул. Франка, 6. Оренда – Приміщення 2-го поверху площею 11,2 кв.м.
Україна, Івано-Франківська обл., смт. Верховина, вул. Франка, 6
18.01.2023
Івано-Франківська обл., Івано-Франківський р-н, м. Бурштин вул. Січових Стрільців, 17. Оренда – приміщення 2-го поверху, площею 384,3 кв.м. (В)
3 843.00 грн
10.00 грн / м2
Приміщення
Івано-Франківська обл., Івано-Франківський р-н, м. Бурштин вул. Січових Стрільців, 17. Оренда – приміщення 2-го поверху, площею 384,3 кв.м. (В)
Україна, Івано-Франківська обл., Бурштин, вулиця Січових Стрільців, 17
Івано-Франківська обл., смт. Рожнятів, площа Єдності, 9. Оренда – Приміщення 3-го поверху 109,6 кв.м.
874.61 грн
7.98 грн / м2
Приміщення
Івано-Франківська обл., смт. Рожнятів, площа Єдності, 9. Оренда – Приміщення 3-го поверху 109,6 кв.м.
Україна, Івано-Франківська обл., смт. Рожнятів, площа Єдності, 9