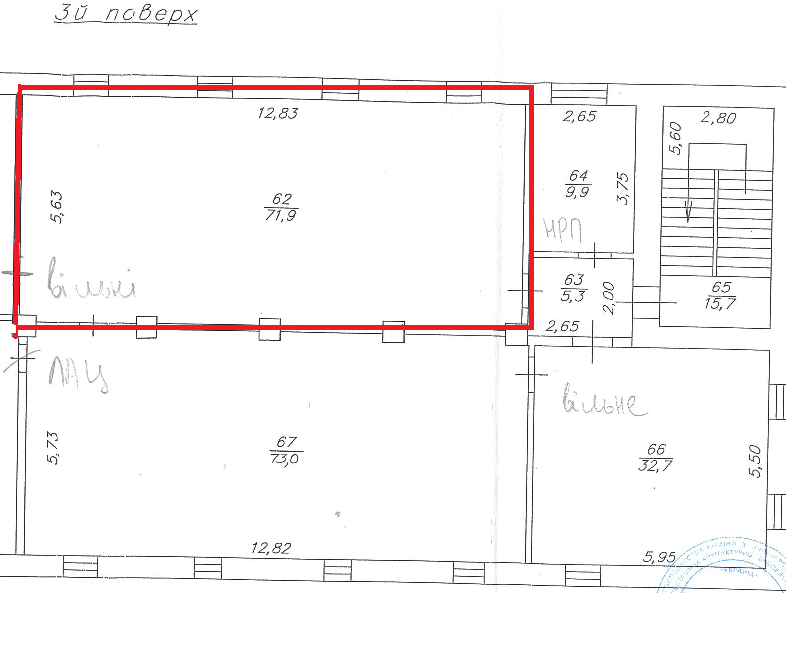
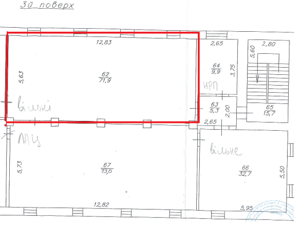
Рівненська обл., м. Дубровиця, вул. Шевченка, 53. Оренда – приміщення 3 поверху, площею 71,9 м. кв. (В)

1 951.37 грн
27.14 грн / м2
Україна, Рівненська обл., м. Дубровиця, вул. Шевченка, 53
Перейти до аукціону на сайті
  • Інформація
  • Опис
  • Документи
Дата оголошення пропозиції:
08 лютого 2022
Площа:
71.90 м2
Тип об’єкта:
Приміщення
Тип аукціону:
Англійський аукціон
Статус аукціону:
Аукціон не відбувся
Тип угоди:
Оренда
Розмір мінімального кроку:
100.00 ₴
Розмір гарантійного внеску:
1 170.82 ₴
Початок прийому пропозицій:
08.02.2022 12:56:54
Завершення прийому пропозицій:
09.03.2022 20:00:00
Лот:
UA-PS-2022-02-08-000021-2
№ лоту (УТК):
UTK080222_11P
Лот виставляється на торги (раз):
1
Стислий опис майна:
Пропонуються до оренди приміщення 3-го поверху площею 71,9 м.кв. Будівля знаходиться в центрі міста, розвинена інфраструктура, поряд відділення Укрпошти та Ощадбанку, магазини та адміністративні приміщення. Вхід в приміщення спільний. Територія огороджена та частково впорядкована. Потребує реконструкції системи електроживлення. Характеристики: Кількість поверхів – 3; Загальна площа – 1149,3 м.кв.; Площа, запропонована до оренди – 71,9 м.кв.; Дозволена потужність – 10 кВт.; Теплопостачання – централізоване; Земельна ділянка - площа 0,1345 га.(договір оренди)
Адреса місцезнаходження майна:
Україна, Рівненська обл., м. Дубровиця, вул. Шевченка, 53
Схожі пропозиції
23.02.2024
Рівненська обл., м. Рівне, вул. Дубенська, 44б. Оренда – приміщення 1-го поверху одноповерхової будівлі площею 65,1 кв.м. (В)
6 238.53 грн
95.83 грн / м2
Приміщення
Рівненська обл., м. Рівне, вул. Дубенська, 44б. Оренда – приміщення 1-го поверху одноповерхової будівлі площею 65,1 кв.м. (В)
Україна, Рівненська обл., м. Рівне, вул. Дубенська, 44б
05.09.2025
Рівненська обл., Березнівський р-н, с. Балашівка, вул. Незалежності, 52. Оренда – приміщення 1 поверху
503.10 грн
39.00 грн / м2
Приміщення
Рівненська обл., Березнівський р-н, с. Балашівка, вул. Незалежності, 52. Оренда – приміщення 1 поверху
Україна, Рівненська обл., Балашівка, Балашівка, вул. Незалежності, 52
Рівненська обл., смт. Рокитне, вул. Незалежності, 9. Оренда приміщень 3-го поверху
1 630.98 грн
23.40 грн / м2
Приміщення
Рівненська обл., смт. Рокитне, вул. Незалежності, 9. Оренда приміщень 3-го поверху
Україна, Рівненська обл., смт. Рокитне, вул. Незалежності, 9
16.12.2022
Рівненська обл., Вараський р-н., с. Довговоля, вул. Грушевського, 9/2а. Оренда – нежитлові приміщення площею 33,4 кв.м. (В)
610.89 грн
18.29 грн / м2
Приміщення
Рівненська обл., Вараський р-н., с. Довговоля, вул. Грушевського, 9/2а. Оренда – нежитлові приміщення площею 33,4 кв.м. (В)
Україна, Рівненська обл., Вараський р-н., с. Довговоля, вул. Грушевського, 9/2а
Переглянуті пропозиції
21.01.2025
Чернігівська обл., смт. Сосниця, вул. Б. Хмельницького, 16. Оренда – підвальне приміщення площею 31,35 кв.м. (В)
501.60 грн
16.00 грн / м2
Приміщення
Чернігівська обл., смт. Сосниця, вул. Б. Хмельницького, 16. Оренда – підвальне приміщення площею 31,35 кв.м. (В)
Україна, Чернігівська обл., смт. Сосниця, вул. Б. Хмельницького, 16