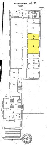
м. Харків, вул. Конторська,14 .Оренда – приміщення 1-го поверху площею 54,6 кв.м (В)

3 681.13 грн
67.42 грн / м2
Україна, Харківська обл., вул. Конторська,14, м. Харків
Перейти до аукціону на сайті
  • Інформація
  • Опис
  • Документи
Дата оголошення пропозиції:
09 січня 2025
Площа:
54.60 м2
Тип об’єкта:
Приміщення
Тип аукціону:
Англійський аукціон
Статус аукціону:
Аукціон не відбувся
Тип угоди:
Оренда
Розмір мінімального кроку:
100.00 ₴
Розмір гарантійного внеску:
2 208.68 ₴
Початок прийому пропозицій:
09.01.2025 13:53:55
Завершення прийому пропозицій:
10.02.2025 20:00:00
Проведення аукціону:
11.02.2025 12:15:00
Лот:
CLE001-UA-20250109-37773
№ лоту (УТК):
UTK011124_05P
Лот виставляється на торги (раз):
3
Стислий опис майна:
Пропонується до оренди приміщення 1-поверху площею 54,6 кв.м. Будівля в центрі міста Харкова. 15 хв до метро Центральний ринок. Характеристики: Кількість поверхів – 4; Загальна площа – 5611,00 кв.м_ Площа запропонована до оренди -54,60 кв.м Дозволена потужність – 3,0 кВт Теплопостачання- відсутнє Земельна ділянка – 0,5160 га (договір оренди)
Адреса місцезнаходження майна:
Україна, Харківська обл., вул. Конторська,14, м. Харків
Схожі пропозиції
02.09.2025
Харківська обл., м. Первомайський, мікрорайон 3, буд.1-А. Оренда – приміщення першого поверху, площею 145,2 кв.м. (В)
1 742.40 грн
12.00 грн / м2
Приміщення
Харківська обл., м. Первомайський, мікрорайон 3, буд.1-А. Оренда – приміщення першого поверху, площею 145,2 кв.м. (В)
Україна, Харківська обл., м. Первомайський, мікрорайон 3, буд.1-А
27.09.2024
м. Харків, Салтівське шосе, 2. Оренда – приміщення 2-го поверху, площею 343,7 кв.м (В)
19 731.82 грн
57.41 грн / м2
Приміщення
м. Харків, Салтівське шосе, 2. Оренда – приміщення 2-го поверху, площею 343,7 кв.м (В)
Україна, Харківська обл., м. Харків, Салтівське шосе, 2
Харківська обл., м. Харків, вул. Старошишківська, 5а. Оренда – приміщення 3-го поверху
1 428.48 грн
23.04 грн / м2
Приміщення
Харківська обл., м. Харків, вул. Старошишківська, 5а. Оренда – приміщення 3-го поверху
Україна, Харківська обл., м. Харків, вул. Старошишківська, буд. 5а
11.12.2024
м. Харків, вул. Старошишківська, 5а. Оренда – приміщення 1-го поверху площею 103,6 кв.м. (В)
5 642.06 грн
54.46 грн / м2
Приміщення
м. Харків, вул. Старошишківська, 5а. Оренда – приміщення 1-го поверху площею 103,6 кв.м. (В)
Україна, Харківська обл., м. Харків, вул. Старошишківська, 5а
Переглянуті пропозиції
Полтавська обл., Полтавський р-н, м. Решетілівка, вул. Старокиївська, 2. Оренда – Приміщення 2-го поверху, площею 14,60 кв.м. (В)
369.38 грн
25.30 грн / м2
Приміщення
Полтавська обл., Полтавський р-н, м. Решетілівка, вул. Старокиївська, 2. Оренда – Приміщення 2-го поверху, площею 14,60 кв.м. (В)
Україна, Полтавська обл., Полтавський р-н, м. Решетілівка, вул. Старокиївська, 2