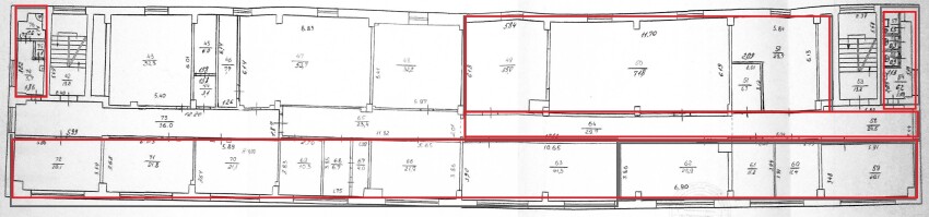
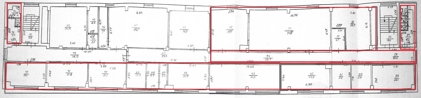
ДОВГОСТРОКОВА ОРЕНДА! Рівненська обл., м. Рівне, вул. Орлова, 37. Оренда – приміщення 5-го поверху загальною площею 703 кв.м. (В)

42 180.00 грн
60.00 грн / м2
Україна, Рівненська обл., м. Рівне, вул. Орлова, 37
Перейти до аукціону на сайті
  • Інформація
  • Опис
  • Документи
Дата оголошення пропозиції:
28 січня 2025
Площа:
703.00 м2
Тип об’єкта:
Приміщення
Тип аукціону:
Англійський аукціон
Статус аукціону:
Аукціон не відбувся
Тип угоди:
Оренда
Розмір мінімального кроку:
1 000.00 ₴
Розмір гарантійного внеску:
25 308.00 ₴
Початок прийому пропозицій:
28.01.2025 13:25:49
Завершення прийому пропозицій:
27.02.2025 20:00:00
Проведення аукціону:
28.02.2025 11:55:00
Лот:
CLE001-UA-20250128-23937
№ лоту (УТК):
UTK080222_10P
Лот виставляється на торги (раз):
10
Стислий опис майна:
Пропонуються до оренди приміщення 5-го поверху загальною площею 703 м. кв. Будівля знаходиться в центральній частині міста. Розвинена інфраструктура, досить високі автомобільний та пішохідний потоки. Поряд стоянка для автомобілів . Приміщення потребують ремонту та реконструкції електромережі. Характеристики: Кількість поверхів – 6 ; Загальна площа – 4535,1 м. кв ; Площа, запропонована до оренди – 703 м.кв. ; Опалення – централізоване; • Земельна ділянка - площа 0,3639 га. (договір оренди)
Адреса місцезнаходження майна:
Україна, Рівненська обл., м. Рівне, вул. Орлова, 37
Схожі пропозиції
Рівненська обл., м. Рівне, вул. В.Чорновола, 1. Оренда – приміщення 5-го поверху площею 51 кв.м. (П)
3 733.71 грн
73.21 грн / м2
Приміщення
Рівненська обл., м. Рівне, вул. В.Чорновола, 1. Оренда – приміщення 5-го поверху площею 51 кв.м. (П)
Україна, Рівненська обл., м. Рівне, вул. В.Чорновола, 1
Рівненська обл., Рівненський р-н. смт. Клевань вул. Козацька, 10. Оренда – виробничі приміщення 1-го поверху площею 101,4  кв.м. (В)
2 400.14 грн
23.67 грн / м2
Приміщення
Рівненська обл., Рівненський р-н. смт. Клевань вул. Козацька, 10. Оренда – виробничі приміщення 1-го поверху площею 101,4 кв.м. (В)
Україна, Рівненська обл., Рівненський р-н. смт. Клевань , вул. Козацька, 10
Рівненська обл., м. Вараш, м-н Незалежності, 4. Оренда – приміщення 2 поверху площею 186 кв.м. (В)
4 285.44 грн
23.04 грн / м2
Приміщення
Рівненська обл., м. Вараш, м-н Незалежності, 4. Оренда – приміщення 2 поверху площею 186 кв.м. (В)
Україна, Рівненська обл., м. Вараш, м-н Незалежності, 4
23.02.2024
Рівненська обл., Рівненський р-н., с. Вельбівно, вул. Гагаріна, 15. Оренда – частина приміщення одноповерхової будівлі, площею 16,9 кв.м. (В)
253.50 грн
15.00 грн / м2
Приміщення
Рівненська обл., Рівненський р-н., с. Вельбівно, вул. Гагаріна, 15. Оренда – частина приміщення одноповерхової будівлі, площею 16,9 кв.м. (В)
Україна, Рівненська обл., Рівненський р-н., с. Вельбівно, вул. Гагаріна, 15