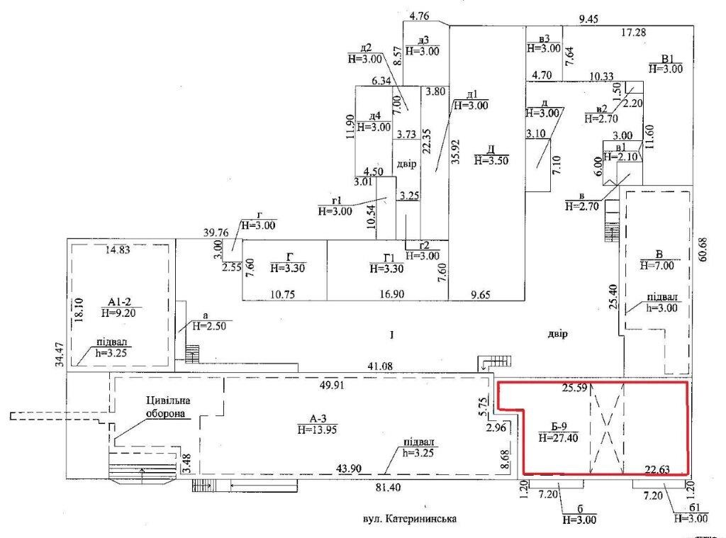
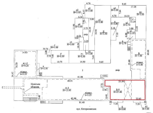
Одеська обл., м. Одеса, вул. Катерининська, 37. Оренда – приміщення 5-го поверху загальною площею 215,90 кв.м. (В)

53 975.00 грн
250.00 грн / м2
Україна, Одеська обл., м. Одеса, вул. Катерининська, 37
Перейти до аукціону на сайті
  • Інформація
  • Опис
  • Документи
Дата оголошення пропозиції:
04 лютого 2025
Площа:
215.90 м2
Тип об’єкта:
Приміщення
Тип аукціону:
Англійський аукціон
Статус аукціону:
Аукціон не відбувся
Тип угоди:
Оренда
Розмір мінімального кроку:
1 080.00 ₴
Розмір гарантійного внеску:
32 385.00 ₴
Початок прийому пропозицій:
04.02.2025 16:13:55
Завершення прийому пропозицій:
06.03.2025 20:00:00
Проведення аукціону:
07.03.2025 11:15:00
Лот:
CLE001-UA-20250204-62739
№ лоту (УТК):
UTK211222_21P
Лот виставляється на торги (раз):
10
Стислий опис майна:
Пропонується до оренди приміщення 5-го поверху загальною площею 215,90 кв.м. Будівля знаходиться у історичному місці Приморського району міста, 9-поверхова окремо стояча будівля з окремім входом, обладнана пасажирським ліфтом, окремі приміщення потребують часткового ремонту, зручна транспортна розв`язка та інфраструктура. Характеристики кількість поверхів – 9; загальна площа – 1 810,70 кв. м; Площа запропонована до оренди – 215,90 кв.м; Дозволена потужність – 20 кВт; теплопостачання – центральне; земельна ділянка – 0,3782 га
Адреса місцезнаходження майна:
Україна, Одеська обл., м. Одеса, вул. Катерининська, 37
Схожі пропозиції
24.12.2024
Одеська обл., м. Чорноморськ, вул. Олександрійська, буд.№ 12/1. Оренда – приміщення 2-го поверху загальною площею 104,70 кв.м. (В)
5 235.00 грн
50.00 грн / м2
Приміщення
Одеська обл., м. Чорноморськ, вул. Олександрійська, буд.№ 12/1. Оренда – приміщення 2-го поверху загальною площею 104,70 кв.м. (В)
Україна, Одеська обл., м. Чорноморськ, вул. Олександрійська, буд.№ 12/1
01.06.2023
Одеська обл., м. Одеса, вул. Ак. Філатова, 13б. Оренда – приміщення 1-го поверху площею 75,20 кв.м. (В)
10 711.49 грн
142.44 грн / м2
Приміщення
Одеська обл., м. Одеса, вул. Ак. Філатова, 13б. Оренда – приміщення 1-го поверху площею 75,20 кв.м. (В)
Україна, Одеська обл., м. Одеса, вул. Ак. Філатова, 13б
Одеська обл., Роздільнянський р-н, м. Роздільна, вул. Незалежності, буд. 7. Оренда – приміщення 1-го поверху площею 40,60 кв.м (В)
5 133.87 грн
126.45 грн / м2
Приміщення
Одеська обл., Роздільнянський р-н, м. Роздільна, вул. Незалежності, буд. 7. Оренда – приміщення 1-го поверху площею 40,60 кв.м (В)
Україна, Одеська обл., Роздільнянський р-н, м. Роздільна, вул. Незалежності, буд. 7
16.11.2023
Одеська обл., м. Одеса, вул. Балківська, 100. Оренда – приміщення 1-го поверху загальною площею 45,19 кв.м. (П)
7 277.40 грн
161.04 грн / м2
Приміщення
Одеська обл., м. Одеса, вул. Балківська, 100. Оренда – приміщення 1-го поверху загальною площею 45,19 кв.м. (П)
Україна, Одеська обл., м. Одеса, вул. Балківська, 100
Переглянуті пропозиції
22.04.2025
Чернігівська обл., м. Чернігів, проспект Миру, 28. Оренда – приміщення 3- го поверху площею 56,6 кв.м (В)
1 698.00 грн
30.00 грн / м2
Приміщення
Чернігівська обл., м. Чернігів, проспект Миру, 28. Оренда – приміщення 3- го поверху площею 56,6 кв.м (В)
Україна, Чернігівська обл., м. Чернігів, проспект Миру, 28
30.01.2024
Харківська обл., м. Харків, пр-т Олександрівський, 83. Оренда – приміщеня на 5-му поверсі загальною площею 118,00 кв.м. (В)
7 823.40 грн
66.30 грн / м2
Приміщення
Харківська обл., м. Харків, пр-т Олександрівський, 83. Оренда – приміщеня на 5-му поверсі загальною площею 118,00 кв.м. (В)
Україна, Харківська обл., м. Харків, пр-т Олександрівський, 83
18.07.2023
Полтавська обл., Кременчуцький р-н., смт. Семенівка, вул. Воїнів Інтернаціоналістів, 12/9. Оренда – приміщення 3-го поверху площею 93,0 кв.м. (В)
502.20 грн
5.40 грн / м2
Приміщення
Полтавська обл., Кременчуцький р-н., смт. Семенівка, вул. Воїнів Інтернаціоналістів, 12/9. Оренда – приміщення 3-го поверху площею 93,0 кв.м. (В)
Україна, Полтавська обл., Кременчуцький р-н., смт. Семенівка, вул. Воїнів Інтернаціоналістів, 12/9
22.04.2025
Чернігівська обл., м. Семенівка, вул. Червона площа, 4. Оренда – приміщення 1-го поверху площею 72,10 кв.м (В)
1 492.47 грн
20.70 грн / м2
Приміщення
Чернігівська обл., м. Семенівка, вул. Червона площа, 4. Оренда – приміщення 1-го поверху площею 72,10 кв.м (В)
Україна, Чернігівська обл., м. Семенівка, вул. Червона площа, 4