Рівненська обл., м. Рівне вул. В. Чорновола, 1. Оренда – приміщення 1-го , 2-го та 3 –го поверху, загальною площею 115,2 м.кв. (В)

16 568.06 грн
143.82 грн / м2
Україна, Рівненська обл., м. Рівне , вул. В. Чорновола, 1
Перейти до аукціону на сайті
  • Інформація
  • Опис
  • Документи
Дата оголошення пропозиції:
15 лютого 2022
Площа:
115.20 м2
Тип об’єкта:
Приміщення
Тип аукціону:
Англійський аукціон
Статус аукціону:
Аукціон не відбувся
Тип угоди:
Оренда
Розмір мінімального кроку:
500.00 ₴
Розмір гарантійного внеску:
9 940.64 ₴
Початок прийому пропозицій:
15.02.2022 15:48:43
Завершення прийому пропозицій:
16.03.2022 20:00:00
Лот:
UA-PS-2022-02-15-000030-2
№ лоту (УТК):
UTK130122_31P
Лот виставляється на торги (раз):
2
Стислий опис майна:
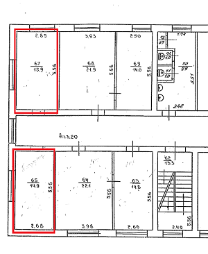
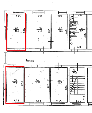
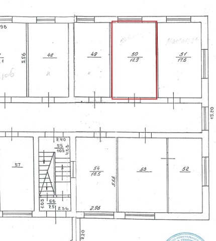
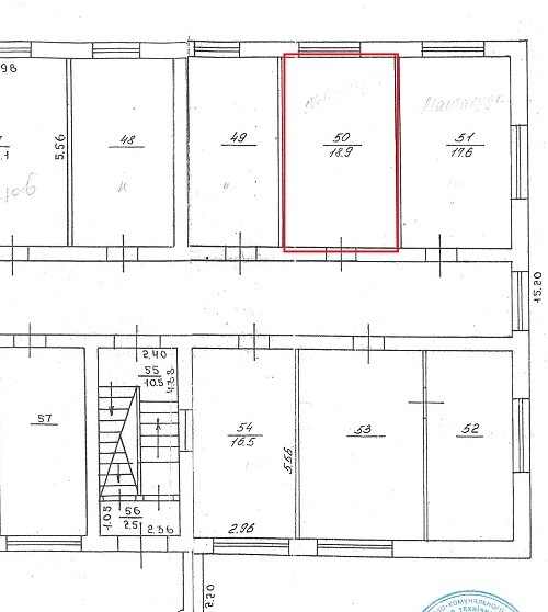
Пропонується до оренди приміщення 1-го , 2-го та 3 –го поверху загальною площею 115,2 м. кв. Будівля знаходиться в центральній частині міста. Розвинена інфраструктура, високі автомобільний та пішохідний потоки. Поряд центральна площа та міський парк. Приміщення потребують ремонту та реконструкції електромережі . Характеристики: Кількість поверхів – 5; Загальна площа – 2032,6 м. кв ; Площа, запропонована до оренди – загальною площею 115,2 м.кв. ; Опалення – централізоване; Земельна ділянка - площа 0,1652 га. (договір оренди)
Адреса місцезнаходження майна:
Україна, Рівненська обл., м. Рівне , вул. В. Чорновола, 1
Схожі пропозиції
16.11.2022
Рівненська обл., м. Острог, пр-т. Незалежності, 7. Оренда – приміщення 1-го та 2-го поверху площею 21,6 кв.м. (В
500.04 грн
23.15 грн / м2
Приміщення
Рівненська обл., м. Острог, пр-т. Незалежності, 7. Оренда – приміщення 1-го та 2-го поверху площею 21,6 кв.м. (В
Україна, Рівненська обл., Острог, Острог
Рівненська обл., м. Рівне, вул. Міцкевича, 2. Оренда приміщень 3-го поверху.
8 557.38 грн
48.76 грн / м2
Приміщення
Рівненська обл., м. Рівне, вул. Міцкевича, 2. Оренда приміщень 3-го поверху.
Україна, Рівненська обл., м. Рівне, вул. Міцкевича, 2
14.09.2022
Рівненська обл., Рівненський р-н, с. Глажова, вул. Шевченка, 35. Оренда – нежитлові приміщення площею 36,9 кв.м. (В)
1 643.52 грн
44.54 грн / м2
Приміщення
Рівненська обл., Рівненський р-н, с. Глажова, вул. Шевченка, 35. Оренда – нежитлові приміщення площею 36,9 кв.м. (В)
Україна, Рівненська обл., Глажова, вул. Шевченка 35
19.10.2022
Рівненська обл., Вараський р-н, с. Великі Телковичі, вул. Щорса, 15. Оренда – приміщення будівлі площею 47,3 кв.м. (В)
1 995.59 грн
42.19 грн / м2
Приміщення
Рівненська обл., Вараський р-н, с. Великі Телковичі, вул. Щорса, 15. Оренда – приміщення будівлі площею 47,3 кв.м. (В)
Україна, Рівненська обл., Великі Телковичі, вул. Щорса, 15
Переглянуті пропозиції
15.07.2025
Полтавська обл., Кременчуцький р-н, м. Кременчук, вулиця В. Пугачова, 12. Оренда – приміщення площею 688,20 кв.м. (В)
8 258.40 грн
12.00 грн / м2
Приміщення
Полтавська обл., Кременчуцький р-н, м. Кременчук, вулиця В. Пугачова, 12. Оренда – приміщення площею 688,20 кв.м. (В)
Україна, Полтавська обл., Кременчуцький р-н, м. Кременчук, вул. В. Пугачова, 12
10.12.2024
ДОВГОСТРОКОВА ОРЕНДА! Дніпропетровська обл., м. Кривий Ріг, вул. Покровська, 29А. Оренда – приміщення 3-го поверху загальною площею 504,20 кв.м (прим. №404- 406) (В)
Чернігівська обл., м. Чернігів, вул. Рокоссовського, 33. Оренда – виробничі приміщення 3-го поверху площею 695,50 кв.м. (В)
42 514.40 грн
61.13 грн / м2
Приміщення
Чернігівська обл., м. Чернігів, вул. Рокоссовського, 33. Оренда – виробничі приміщення 3-го поверху площею 695,50 кв.м. (В)
Україна, Чернігівська обл., Чернігів, вул. Рокоссовського, 33
18.11.2022
Рівненська обл. м. Радивилів, вул. О.Невського, 1. Оренда – приміщення підвалу , 2 – го та 3 –го поверху площею 330,8 кв.м. (В)
3 986.14 грн
12.05 грн / м2
Приміщення
Рівненська обл. м. Радивилів, вул. О.Невського, 1. Оренда – приміщення підвалу , 2 – го та 3 –го поверху площею 330,8 кв.м. (В)
Україна, Рівненська обл., м. Радивилів, вул. О.Невського, 1