Дніпропетровська обл., м. Дніпро, пров. Вільний, 12.Оренда – приміщення 1-го поверху площею 61,50 кв.м (В)

1 845.00 грн
30.00 грн / м2
Україна, Дніпропетровська обл., м. Дніпро, пров. Вільний, 12
Перейти до аукціону на сайті
  • Інформація
  • Опис
  • Документи
Дата оголошення пропозиції:
18 лютого 2025
Площа:
61.50 м2
Тип об’єкта:
Приміщення
Тип аукціону:
Англійський аукціон
Статус аукціону:
Аукціон не відбувся
Тип угоди:
Оренда
Розмір мінімального кроку:
200.00 ₴
Розмір гарантійного внеску:
1 107.00 ₴
Початок прийому пропозицій:
18.02.2025 15:36:31
Завершення прийому пропозицій:
17.03.2025 20:00:00
Проведення аукціону:
18.03.2025 11:50:00
Лот:
CLE001-UA-20250218-41215
№ лоту (УТК):
UTK151223_05P
Лот виставляється на торги (раз):
10
Стислий опис майна:
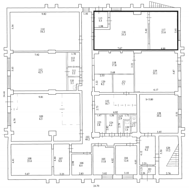
Пропонується до оренди приміщення 1-го поверху площею 61,50 кв.м. Розташування - будівля знаходиться в Індустріальному районі міста. Поруч знаходяться відділення банку, супермаркети, учбові заклади, відділення пошти, високий автомобільний і пішохідний потоки. Стан приміщення задовільний. Ідеальне місце під розвиток будь-якого бізнесу. Характеристики: Кількість поверхів – 2 Загальна площа – 1024,20 кв.м Площа запропонована до оренди – 61,50 кв.м Електропостачання, водопостачання, теплопостачання Земельна ділянка – 0, 1116 га (договір оренди) Ресурсні податки – 6,49 грн за 1 кв.м
Адреса місцезнаходження майна:
Україна, Дніпропетровська обл., м. Дніпро, пров. Вільний, 12
Схожі пропозиції
Дніпропетровська обл., м. Дніпро, вул. Панікахи, 27. Оренда приміщень 4-го поверху площею 737,0 кв.м.
7 384.74 грн
10.02 грн / м2
Приміщення
Дніпропетровська обл., м. Дніпро, вул. Панікахи, 27. Оренда приміщень 4-го поверху площею 737,0 кв.м.
Україна, Дніпропетровська обл., м. Дніпро, вул. Панікахи
27.09.2022
Дніпропетровська обл., м. Дніпро, пр. Пушкіна, 75а. Оренда – приміщення 1-го поверху площею 11,50 кв.м. (В)
760.73 грн
66.15 грн / м2
Приміщення
Дніпропетровська обл., м. Дніпро, пр. Пушкіна, 75а. Оренда – приміщення 1-го поверху площею 11,50 кв.м. (В)
Україна, Дніпропетровська обл., Дніпро, вулиця Пушкіна, 75
25.06.2024
Дніпропетровська обл., м. Синельникове, вул. Богми, 4;  Оренда – приміщення 2-го поверху, площею 213,5 кв.м. (В)
2 307.94 грн
10.81 грн / м2
Приміщення
Дніпропетровська обл., м. Синельникове, вул. Богми, 4; Оренда – приміщення 2-го поверху, площею 213,5 кв.м. (В)
Україна, Дніпропетровська обл., м. Синельникове, вулиця Богми, 4
Дніпропетровська обл., м. Кам’янське, просп. Свободи, 44. Оренда – приміщення 4-го поверху
477.00 грн
31.80 грн / м2
Приміщення
Дніпропетровська обл., м. Кам’янське, просп. Свободи, 44. Оренда – приміщення 4-го поверху
Україна, Дніпропетровська обл., м. Кам’янське, просп. Свободи, 44
Переглянуті пропозиції
10.01.2023
Дніпропетровська обл., м. Дніпро, вул. Чернишевського, 27. Оренда – приміщення 3-го поверху площею 484,10 кв.м. (В)
22 365.42 грн
46.20 грн / м2
Приміщення
Дніпропетровська обл., м. Дніпро, вул. Чернишевського, 27. Оренда – приміщення 3-го поверху площею 484,10 кв.м. (В)
Україна, Дніпропетровська обл., м. Дніпро, вул. Чернишевського, 27
10.05.2023
Дніпропетровська обл., м. Дніпро, вул. Шолохова, 7. Оренда – приміщення 1-го поверху площею 79,60 кв.м. (В)
12 054.62 грн
151.44 грн / м2
Приміщення
Дніпропетровська обл., м. Дніпро, вул. Шолохова, 7. Оренда – приміщення 1-го поверху площею 79,60 кв.м. (В)
Україна, Дніпропетровська обл., м. Дніпро, вул. Шолохова, 7
05.07.2023
Дніпропетровська обл., м. Дніпро, вул. Січових Стрільців, 10. Оренда – приміщення цокольного поверху площею 47,90 кв.м. (В)
2 212.98 грн
46.20 грн / м2
Приміщення
Дніпропетровська обл., м. Дніпро, вул. Січових Стрільців, 10. Оренда – приміщення цокольного поверху площею 47,90 кв.м. (В)
Україна, Дніпропетровська обл., м. Дніпро, вул. Січових Стрільців, 10
30.12.2024
Дніпропетровська обл., м. Дніпро, вул. Січових Стрільців, 10. Оренда – приміщення 2-го поверху площею 18,20 кв.м. (В)
2 506.14 грн
137.70 грн / м2
Приміщення
Дніпропетровська обл., м. Дніпро, вул. Січових Стрільців, 10. Оренда – приміщення 2-го поверху площею 18,20 кв.м. (В)
Україна, Дніпропетровська обл., м. Дніпро, вул. Січових Стрільців, 10