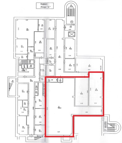
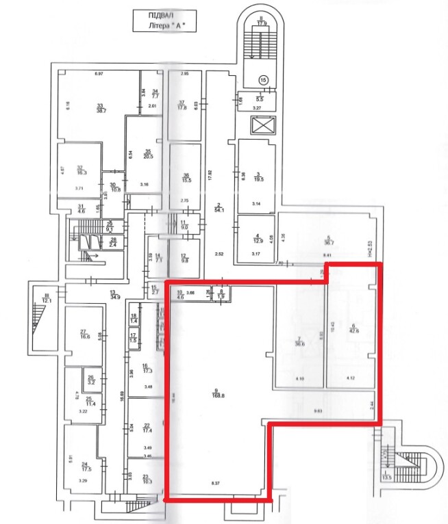
м. Київ, вул. Князів Острозьких (Московська), 23 (В). Оренда – приміщення підвалу будівлі, площею 254,50 м2

71 377.07 грн
280.46 грн / м2
Україна, м.Київ, Київ, вулиця Князів Острозьких, 23
Перейти до аукціону на сайті
  • Інформація
  • Опис
  • Документи
Дата оголошення пропозиції:
05 березня 2025
Площа:
254.50 м2
Тип об’єкта:
Приміщення
Тип аукціону:
Англійський аукціон
Статус аукціону:
Аукціон не відбувся
Тип угоди:
Оренда
Розмір мінімального кроку:
1 000.00 ₴
Розмір гарантійного внеску:
42 826.24 ₴
Початок прийому пропозицій:
05.03.2025 05:28:17
Завершення прийому пропозицій:
07.04.2025 20:00:00
Проведення аукціону:
08.04.2025 11:55:00
Лот:
CLE001-UA-20250305-24170
№ лоту (УТК):
UTK050325_78U
Лот виставляється на торги (раз):
1
Стислий опис майна:
Пропонуються до оренди приміщення підвалу будівлі, літ. «А», площею 254,50 м2. Розташування будівлі у Печерському районі міста Києва, місцевість Печерськ. Поруч розвинена інфраструктура, зупинки громадського транспорту, супермаркети, центральна вулиця міста, у пішому доступі 5 хв до ст. м. «Арсенальна». Характеристики • кількість поверхів – 5; • сан. вузол, каналізація, теплозабезпечення – присутнє; • площа будівлі – літ. «А» - 6172,50 м2; • опалення централізоване (міське); • земельна ділянка – 0,26 га; • енерго потужність – 10 кВт.
Адреса місцезнаходження майна:
Україна, м.Київ, Київ, вулиця Князів Острозьких, 23
Схожі пропозиції
21.10.2022
м. Київ, вул. Ісаакяна, 3 Оренда – Приміщення 2-го поверху площею 149,81 кв.м. (В)
22 690.22 грн
151.46 грн / м2
Приміщення
м. Київ, вул. Ісаакяна, 3 Оренда – Приміщення 2-го поверху площею 149,81 кв.м. (В)
Україна, м.Київ, Київ, вулиця Ісаакяна, 3
м. Київ, вул. Олени Теліги, 39-г, літ. «А», оренда – частина приміщень виробничої будівлі, площею 1116,90 м2 (В)
94 210.52 грн
84.35 грн / м2
Приміщення
м. Київ, вул. Олени Теліги, 39-г, літ. «А», оренда – частина приміщень виробничої будівлі, площею 1116,90 м2 (В)
Україна, м.Київ, Київ, вул. Олени Теліги, 39-Г
м. Київ, вул. Ревуцького, 16-А. Оренда – Приміщення 1-го поверху та підвалу, площею 66,30 кв. м. (П)
3 753.91 грн
56.62 грн / м2
Приміщення
м. Київ, вул. Ревуцького, 16-А. Оренда – Приміщення 1-го поверху та підвалу, площею 66,30 кв. м. (П)
Україна, м.Київ, Київ, вул. Ревуцького, 16-А
19.12.2023
 ДОВГОСТРОКОВА ОРЕНДА!   м. Київ, бульвар Бучми Амвросія, 5;  Оренда – приміщення 2-го поверху, площею 671,20 м2 (П)
88 222.53 грн
131.44 грн / м2
Приміщення
ДОВГОСТРОКОВА ОРЕНДА! м. Київ, бульвар Бучми Амвросія, 5; Оренда – приміщення 2-го поверху, площею 671,20 м2 (П)
Україна, м.Київ, Київ, вулиця Амвросія Бучми, 5