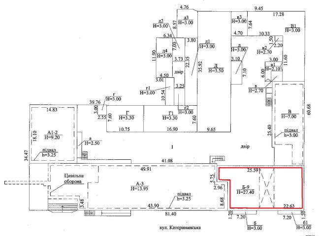
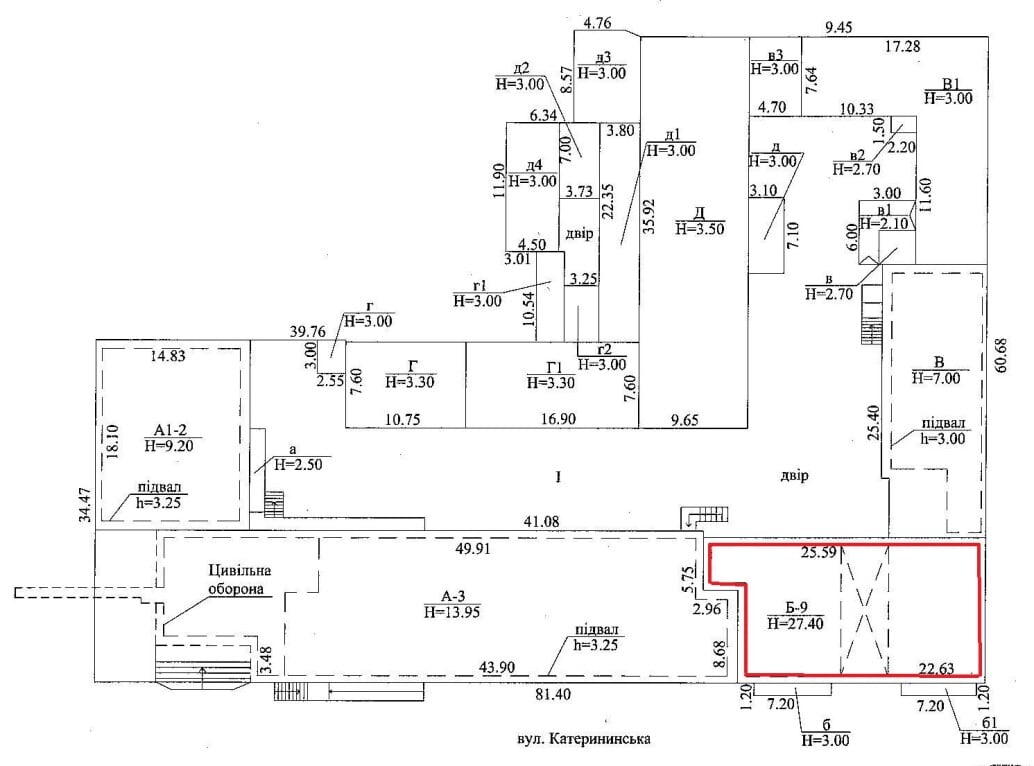
Одеська обл., м. Одеса, вул. Катерининська, 37. Оренда – приміщення 8-го, 9-го поверхів загальною площею 335,60 кв.м (В)

83 900.00 грн
250.00 грн / м2
Україна, Одеська обл., м. Одеса, вул. Катерининська, 37.
Перейти до аукціону на сайті
  • Інформація
  • Опис
  • Документи
Дата оголошення пропозиції:
13 березня 2025
Площа:
335.60 м2
Тип об’єкта:
Приміщення
Тип аукціону:
Англійський аукціон
Статус аукціону:
Аукціон не відбувся
Тип угоди:
Оренда
Розмір мінімального кроку:
2 000.00 ₴
Розмір гарантійного внеску:
50 340.00 ₴
Початок прийому пропозицій:
13.03.2025 10:46:21
Завершення прийому пропозицій:
16.04.2025 20:00:00
Проведення аукціону:
17.04.2025 11:45:00
Лот:
CLE001-UA-20250313-57353
№ лоту (УТК):
UTK211222_19P
Лот виставляється на торги (раз):
10
Стислий опис майна:
Пропонуються до оренди приміщення 8-го, 9-го поверхів загальною площею 335,60 кв.м. Приміщення поверхів потребують косметичного ремонту. Об'єкт знаходиться у історичному місці Приморського району міста, загальний вхід в будівлю з вулиці, в будівлі працює ліфт, на 8-му поверсі два окремих санвузла, зручна транспортна розв’язка та інфраструктура. Характеристики: Загальна площа – 1810,70 кв.м; Площа запропонована до оренди – 335,60 кв.м; Дозволена потужність – 30 кВт ; Теплопостачання – централізоване ; Земельна ділянка – 0,3782 га
Адреса місцезнаходження майна:
Україна, Одеська обл., м. Одеса, вул. Катерининська, 37.
Схожі пропозиції
19.12.2024
Одеська обл., Ізмаїльський р-н, м. Рені, вул. Героїв України, 31.Оренда – приміщення 1-го поверху загальною площею 46,10 кв.м. (В)
5 484.98 грн
118.98 грн / м2
Приміщення
Одеська обл., Ізмаїльський р-н, м. Рені, вул. Героїв України, 31.Оренда – приміщення 1-го поверху загальною площею 46,10 кв.м. (В)
Україна, Одеська обл., Ізмаїльський р-н, м. Рені, вул. Героїв України, 31
Одеська обл., м. Білгород-Дністровський, вул. Першотравнева, буд.№70. Оренда – приміщення 2-го поверху площею 25,80 кв.м (В)
606.30 грн
23.50 грн / м2
Приміщення
Одеська обл., м. Білгород-Дністровський, вул. Першотравнева, буд.№70. Оренда – приміщення 2-го поверху площею 25,80 кв.м (В)
Україна, Одеська обл., м. Білгород-Дністровський, вул. Першотравнева, буд.№70
08.07.2025
Одеська обл., Роздільнянський р-н, с. Павлівка, вул. Калініна, 2. Оренда – приміщення будівлі загальною площею 45,80 кв.м (В)
549.60 грн
12.00 грн / м2
Приміщення
Одеська обл., Роздільнянський р-н, с. Павлівка, вул. Калініна, 2. Оренда – приміщення будівлі загальною площею 45,80 кв.м (В)
Україна, Одеська обл., Роздільнянський р-н, с. Павлівка, вул. Калініна, 2
30.08.2024
Одеська обл., Білгород-Дністровський р-н., смт. Затока, вул. Приморська, буд. №54/1. Оренда – приміщення 2-го поверху загальною площею 283,00 кв.м (В)
5 660.00 грн
20.00 грн / м2
Приміщення
Одеська обл., Білгород-Дністровський р-н., смт. Затока, вул. Приморська, буд. №54/1. Оренда – приміщення 2-го поверху загальною площею 283,00 кв.м (В)
Україна, Одеська обл., Білгород-Дністровський р-н., смт. Затока, вул. Приморська, буд. №54/1.