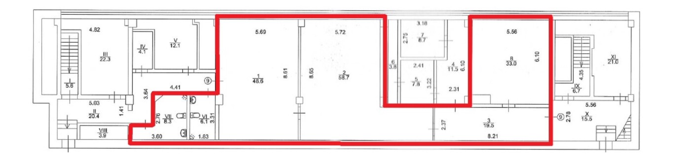
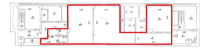
м. Київ, вул. Антоновича, 40; Оренда – група приміщень на 9-му поверсі, площею - 174,20 кв.м. (В)

35 265.04 грн
202.44 грн / м2
Україна, м.Київ, Київ, вул. Антоновича, 40
Перейти до аукціону на сайті
  • Інформація
  • Опис
  • Документи
Дата оголошення пропозиції:
14 березня 2025
Площа:
174.20 м2
Тип об’єкта:
Приміщення
Тип аукціону:
Англійський аукціон
Статус аукціону:
Аукціон не відбувся
Тип угоди:
Оренда
Розмір мінімального кроку:
3 000.00 ₴
Розмір гарантійного внеску:
21 159.02 ₴
Початок прийому пропозицій:
14.03.2025 16:18:37
Завершення прийому пропозицій:
15.04.2025 20:00:00
Проведення аукціону:
16.04.2025 12:30:00
Лот:
CLE001-UA-20250314-58331
№ лоту (УТК):
UTK251024_03T
Лот виставляється на торги (раз):
3
Стислий опис майна:
Пропонуються до оренди приміщення 9-го поверху, площею 174,20 кв.м. Будівля знаходиться у центрі міста на перехресті вулиць Жилянська та Антоновича. Поруч з БЦ розташована зупинка міського автотранспорту, в 5-ти хвилинах ходьби знаходиться станція метро «Олімпійська», парк Тараса Шевченка. Вхід з вул. Антоновича. Характеристики: • кількість поверхів – 9; • загальна площа будівлі – 7 649,30 м2; • кондиціонування – загальне по будівлі (керування на поверсі) • опалення централізоване (міське); • земельна ділянка – 0,2099 га; • сан. вузол, водопостачання, каналізація – присутні.
Адреса місцезнаходження майна:
Україна, м.Київ, Київ, вул. Антоновича, 40
Схожі пропозиції
12.08.2022
ДОВГОСТРОКОВА ОРЕНДА! м. Київ, вул. Ісаакяна, 3. Оренда – Приміщення 3-го поверху площею 501,50 кв.м. (В)
75 957.19 грн
151.46 грн / м2
Приміщення
ДОВГОСТРОКОВА ОРЕНДА! м. Київ, вул. Ісаакяна, 3. Оренда – Приміщення 3-го поверху площею 501,50 кв.м. (В)
Україна, м.Київ, Київ, вул. Ісаакяна, 3
м. Київ, вул. Антоновича 40. Оренда - приміщення 3 поверху
213 235.20 грн
288.00 грн / м2
Приміщення
м. Київ, вул. Антоновича 40. Оренда - приміщення 3 поверху
Україна, м.Київ, місто Київ, вул. Антоновича, 40
30.12.2022
ДОВГОСТРОКОВА ОРЕНДА! м. Київ, вул. Салютна, 5а, літ. «Б». Оренда – приміщення 3-го та 4-го поверхів площею 992,8 кв.м. (В)
м. Київ, вул. Джона Маккейна, №40 , Оренда – приміщення підвалу, площею 44,26 м2 , (В)
18 345.33 грн
415.05 грн / м2
Приміщення
м. Київ, вул. Джона Маккейна, №40 , Оренда – приміщення підвалу, площею 44,26 м2 , (В)
Україна, м.Київ, Київ, вул. Джона Маккейна, №40