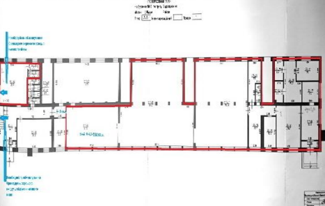
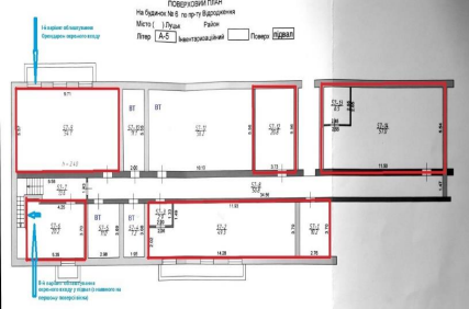
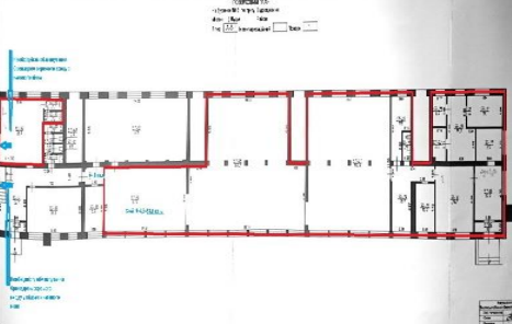
Волинська обл., м. Луцьк, пр-т Відродження, 6. Оренда – приміщення підвалу 221,00 кв.м та 1-го поверху 543,20 кв.м загальною площею 764,20 кв.м. (В)

81 779.61 грн
107.01 грн / м2
Україна, Волинська обл., м. Луцьк, пр-т Відродження, 6
Перейти до аукціону на сайті
  • Інформація
  • Опис
  • Документи
Дата оголошення пропозиції:
21 березня 2025
Площа:
764.20 м2
Тип об’єкта:
Приміщення
Тип аукціону:
Англійський аукціон
Статус аукціону:
Аукціон не відбувся
Тип угоди:
Оренда
Розмір мінімального кроку:
2 500.00 ₴
Розмір гарантійного внеску:
49 067.76 ₴
Початок прийому пропозицій:
21.03.2025 13:41:25
Завершення прийому пропозицій:
22.04.2025 20:00:00
Проведення аукціону:
23.04.2025 12:50:00
Лот:
CLE001-UA-20250321-00278
№ лоту (УТК):
UTK310125_12P
Лот виставляється на торги (раз):
2
Стислий опис майна:
Пропонується до оренди комплекс приміщень підвалу (221,00 кв.м) та 1-го поверху (543,20 кв.м) адмінбудівлі загальною площею 764,20 кв.м, що може бути використаний під сервісний центр, торгівлю, спортивний клуб, школу, в частині - під виробництво, склад тощо (з врахуванням того, що над Укртелекомом є ще 4 поверхи житлового будинку). Є необхідність облаштування Орендарем окремих входів у підвал та на перших поверх зі сторони проїжджої частини. Крім того, є окремий вхід на перший поверх зі сторони внутрішнього двору. Зручна локація. Будівля розташована поряд з пішохідною зоною та проїжджою частиною у «спальному» районі міста, ближче до околиці (в напрямку виїзду на м.Рівне). Характерна інфраструктура, середні пішохідні та високі автомобільні потоки. Розвинена інфраструктура. Характеристики кількість поверхів – 5; загальна площа – 1079,00 кв.м; площа, запропонована до оренди – 764,20 кв.м; опалення – централізоване; водопостачання, водовідведення – централізовані; земельна ділянка – 0,0261 га (податок) Пропонується до оренди цілісний майновий комплекс площею 819,70 міста. Поряд – промислова зона, проїжджа частина. Характерна інфраструктура, низькі пішохідні та середні автомобільні потоки. До складу ЦМК входять будівлі: Гараж "Г-1"; Технічний будинок /А-1/; АТП дизельна /Б-1/; Склад ПММ, а також кілька споруд. Комплекс - придатний для використання під комерційну діяльність, у тому числі: логістичну базу, склад, виробництво, навчальний заклад (з акцентом на те, що 2-поверховий будинок офісного типу – дерев’яний). з метою забезпечення електроживленням. Земельна ділянка, відповідно, включає сервітут. З цієї причини Орендар зобов’язаний надавати безперешкодний цілодобовий доступ на територію майнового комплексу представником організації. Характеристики: кількість поверхів – один та плюс мансардний в розрізі окремих будівель; Загальна площа та Опалення – власна газова котельня, водопостачання й водовідведення – централізоване; земельна ділянка – 0,6738 г
Адреса місцезнаходження майна:
Україна, Волинська обл., м. Луцьк, пр-т Відродження, 6
Схожі пропозиції
Волинська обл., м. Рожище, вул. Незалежності, 60а. Оренда - приміщення 2-го поверху адмінбудівлі площею 16,50 кв.м.
869.55 грн
52.70 грн / м2
Приміщення
Волинська обл., м. Рожище, вул. Незалежності, 60а. Оренда - приміщення 2-го поверху адмінбудівлі площею 16,50 кв.м.
Україна, Волинська обл., м. Рожище, вул. Незалежності, 60а
Волинська обл., м. Любомль, вул. Б.Хмельницького, 2. Оренда – приміщення 2-го поверху адмінбудівлі площею 14,70 кв.м. (В)
839.66 грн
57.12 грн / м2
Приміщення
Волинська обл., м. Любомль, вул. Б.Хмельницького, 2. Оренда – приміщення 2-го поверху адмінбудівлі площею 14,70 кв.м. (В)
Україна, Волинська обл., м. Любомль, вул. Б.Хмельницького, 2
15.04.2025
Волинська обл., Володимир-Волинський р-н, с. Красностав, вул. Центральна, 6а. Оренда – приміщення 1-го поверху площею 21,60 кв.м. (В)
507.60 грн
23.50 грн / м2
Приміщення
Волинська обл., Володимир-Волинський р-н, с. Красностав, вул. Центральна, 6а. Оренда – приміщення 1-го поверху площею 21,60 кв.м. (В)
Україна, Волинська обл., Володимир-Волинський р-н, с. Красностав, вул. Центральна, 6а
Волинська обл., м. Луцьк, вул. Кривий Вал, 28. Оренда – приміщення 2-го поверху адмінбудівлі площею 12,80 кв.м (В)
1 228.80 грн
96.00 грн / м2
Приміщення
Волинська обл., м. Луцьк, вул. Кривий Вал, 28. Оренда – приміщення 2-го поверху адмінбудівлі площею 12,80 кв.м (В)
Україна, Волинська обл., м. Луцьк, вул. Кривий Вал, 28
Переглянуті пропозиції
17.09.2024
Полтавська обл., Кременчуцький р-н, м. Кременчук, вулиця Пугачова, 12. Оренда – приміщення 1-го поверху загальною площею 32,00 кв.м. (В)
3 242.24 грн
14.89 грн / м2
Приміщення
Полтавська обл., Кременчуцький р-н, м. Кременчук, вулиця Пугачова, 12. Оренда – приміщення 1-го поверху загальною площею 32,00 кв.м. (В)
Україна, Полтавська обл., м. Кременчук, вулиця Пугачова, 12
м. Київ, вул. Джона Маккейна, №40 , Оренда – приміщення підвалу, площею 44,26 м2 , (В)
18 345.33 грн
415.05 грн / м2
Приміщення
м. Київ, вул. Джона Маккейна, №40 , Оренда – приміщення підвалу, площею 44,26 м2 , (В)
Україна, м.Київ, Київ, вул. Джона Маккейна, №40
26.12.2024
Рівненська обл., Рівненський р-н., м. Здолбунів, вул. Б.Хмельницького, 7. Оренда – приміщення підвалу, 2 поверху та надвірної будівлі загальною площею 661,4 кв.м. (В)
8 928.90 грн
13.50 грн / м2
Приміщення
Рівненська обл., Рівненський р-н., м. Здолбунів, вул. Б.Хмельницького, 7. Оренда – приміщення підвалу, 2 поверху та надвірної будівлі загальною площею 661,4 кв.м. (В)
Україна, Рівненська обл., Рівненський р-н., м. Здолбунів, вул. Б.Хмельницького, 7