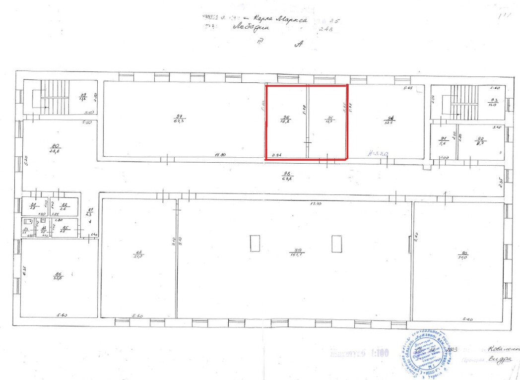
Сумська обл., м. Лебедин, вул. Героїв Майдану, буд. 25. Оренда – приміщення 3-го поверху площею 32,5 кв. м (В)

690.30 грн
21.24 грн / м2
Україна, Сумська обл., м. Лебедин, вул. Героїв Майдану, буд. 25
Перейти до аукціону на сайті
  • Інформація
  • Опис
  • Документи
Дата оголошення пропозиції:
21 лютого 2022
Площа:
32.50 м2
Тип об’єкта:
Приміщення
Тип аукціону:
Англійський аукціон
Статус аукціону:
Аукціон не відбувся
Тип угоди:
Оренда
Розмір мінімального кроку:
50.00 ₴
Розмір гарантійного внеску:
414.18 ₴
Початок прийому пропозицій:
21.02.2022 15:21:42
Завершення прийому пропозицій:
23.03.2022 20:00:00
Лот:
UA-PS-2022-02-21-000025-1
№ лоту (УТК):
UTK061221_02С
Лот виставляється на торги (раз):
3
Стислий опис майна:
Пропонуються до оренди офісні приміщення 3-го поверху площею 32,5 кв. м. адміністративної будівлі. Сама будівля розташована в центрі міста. Окремий вхід з тильної сторони будівлі. Є місце для паркування. Характеристики: кількість поверхів – 3 Загальна площа – 2249,9 кв. м. Площа запропонована до оренди – 32,5 кв. м. Опалення, електропостачання – наявні; Водопостачання – в даному приміщенні відсутнє (є можливість користування санвузлом загального користування на 3-му поверсі) земельна ділянка – 0,1595 га (договір оренди ЗД) стан приміщення - задовільний
Адреса місцезнаходження майна:
Україна, Сумська обл., м. Лебедин, вул. Героїв Майдану, буд. 25
Схожі пропозиції
28.06.2023
Сумська обл., смт. Велика Писарівка, вул. Грайворонська, 11. Оренда – частина нежитлового приміщення на 3-му поверсі площею 172,70 кв.м. (В)
863.50 грн
5.00 грн / м2
Приміщення
Сумська обл., смт. Велика Писарівка, вул. Грайворонська, 11. Оренда – частина нежитлового приміщення на 3-му поверсі площею 172,70 кв.м. (В)
Україна, Сумська обл., смт. Велика Писарівка, вул. Грайворонська, 11
Сумська обл., м. Лебедин, вул. Гастелло, 195. Оренда – приміщення 1-го поверху
4 513.49 грн
7.98 грн / м2
Приміщення
Сумська обл., м. Лебедин, вул. Гастелло, 195. Оренда – приміщення 1-го поверху
Україна, Сумська обл., м. Лебедин, вул. Гастелло, буд. 195
27.10.2023
Сумська обл., Глухівський р-н., смт. Шалигине, вул. 40 років Перемоги. буд. 17; Оренда – приміщення нежитлове площею 64,5 кв.м. (В)
1 290.00 грн
20.00 грн / м2
Приміщення
Сумська обл., Глухівський р-н., смт. Шалигине, вул. 40 років Перемоги. буд. 17; Оренда – приміщення нежитлове площею 64,5 кв.м. (В)
Україна, Сумська обл., смт. Шалигине, вул. 40 років Перемоги. буд. 17
29.07.2025
Сумськаобл., м. Суми, вул. Іллінська, буд. 2. Оренда –частина приміщення цокольного поверху площею 147,9 кв. м. (В)
73 950.00 грн
500.00 грн / м2
Приміщення
Сумськаобл., м. Суми, вул. Іллінська, буд. 2. Оренда –частина приміщення цокольного поверху площею 147,9 кв. м. (В)
Україна, Сумська обл., Суми, Іллінська вулиця, 2
Переглянуті пропозиції
10.01.2023
Дніпропетровська обл., м. Дніпро, вул. Чернишевського, 27. Оренда – приміщення 1-го поверху площею 14,30 кв.м. (В)
971.26 грн
67.92 грн / м2
Приміщення
Дніпропетровська обл., м. Дніпро, вул. Чернишевського, 27. Оренда – приміщення 1-го поверху площею 14,30 кв.м. (В)
Україна, Дніпропетровська обл., м. Дніпро, вул. Чернишевського, 27
08.11.2022
Одеська обл., Одеський р-н, с. Вигода, вул. Центральна, буд. 44. Оренда – приміщення будівлі загальною площею 154,90 кв.м (В)
3 640.15 грн
23.50 грн / м2
Приміщення
Одеська обл., Одеський р-н, с. Вигода, вул. Центральна, буд. 44. Оренда – приміщення будівлі загальною площею 154,90 кв.м (В)
Україна, Харківська обл., Одеський р-н, с. Вигода, вул. Центральна, буд. 44
10.01.2023
Дніпропетровська обл., м. Дніпро, вул. Чернишевського, 27. Оренда – приміщення 1-го поверху площею 12,60 кв.м. (В)
855.79 грн
67.92 грн / м2
Приміщення
Дніпропетровська обл., м. Дніпро, вул. Чернишевського, 27. Оренда – приміщення 1-го поверху площею 12,60 кв.м. (В)
Україна, Дніпропетровська обл., м. Дніпро, вул. Чернишевського, 27