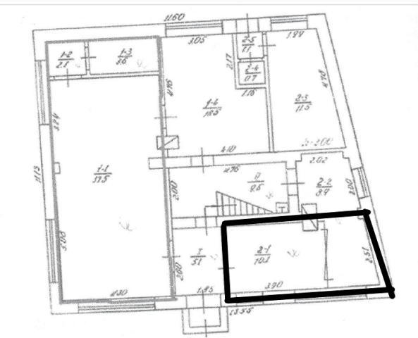
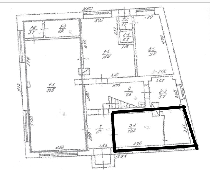
Львівська обл., м. Белз, вул. Домініканська (Савенка), 8.Оренда – приміщення 1-го поверху площею 14,50 кв.м. (В)

1 170.01 грн
80.69 грн / м2
Україна, Львівська обл., м. Белз, вул. Домініканська, 8
Перейти до аукціону на сайті
  • Інформація
  • Опис
  • Документи
Дата оголошення пропозиції:
24 березня 2025
Площа:
14.50 м2
Тип об’єкта:
Приміщення
Тип аукціону:
Англійський аукціон
Статус аукціону:
Аукціон не відбувся
Тип угоди:
Оренда
Розмір мінімального кроку:
100.00 ₴
Розмір гарантійного внеску:
702.00 ₴
Початок прийому пропозицій:
24.03.2025 11:34:35
Завершення прийому пропозицій:
23.04.2025 20:00:00
Проведення аукціону:
24.04.2025 12:30:00
Лот:
CLE001-UA-20250324-81701
№ лоту (УТК):
UTK260623_13P
Лот виставляється на торги (раз):
10
Стислий опис майна:
Пропонуються до оренди приміщення 1-го поверху площею 14,50 кв.м. нежитлової будівлі. Будівля знаходиться в центрі міста, розвинута інфраструктура. Характеристики Кількість поверхів – 2. Стан будівлі – задовільний. Електропостачання.
Адреса місцезнаходження майна:
Україна, Львівська обл., м. Белз, вул. Домініканська, 8
Схожі пропозиції
08.10.2024
Львівська обл., м. Сокаль, вул. Шептицького, 105;  Оренда – приміщення 2-го поверху площею 10,20 кв. м. (В)
379.44 грн
37.20 грн / м2
Приміщення
Львівська обл., м. Сокаль, вул. Шептицького, 105; Оренда – приміщення 2-го поверху площею 10,20 кв. м. (В)
Україна, Львівська обл., Сокаль, вулиця Шептицького, 105
04.02.2025
Львівська обл., м. Новий Розділ, пр. Шевченка, 30;   Оренда – приміщення 2-го поверху площею 49,6 кв. м. (В)
569.41 грн
11.48 грн / м2
Приміщення
Львівська обл., м. Новий Розділ, пр. Шевченка, 30; Оренда – приміщення 2-го поверху площею 49,6 кв. м. (В)
Україна, Львівська обл., Новий Розділ, пр. Шевченка, 30
09.09.2025
Львівська обл., м. Стрий, вул. Головінського,8. Оренда – приміщення гаражу літ. Ж-1, площею 212,50 кв. м. (В)
5 471.88 грн
25.75 грн / м2
Приміщення
Львівська обл., м. Стрий, вул. Головінського,8. Оренда – приміщення гаражу літ. Ж-1, площею 212,50 кв. м. (В)
Україна, Львівська обл., м. Стрий, вул. Головінського, 8
18.04.2023
Львівська обл., м. Золочів, вул. Пушкіна, 9. Оренда – приміщення 1-го поверху площею 35,1 кв.м. (В)
972.97 грн
27.72 грн / м2
Приміщення
Львівська обл., м. Золочів, вул. Пушкіна, 9. Оренда – приміщення 1-го поверху площею 35,1 кв.м. (В)
Україна, Львівська обл., Золочів, вулиця Пушкіна, 9
Переглянуті пропозиції
04.06.2024
Сумська область, Конотопський р-н, м. Буринь, вул. Першотравнева, буд. 5;  Оренда – приміщення 2-го поверху площею 136,90 кв. м. (В)
3 033.70 грн
22.16 грн / м2
Приміщення
Сумська область, Конотопський р-н, м. Буринь, вул. Першотравнева, буд. 5; Оренда – приміщення 2-го поверху площею 136,90 кв. м. (В)
Україна, Сумська обл., Буринь, ,вул. Першотравнева, буд. 5
м. Чернігів, проспект Миру, 28 Оренда приміщення 3го поверху 38,3 кв.м.
5 362.00 грн
140.00 грн / м2
Приміщення
м. Чернігів, проспект Миру, 28 Оренда приміщення 3го поверху 38,3 кв.м.
Україна, Чернігівська обл., м. Чернігів, проспект Миру, 28
09.01.2024
Полтавська обл., Кременчуцький р-н, м. Горішні Плавні, вулиця Миру, 18. Оренда – приміщення 3-го поверху площею 15,90 кв.м. (В)
1 067.37 грн
67.13 грн / м2
Приміщення
Полтавська обл., Кременчуцький р-н, м. Горішні Плавні, вулиця Миру, 18. Оренда – приміщення 3-го поверху площею 15,90 кв.м. (В)
Україна, Полтавська обл., Кременчуцький р-н, м. Горішні Плавні, вулиця Миру, 18
05.06.2024
Чернігівська обл., м. Городня, вул. Чернігівська (Чорновуса), 7;   Оренда – гаражно-складське приміщення загальною площею 223,1 кв.м. (В)
1 325.21 грн
5.94 грн / м2
Приміщення
Чернігівська обл., м. Городня, вул. Чернігівська (Чорновуса), 7; Оренда – гаражно-складське приміщення загальною площею 223,1 кв.м. (В)
Україна, Чернігівська обл., Городня, вулиця Чернігівська, 7