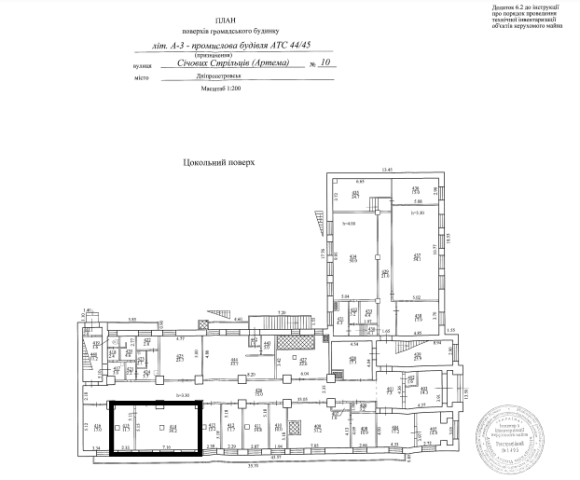
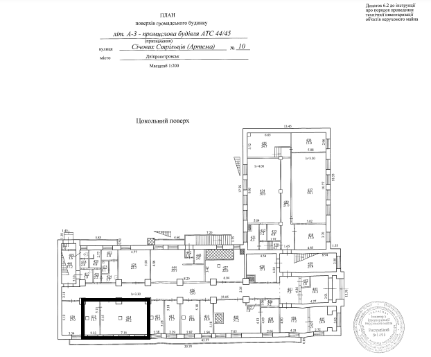
Дніпропетровська обл., м. Дніпро, вул. Січових Стрільців, 10. Оренда – приміщення цокольного поверху площею 47,90 кв.м. (В)

1 437.00 грн
30.00 грн / м2
Україна, Дніпропетровська обл., м. Дніпро, вул. Січових Стрільців, 10
Перейти до аукціону на сайті
  • Інформація
  • Опис
  • Документи
Дата оголошення пропозиції:
25 березня 2025
Площа:
47.90 м2
Тип об’єкта:
Приміщення
Тип аукціону:
Англійський аукціон
Статус аукціону:
Аукціон не відбувся
Тип угоди:
Оренда
Розмір мінімального кроку:
100.00 ₴
Розмір гарантійного внеску:
862.20 ₴
Початок прийому пропозицій:
25.03.2025 10:51:33
Завершення прийому пропозицій:
24.04.2025 20:00:00
Проведення аукціону:
25.04.2025 12:45:00
Лот:
CLE001-UA-20250325-89184
№ лоту (УТК):
UTK281221_04P
Лот виставляється на торги (раз):
10
Стислий опис майна:
Пропонується до оренди приміщення цокольного поверху площею 47,90кв.м. Розташування - будівля знаходиться в центральному районі міста. Поруч знаходяться відділення банку, високий автомобільний і пішохідний потоки. Стан приміщення задовільний, підходить для офісу, студії, Ідеальне місце під розвиток будь-якого бізнесу. Можливість передачі приміщень в суборенду. Характеристики: - Кількість поверхів – 3 - Загальна площа – 2854,80 кв.м. - Площа запропонована до оренди – 47,90 кв.м. - Електропостачання, водопостачання, теплопостачання, охорона та обслуговування пожежної сигналізації, вивіз сміття, прибирання загальних місць та території; - Земельна ділянка – 0, 1636 га (договір оренди)
Адреса місцезнаходження майна:
Україна, Дніпропетровська обл., м. Дніпро, вул. Січових Стрільців, 10
Схожі пропозиції
09.04.2024
Дніпропетровська обл., м. Верхньодніпровськ, вул. Титова, 8; Оренда – приміщення 3-го поверху, площею 169,4 кв.м. (В)
725.03 грн
4.28 грн / м2
Приміщення
Дніпропетровська обл., м. Верхньодніпровськ, вул. Титова, 8; Оренда – приміщення 3-го поверху, площею 169,4 кв.м. (В)
Україна, Дніпропетровська обл., Верхньодніпровськ, вул. Титова, 8
03.09.2025
Дніпропетровська обл., м. Верхньодніпровськ, вул. Титова, 8. Оренда – приміщення 3-го поверху, площею 169,40 кв.м. (В)
2 032.80 грн
12.00 грн / м2
Приміщення
Дніпропетровська обл., м. Верхньодніпровськ, вул. Титова, 8. Оренда – приміщення 3-го поверху, площею 169,40 кв.м. (В)
Україна, Дніпропетровська обл., Верхньодніпровськ, Верхньодніпровськ, вул. Титова, 8
Дніпропетровська обл., м. Кам`янське, пр. Героїв АТО, 1. Оренда – приміщення 3-го поверху площею 25,40 кв.м. (П)
1 432.56 грн
56.40 грн / м2
Приміщення
Дніпропетровська обл., м. Кам`янське, пр. Героїв АТО, 1. Оренда – приміщення 3-го поверху площею 25,40 кв.м. (П)
Україна, Дніпропетровська обл., м. Кам`янське, пр. Героїв АТО, 1
06.10.2023
Дніпропетровська обл., м. Кривий Ріг, вул. Водоп`янова, 1а. Оренда – приміщення 4-го поверху, площею 789,8 кв.м. (В)
7 108.20 грн
9.00 грн / м2
Приміщення
Дніпропетровська обл., м. Кривий Ріг, вул. Водоп`янова, 1а. Оренда – приміщення 4-го поверху, площею 789,8 кв.м. (В)
Україна, Дніпропетровська обл., Кривий Ріг, вулиця Водоп'янова, 1а