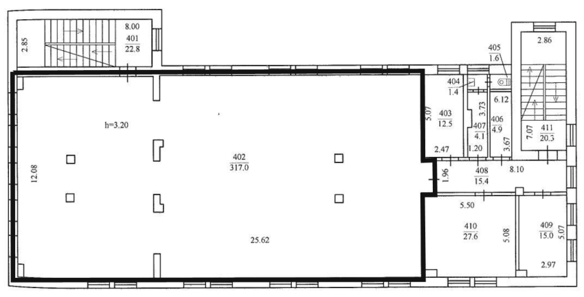
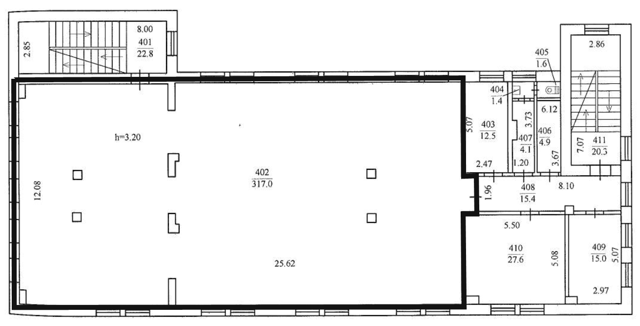
Дніпропетровська обл., м. Кам’янське, просп. Свободи, 44. Оренда – приміщення 4-го поверху загальною площею 317,00 кв.м (В)

3 804.00 грн
12.00 грн / м2
Україна, Дніпропетровська обл., м. Кам’янське, просп. Свободи, 44
Перейти до аукціону на сайті
  • Інформація
  • Опис
  • Документи
Дата оголошення пропозиції:
25 березня 2025
Площа:
317.00 м2
Тип об’єкта:
Приміщення
Тип аукціону:
Англійський аукціон
Статус аукціону:
Аукціон не відбувся
Тип угоди:
Оренда
Розмір мінімального кроку:
200.00 ₴
Розмір гарантійного внеску:
2 282.40 ₴
Початок прийому пропозицій:
25.03.2025 13:12:28
Завершення прийому пропозицій:
24.04.2025 20:00:00
Проведення аукціону:
25.04.2025 11:35:00
Лот:
CLE001-UA-20250325-49329
№ лоту (УТК):
UTK230224_17P
Лот виставляється на торги (раз):
10
Стислий опис майна:
Пропонується до оренди приміщення 4-го поверху площею 317,00 кв.м (прим.№ 402). Будівля в центрі міста. Поруч знаходяться об’єкти соціальної інфраструктури: відділення пошти та банку, клініка, магазини, ринок тощо. Стан приміщення відмінний, підходить для офісу, ідеальне місце під розвиток будь-якого бізнесу. Зручна транспортна розв’язка та інфраструктура. Характеристики: Кількість поверхів – 5 Загальна площа – 2506,00 кв.м Площа запропонована до оренди – 317,00 кв.м Електропостачання, водопостачання, теплопостачання Земельна ділянка – 0,2324 га (договір оренди) Ресурсні податки – 2,68 грн за 1 кв.м
Адреса місцезнаходження майна:
Україна, Дніпропетровська обл., м. Кам’янське, просп. Свободи, 44
Схожі пропозиції
10.09.2024
Дніпропетровська обл., м. Жовті Води, вул. Свободи, 39;  Оренда – приміщення 3-го поверху площею 32,5 кв.м. (В)
487.50 грн
15.00 грн / м2
Приміщення
Дніпропетровська обл., м. Жовті Води, вул. Свободи, 39; Оренда – приміщення 3-го поверху площею 32,5 кв.м. (В)
Україна, Дніпропетровська обл., Жовті Води, бульвар Свободи, 39
10.10.2025
Дніпропетровська обл., м. Кам’янське, просп. Героїв АТО, 1. Оренда – приміщення 2-го поверху загальною площею 161,0 кв.м (В)
1 932.00 грн
12.00 грн / м2
Приміщення
Дніпропетровська обл., м. Кам’янське, просп. Героїв АТО, 1. Оренда – приміщення 2-го поверху загальною площею 161,0 кв.м (В)
Україна, Дніпропетровська обл., м. Кам’янське, просп. Героїв АТО, 1
28.10.2022
Дніпропетровська обл., м. Кривий Ріг, вул. Водоп`янова, 1а. Оренда – приміщення 5-го поверху, площею 809,70 кв.м. (В)
26 039.95 грн
32.16 грн / м2
Приміщення
Дніпропетровська обл., м. Кривий Ріг, вул. Водоп`янова, 1а. Оренда – приміщення 5-го поверху, площею 809,70 кв.м. (В)
Україна, Дніпропетровська обл., Кривий Ріг, вулиця Водоп'янова, 1а
Переглянуті пропозиції
12.07.2024
Сумська обл., м. Путивль, вул. Першотравнева, буд. 86. Оренда – офісні приміщення 2-го поверху площею 54,60 кв.м. (В)
518.70 грн
9.50 грн / м2
Офіс
Сумська обл., м. Путивль, вул. Першотравнева, буд. 86. Оренда – офісні приміщення 2-го поверху площею 54,60 кв.м. (В)
Україна, Сумська обл., м. Путивль, вул. Першотравнева, буд. 86
м. Кременчук, вул. Соборна, 17 Оренда приміщень 148,9 кв.м., 1й пов.
14 890.00 грн
100.00 грн / м2
Приміщення
м. Кременчук, вул. Соборна, 17 Оренда приміщень 148,9 кв.м., 1й пов.
Україна, Полтавська обл., м. Кременчук, вул. Соборна, 17
26.12.2024
Рівненська обл., Рівненський р-н, с. Олександрія, вулиця Свято-Преображенська, 64 . Оренда – нежитлові приміщення 1 –го та 2 –го поверху загальною площею 433,6 кв. м. (В)
3 121.92 грн
7.20 грн / м2
Приміщення
Рівненська обл., Рівненський р-н, с. Олександрія, вулиця Свято-Преображенська, 64 . Оренда – нежитлові приміщення 1 –го та 2 –го поверху загальною площею 433,6 кв. м. (В)
Україна, Рівненська обл., Рівненський р-н, с. Олександрія, вулиця Свято-Преображенська, 64
30.01.2024
Полтавська обл., Миргородський р-н, м.Миргород, вул. Гоголя, 96/9;  Оренда–приміщення 2-го поверху площею 22,20 кв.м. (В)
523.92 грн
23.60 грн / м2
Приміщення
Полтавська обл., Миргородський р-н, м.Миргород, вул. Гоголя, 96/9; Оренда–приміщення 2-го поверху площею 22,20 кв.м. (В)
Україна, Полтавська обл., Миргород, вулиця Гоголя, 96/9