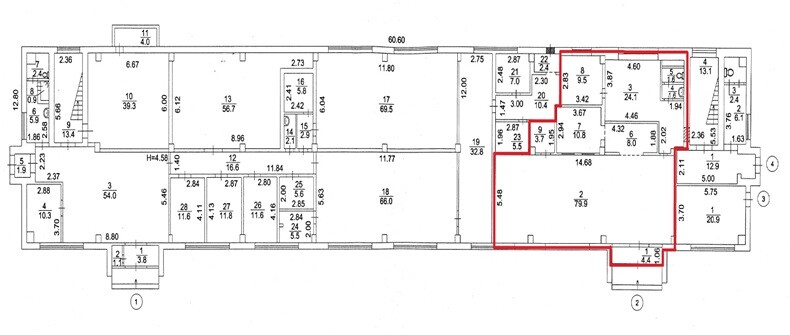
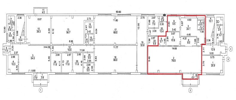
м. Київ, пр-т. Академіка Глушкова, 38 (Голосіївський р-н). Оренда – приміщення 1-го поверху, загальною площею – 143,60 кв. м. (В)

22 471.97 грн
156.49 грн / м2
Україна, м.Київ, Київ, 03187, м. Київ, пр-т. Академіка Глушкова, 38 (Голосіївський р-н)
Перейти до аукціону на сайті
  • Інформація
  • Опис
  • Документи
Дата оголошення пропозиції:
28 березня 2025
Площа:
143.60 м2
Тип об’єкта:
Приміщення
Тип аукціону:
Англійський аукціон
Статус аукціону:
Аукціон не відбувся
Тип угоди:
Оренда
Розмір мінімального кроку:
200.00 ₴
Розмір гарантійного внеску:
13 483.19 ₴
Початок прийому пропозицій:
28.03.2025 15:51:40
Завершення прийому пропозицій:
29.04.2025 20:00:00
Проведення аукціону:
30.04.2025 11:35:00
Лот:
CLE001-UA-20250328-62376
№ лоту (УТК):
UTK200225_42U
Лот виставляється на торги (раз):
2
Стислий опис майна:
Пропонуються до оренди приміщення 1-го поверху, загальною площею 143,6 кв.м. Будівля знаходиться у Голосіївському районі міста Києва, житловий масив Теремки. Зупинки маршрутного транспорту, супермаркети, торгово-розважальні центри. Найближчі станції метро «Теремки». Доступ 24/7. Характеристики: • кількість поверхів – 4; • загальна площа будівлі – 2 777,30 м2; • земельна ділянка – 0,2109 га*; • дозволена потужність – 10,0 кВт; • сан. вузол, водопостачання, каналізація – присутні; • опалення централізоване (міське). *земельна ділянка не є предметом оренди;
Адреса місцезнаходження майна:
Україна, м.Київ, Київ, 03187, м. Київ, пр-т. Академіка Глушкова, 38 (Голосіївський р-н)
Схожі пропозиції
18.10.2022
м. Київ, вул. Дегтярівська, 28-А. Оренда – приміщення 1-го поверху площею 115,95 кв.м. (В)
12 453.03 грн
107.40 грн / м2
Приміщення
м. Київ, вул. Дегтярівська, 28-А. Оренда – приміщення 1-го поверху площею 115,95 кв.м. (В)
Україна, м.Київ, Київ, вулиця Дегтярівська, 28А
20.06.2023
м. Київ, вул. Василя Макуха (Івана Шевцова), 5 Оренда – приміщення 1-го поверху будівлі, площею 401,5 м2 (В)
41 860.39 грн
104.26 грн / м2
Приміщення
м. Київ, вул. Василя Макуха (Івана Шевцова), 5 Оренда – приміщення 1-го поверху будівлі, площею 401,5 м2 (В)
Україна, м.Київ, м. Київ, вулиця Василя Макуха (Івана Шевцова), 5
23.04.2025
м. Київ, вул. Наталії Ужвій 1 (Подільський р-н). Оренда – приміщення 1-го поверху, загальною площею – 68,90 м. кв.(В)
9 012.12 грн
130.80 грн / м2
Приміщення
м. Київ, вул. Наталії Ужвій 1 (Подільський р-н). Оренда – приміщення 1-го поверху, загальною площею – 68,90 м. кв.(В)
Україна, м.Київ, Київ, вулиця Наталії Ужвій, 1
23.07.2024
ДОВГОСТРОКОВА ОРЕНДА! м. Київ, вул. Салютна, 5а, літ. «Б»;  Оренда – приміщення 3-го та 4-го поверхів площею 992,8 кв.м. (В)
122 720.01 грн
123.61 грн / м2
Приміщення
ДОВГОСТРОКОВА ОРЕНДА! м. Київ, вул. Салютна, 5а, літ. «Б»; Оренда – приміщення 3-го та 4-го поверхів площею 992,8 кв.м. (В)
Україна, м.Київ, Київ, вулиця Салютна, 5а, літ.Б