м. Київ, вул. Миколи Голего, 8. Оренда – приміщення 1-го поверху площею 30,90 кв.м (В)

5 096.96 грн
164.95 грн / м2
Україна, м.Київ, Київ, вулиця Миколи Голего, 8
Перейти до аукціону на сайті
  • Інформація
  • Опис
  • Документи
Дата оголошення пропозиції:
03 квітня 2025
Площа:
30.90 м2
Тип об’єкта:
Приміщення
Тип аукціону:
Англійський аукціон
Статус аукціону:
Аукціон не відбувся
Тип угоди:
Оренда
Розмір мінімального кроку:
100.00 ₴
Розмір гарантійного внеску:
3 058.17 ₴
Початок прийому пропозицій:
03.04.2025 18:04:57
Завершення прийому пропозицій:
06.05.2025 20:00:00
Проведення аукціону:
07.05.2025 12:20:00
Лот:
CLE001-UA-20250403-24092
№ лоту (УТК):
UTK280225_63U
Лот виставляється на торги (раз):
2
Стислий опис майна:
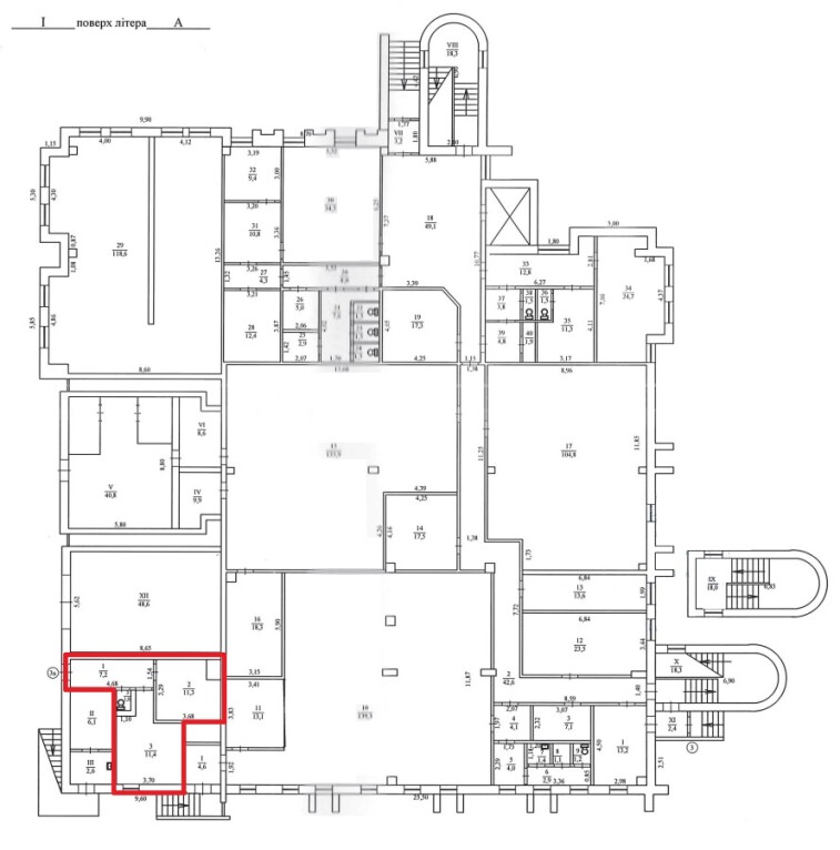
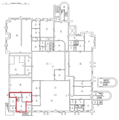
Пропонуються до оренди приміщення 1-го поверху площею 30,90 кв.м.. Розташування будівлі: у Солом'янському районі міста Києва, місцевість Караваєві дачі. Поруч розвинена інфраструктура, зупинки маршрутного транспорту, магазини, кафе, аптеки, середній автомобільний і пішохідний потоки. Доступ 24/7. Характеристики • загальна площа будівлі – 5639,80 м2 ; • сан. вузол, каналізація, водопостачання – присутне; • кількість поверхів – 4; • енергетична потужність – 3 кВт; • опалення централізоване (міське); • площа земельної ділянки – 0,3625 га.
Адреса місцезнаходження майна:
Україна, м.Київ, Київ, вулиця Миколи Голего, 8
Схожі пропозиції
05.04.2023
м. Київ, вул. Миколи Голего, 8. Оренда – приміщення 1-го поверху площею 30,9 м2 (В)
3 337.20 грн
108.00 грн / м2
Приміщення
м. Київ, вул. Миколи Голего, 8. Оренда – приміщення 1-го поверху площею 30,9 м2 (В)
Україна, м.Київ, Київ, вулиця Миколи Голего, 8
м. Київ, вул. Маршала Малиновського №19-А. Оренда – приміщення 1-го поверху площею 120,30 кв.м. (В)
20 681.98 грн
171.92 грн / м2
Приміщення
м. Київ, вул. Маршала Малиновського №19-А. Оренда – приміщення 1-го поверху площею 120,30 кв.м. (В)
Україна, м.Київ, Київ, вул. Маршала Малиновського №19-А
м. Київ, вул. Райдужна, 27-А, оренда – приміщення підвалу, площею 289,96 м2 (В)
26 618.33 грн
91.80 грн / м2
Приміщення
м. Київ, вул. Райдужна, 27-А, оренда – приміщення підвалу, площею 289,96 м2 (В)
Україна, м.Київ, Київ, вул. Райдужна, 27-А
м. Київ, вул. Джона Маккейна, №40, оренда – приміщення 2-го поверху, площею 920,80 м2 (В)
179 749.37 грн
195.21 грн / м2
Приміщення
м. Київ, вул. Джона Маккейна, №40, оренда – приміщення 2-го поверху, площею 920,80 м2 (В)
Україна, м.Київ, Київ, вул. Джона Маккейна, 40