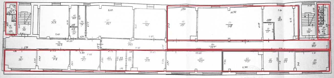
Рівненська обл., м. Рівне, вул. Соборна, 271. Оренда – приміщення 2-го поверху площею 430,5 кв.м. (В)

25 830.00 грн
60.00 грн / м2
Україна, Рівненська обл., м. Рівне, вул. Соборна, 271
Перейти до аукціону на сайті
  • Інформація
  • Опис
  • Документи
Дата оголошення пропозиції:
22 квітня 2025
Площа:
430.50 м2
Тип об’єкта:
Приміщення
Тип аукціону:
Англійський аукціон
Статус аукціону:
Аукціон не відбувся
Тип угоди:
Оренда
Розмір мінімального кроку:
1 000.00 ₴
Розмір гарантійного внеску:
15 498.00 ₴
Початок прийому пропозицій:
22.04.2025 10:45:51
Завершення прийому пропозицій:
26.05.2025 20:00:00
Проведення аукціону:
27.05.2025 12:30:00
Лот:
CLE001-UA-20250422-54257
№ лоту (УТК):
UTK270522_06P
Лот виставляється на торги (раз):
10
Стислий опис майна:
Пропонуються до оренди приміщення 2-го поверху загальною площею 430,5 кв.м. Будівля знаходиться на околиці міста. Розвинена інфраструктура, досить високі автомобільний та пішохідний потоки. Поряд парк , стоянка для автомобілів . Приміщення потребують реконструкції електромережі. Характеристики: Кількість поверхів – 4 ; Загальна площа – 2647 кв.м.; Площа, запропонована до оренди – 430,5 кв.м.; Опалення – централізоване; Земельна ділянка - площа 0,482 га. (договір оренди)
Адреса місцезнаходження майна:
Україна, Рівненська обл., м. Рівне, вул. Соборна, 271
Схожі пропозиції
01.11.2022
Рівненська обл., Вараський р-н, с. Більська Воля, вул. Шкільна, 14. Оренда – нежитлові приміщення площею 62,8 кв.м. (В)
1 186.29 грн
18.89 грн / м2
Приміщення
Рівненська обл., Вараський р-н, с. Більська Воля, вул. Шкільна, 14. Оренда – нежитлові приміщення площею 62,8 кв.м. (В)
Україна, Рівненська обл., Більська Воля, вулиця Шкільна, 14
25.07.2025
Рівненська обл., Дубенський р-н. с. Верба вул. Грушевського ,4 . Оренда – виробничі приміщення площею 146,7 кв.м. (В)
2 614.19 грн
17.82 грн / м2
Приміщення
Рівненська обл., Дубенський р-н. с. Верба вул. Грушевського ,4 . Оренда – виробничі приміщення площею 146,7 кв.м. (В)
Україна, Рівненська обл., Дубенський р-н. с. Верба, вул. Грушевського ,4
20.06.2023
Рівненська обл., Рівненський р-н., с. Вітковичі, вул. Ковальська, 1. Оренда – частина приміщення одноповерхової будівлі, площею 10,8 кв.м. (В)
500.04 грн
46.30 грн / м2
Приміщення
Рівненська обл., Рівненський р-н., с. Вітковичі, вул. Ковальська, 1. Оренда – частина приміщення одноповерхової будівлі, площею 10,8 кв.м. (В)
Україна, Рівненська обл., Рівненський р-н., с. Вітковичі, вул. Ковальська, 1
10.06.2025
м. Острог, проспект Незалежності, 7. Оренда – приміщення 3-го поверху загальною площею 10,40 кв. м. (В)
344.03 грн
33.08 грн / м2
Приміщення
м. Острог, проспект Незалежності, 7. Оренда – приміщення 3-го поверху загальною площею 10,40 кв. м. (В)
Україна, Рівненська обл., Острог, 35800, Рівненська обл., м. Острог, проспект. Незалежності, 7
Переглянуті пропозиції
13.09.2023
м. Харків, вул. Конторська,14.Оренда – приміщення 2-го поверху площею 24,8 кв.м (В)
2 086.92 грн
84.15 грн / м2
Приміщення
м. Харків, вул. Конторська,14.Оренда – приміщення 2-го поверху площею 24,8 кв.м (В)
Україна, Харківська обл., м. Харків, вул. Конторська,14
Львівська обл., Червоноградський р-н, м. Сокаль, вул. Шептицького, 105. Оренда – приміщення 1-го поверху площею 32,50 кв.м. (В)
846.30 грн
26.04 грн / м2
Приміщення
Львівська обл., Червоноградський р-н, м. Сокаль, вул. Шептицького, 105. Оренда – приміщення 1-го поверху площею 32,50 кв.м. (В)
Україна, Львівська обл., Червоноградський р-н, м. Сокаль, вул. Шептицького, 105