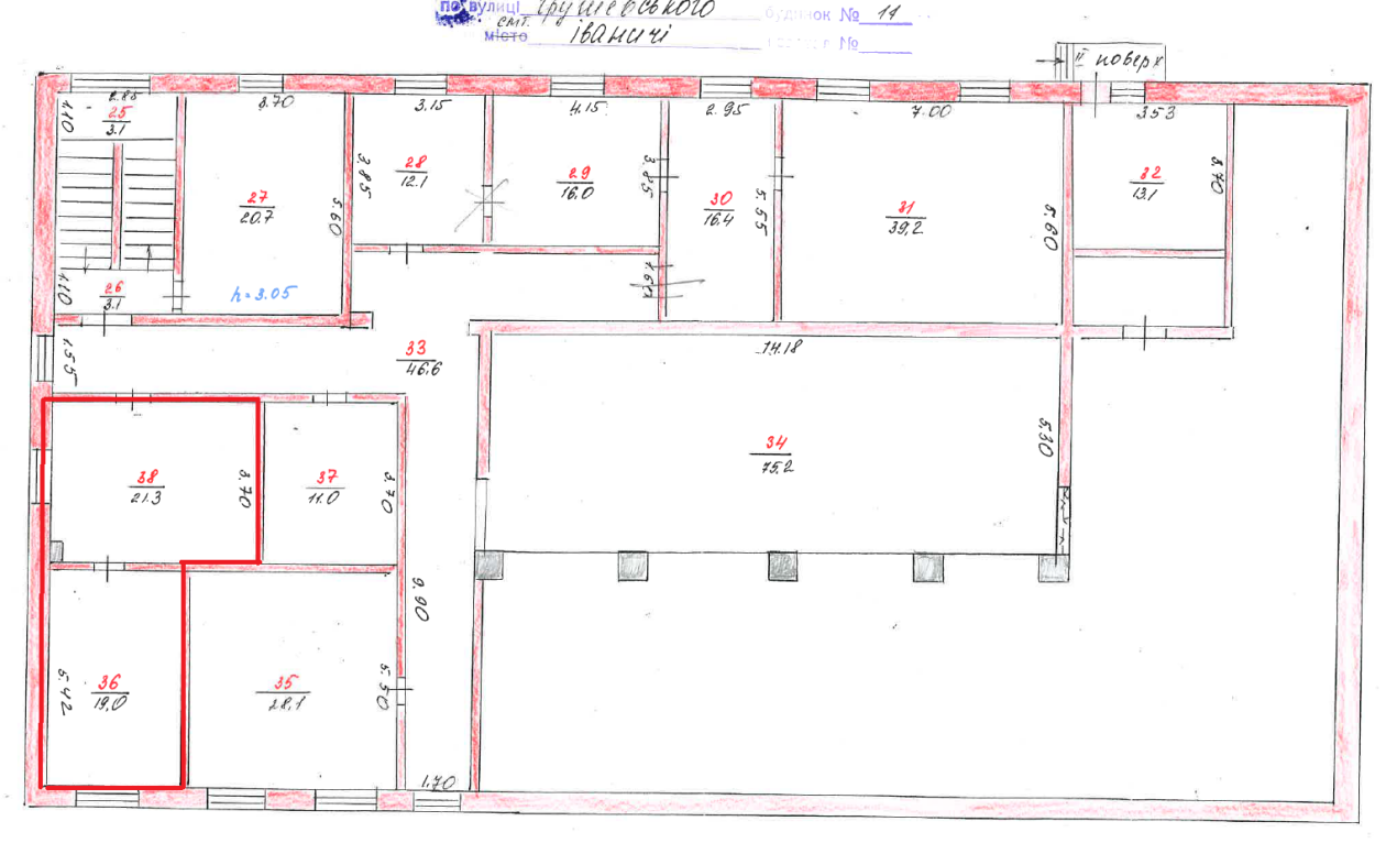
Волинська обл., Володимир-Волинського р-н, смт. Іваничі, вул. Грушевського, 11. Оренда – приміщення 2-го поверху адмінбудівлі площею 40,30 кв.м (В)

1 246.08 грн
30.92 грн / м2
Україна, Волинська обл., Володимир-Волинського р-н, смт. Іваничі, вул. Грушевського, 11
Перейти до аукціону на сайті
  • Інформація
  • Опис
  • Документи
Дата оголошення пропозиції:
22 квітня 2025
Площа:
40.30 м2
Тип об’єкта:
Приміщення
Тип аукціону:
Англійський аукціон
Статус аукціону:
Аукціон не відбувся
Тип угоди:
Оренда
Розмір мінімального кроку:
50.00 ₴
Розмір гарантійного внеску:
747.65 ₴
Початок прийому пропозицій:
22.04.2025 11:30:57
Завершення прийому пропозицій:
26.05.2025 20:00:00
Проведення аукціону:
27.05.2025 11:40:00
Лот:
CLE001-UA-20250422-69161
№ лоту (УТК):
UTK071221_22P
Лот виставляється на торги (раз):
10
Стислий опис майна:
Пропонуються до оренди приміщення 2-го поверху адмінбудівлі площею 40,30 кв.м, що можуть бути використані під офіс, навчальний клас, діагностичний кабінет, майстерню тощо. Вікна виходять на фасадну та бічну сторони будівлі. Вхід – загальний (зі сторони внутрішнього двору). Будівля знаходиться у центральній частині міста, поряд – проїжджа частина. Добре розвинена інфраструктура, середні пішохідні та автомобільні потоки. Характеристики: кількість поверхів – 3; загальна площа – 1320,10 кв.м площа, запропонована до оренди – 40,30 кв.м; опалення-газовий котел; водопостачання, водовідведення – централізованеі; земельна ділянка – 0,2399 га (договір оренди)
Адреса місцезнаходження майна:
Україна, Волинська обл., Володимир-Волинського р-н, смт. Іваничі, вул. Грушевського, 11
Схожі пропозиції
Волинська обл., м. Любомль, вул. Б.Хмельницького, 2. Оренда – приміщення 2-го поверху площею 136,3 кв.м.
2 277.57 грн
16.71 грн / м2
Приміщення
Волинська обл., м. Любомль, вул. Б.Хмельницького, 2. Оренда – приміщення 2-го поверху площею 136,3 кв.м.
Україна, Волинська обл., м. Любомль, вул. Б.Хмельницького, 2
Волинська обл., м. Луцьк, вул. Лесі Українки, 52. Оренда – приміщення 3-го поверху 35,0 кв.м.
2 667.00 грн
76.20 грн / м2
Приміщення
Волинська обл., м. Луцьк, вул. Лесі Українки, 52. Оренда – приміщення 3-го поверху 35,0 кв.м.
Україна, Волинська обл., м. Луцьк, вул. Лесі Українки, 52
Волинська обл., м. Луцьк, вул. Кривий Вал, 28. Оренда – приміщення з гаражем площею 39,80 кв.м (В)
2 204.12 грн
55.38 грн / м2
Приміщення
Волинська обл., м. Луцьк, вул. Кривий Вал, 28. Оренда – приміщення з гаражем площею 39,80 кв.м (В)
Україна, Волинська обл., Луцьк, вул. Кривий Вал, 28
03.04.2024
Волинська обл., Ковельський р-н, с. Олеськ, вул. Богдана Хмельницького,1;     Оренда – приміщення 1-го поверху площею 37,10 кв.м (В)
519.40 грн
14.00 грн / м2
Приміщення
Волинська обл., Ковельський р-н, с. Олеськ, вул. Богдана Хмельницького,1; Оренда – приміщення 1-го поверху площею 37,10 кв.м (В)
Україна, Волинська обл., Олеськ, вул. Богдана Хмельницького, 1