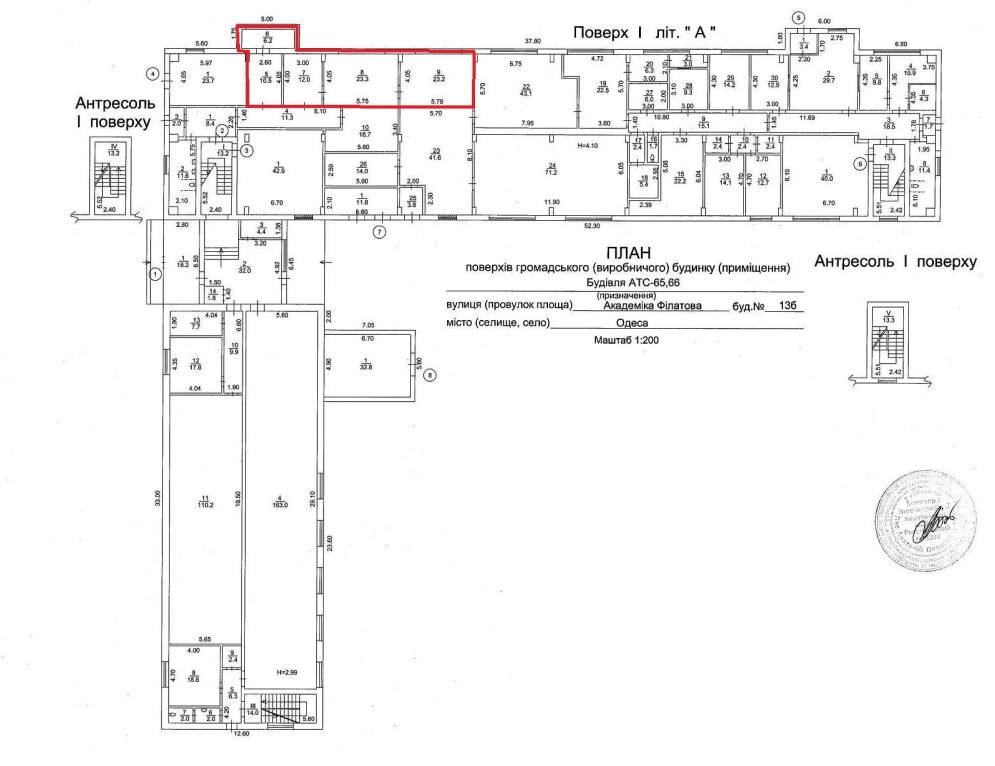
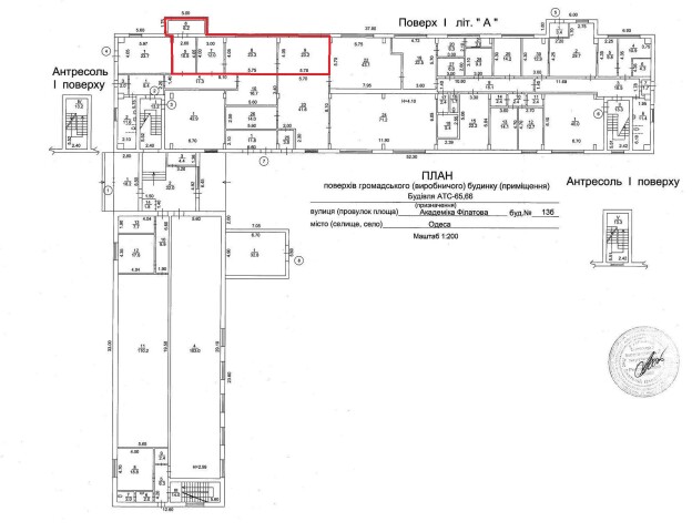
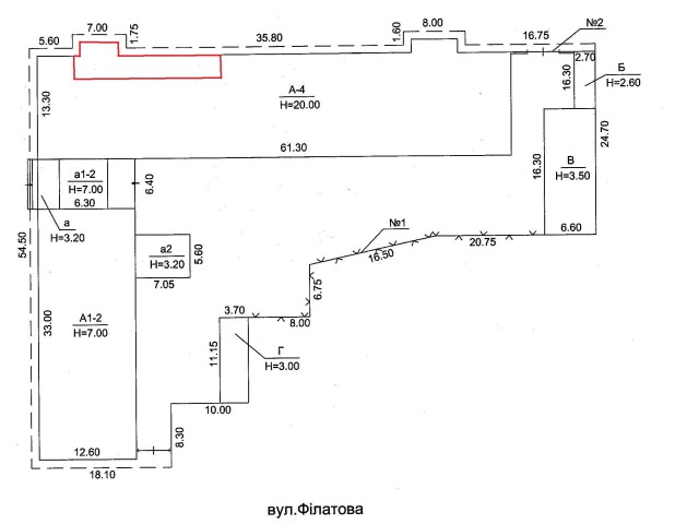
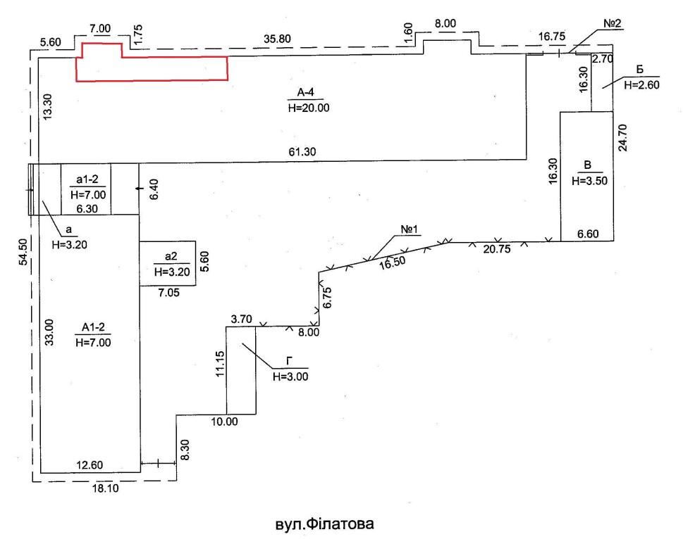
Одеська обл., м. Одеса, вул. Ак. Філатова, 13б. Оренда – приміщення 1-го поверху площею 75,20 кв.м. (В)

4 512.00 грн
60.00 грн / м2
Україна, Одеська обл., м. Одеса, вул. Ак. Філатова, 13б
Перейти до аукціону на сайті
  • Інформація
  • Опис
  • Документи
Дата оголошення пропозиції:
28 квітня 2025
Площа:
75.20 м2
Тип об’єкта:
Приміщення
Тип аукціону:
Англійський аукціон
Статус аукціону:
Аукціон не відбувся
Тип угоди:
Оренда
Розмір мінімального кроку:
100.00 ₴
Розмір гарантійного внеску:
2 707.20 ₴
Початок прийому пропозицій:
28.04.2025 12:57:23
Завершення прийому пропозицій:
29.05.2025 20:00:00
Проведення аукціону:
30.05.2025 12:55:00
Лот:
CLE001-UA-20250428-19623
№ лоту (УТК):
UTK130123_02P
Лот виставляється на торги (раз):
10
Стислий опис майна:
Пропонується до оренди приміщення 1-го поверху загальною площею 75,20 кв.м. Об'єкт знаходиться у спальній частині міста, оточений з усіх сторін домами, поряд школа. Високий пішохідний та автомобільний трафік. Приміщення виробничо-офісного типу, підходить під магазин, аптеку з окремим входом. Приміщення потребують ремонту. Поряд з будівлею знаходяться місця для паркування авто та підзарядки електро авто. Характеристики: кількість поверхів – 4; Загальна площа – 3 718,60 кв.м Площа запропонована до оренди – 75,20 кв.м опалення - відсутнє; земельна ділянка – 0,3614 га
Адреса місцезнаходження майна:
Україна, Одеська обл., м. Одеса, вул. Ак. Філатова, 13б
Схожі пропозиції
07.01.2025
Одеська обл., Подільський р-н, смт. Любашівка, вул. Софіївська, буд. 87б. Оренда – приміщення 2-го поверху загальною площею 66,00 кв.м (В)
3 484.80 грн
52.80 грн / м2
Приміщення
Одеська обл., Подільський р-н, смт. Любашівка, вул. Софіївська, буд. 87б. Оренда – приміщення 2-го поверху загальною площею 66,00 кв.м (В)
Україна, Одеська обл., Подільський р-н, смт. Любашівка, вул. Софіївська, буд. 87б
24.10.2023
Одеська обл., Білгород-Дністровський р-н., смт. Сарата, вул. Чкалова, буд. 15. Оренда – приміщення 2-го поверху площею 25,40 кв.м. (В)
809.50 грн
31.87 грн / м2
Приміщення
Одеська обл., Білгород-Дністровський р-н., смт. Сарата, вул. Чкалова, буд. 15. Оренда – приміщення 2-го поверху площею 25,40 кв.м. (В)
Україна, Одеська обл., Білгород-Дністровський р-н., смт. Сарата, вул. Чкалова, буд. 15
17.03.2023
ДОВГОСТРОКОВА ОРЕНДА! Одеська обл., м. Одеса, провулок Гвоздичний, 6. Оренда – приміщення 3-го поверху загальною площею 849,10 кв.м (В)
54 868.84 грн
64.62 грн / м2
Приміщення
ДОВГОСТРОКОВА ОРЕНДА! Одеська обл., м. Одеса, провулок Гвоздичний, 6. Оренда – приміщення 3-го поверху загальною площею 849,10 кв.м (В)
Україна, Одеська обл., м. Одеса, провулок Гвоздичний, 6
26.08.2022
Одеська обл., Березівський р-н, смт. Миколаївка, вул. Карпішина, 53а. Оренда – приміщення в одноповерховій будівлі площею 84,60 кв.м (В)
2 680.13 грн
31.68 грн / м2
Приміщення
Одеська обл., Березівський р-н, смт. Миколаївка, вул. Карпішина, 53а. Оренда – приміщення в одноповерховій будівлі площею 84,60 кв.м (В)
Україна, Одеська обл., Березівський р-н, смт. Миколаївка, вул. Карпішина, 53а
Переглянуті пропозиції
17.04.2025
Одеська обл., м. Одеса, вул. Люстдорфська дорога, буд. №55б. Оренда – приміщення 1-го поверху загальною площею 111,50 кв.м (В)
6 690.00 грн
60.00 грн / м2
Приміщення
Одеська обл., м. Одеса, вул. Люстдорфська дорога, буд. №55б. Оренда – приміщення 1-го поверху загальною площею 111,50 кв.м (В)
Україна, Одеська обл., м. Одеса, вул. Люстдорфська дорога, буд. №55б