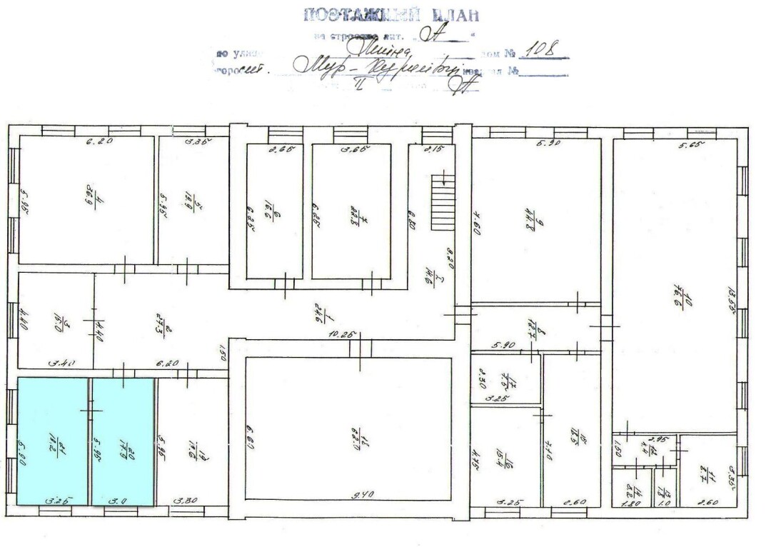
Вінницька обл., Могилів-Подільський р-н., смт. Муровані Курилівці, вул. Соборна, 108. Оренда – Приміщення 2-го поверху площею 37,10 кв.м. (В)

534.24 грн
14.40 грн / м2
Україна, Вінницька обл., Муровані Курилівці, вул. Соборна, 108
Перейти до аукціону на сайті
  • Інформація
  • Опис
  • Документи
Дата оголошення пропозиції:
29 квітня 2025
Площа:
37.10 м2
Тип об’єкта:
Приміщення
Тип аукціону:
Англійський аукціон
Статус аукціону:
Аукціон не відбувся
Тип угоди:
Оренда
Розмір мінімального кроку:
10.00 ₴
Розмір гарантійного внеску:
320.54 ₴
Початок прийому пропозицій:
29.04.2025 23:54:50
Завершення прийому пропозицій:
29.05.2025 20:00:00
Проведення аукціону:
30.05.2025 11:05:00
Лот:
CLE001-UA-20250429-43776
№ лоту (УТК):
UTK120721_14U
Лот виставляється на торги (раз):
1
Стислий опис майна:
Пропонуються до оренди приміщення другого поверху площею 37,10 кв.м. Будівля знаходиться в центральній частині смт. Муровані Курилівці. Поряд розташовані Центр надання адміністративних послуг, відділення «ПриватБанку», торговельні заклади. Ідеальне місце під офісні приміщення. Характеристики - Кількість поверхів –2; - Електропостачання.
Адреса місцезнаходження майна:
Україна, Вінницька обл., Муровані Курилівці, вул. Соборна, 108
Схожі пропозиції
м. Вінниця, пр-т. Коцюбинського, 28, оренда – складські приміщення цокольного поверху площею 98,5 кв.м. (В)
1 461.74 грн
14.84 грн / м2
Приміщення
м. Вінниця, пр-т. Коцюбинського, 28, оренда – складські приміщення цокольного поверху площею 98,5 кв.м. (В)
Україна, Вінницька обл., Вінниця, пр-т. Коцюбинського, 28
10.05.2023
Вінницька обл., Жмеринський р-н., м. Бар, майдан Святого Миколая, 20. Оренда – приміщення 1-го поверху площею 8,8 кв.м. (В)
501.60 грн
57.00 грн / м2
Приміщення
Вінницька обл., Жмеринський р-н., м. Бар, майдан Святого Миколая, 20. Оренда – приміщення 1-го поверху площею 8,8 кв.м. (В)
Україна, Вінницька обл., Бар, вулиця Святого Миколая, 20
Вінницька обл., м. Ладижин, вул. Кравчика, 2. Оренда – приміщення 3-го поверху
114.03 грн
12.67 грн / м2
Приміщення
Вінницька обл., м. Ладижин, вул. Кравчика, 2. Оренда – приміщення 3-го поверху
Україна, Вінницька обл., м. Ладижин, вул. Кравчика, буд. 2