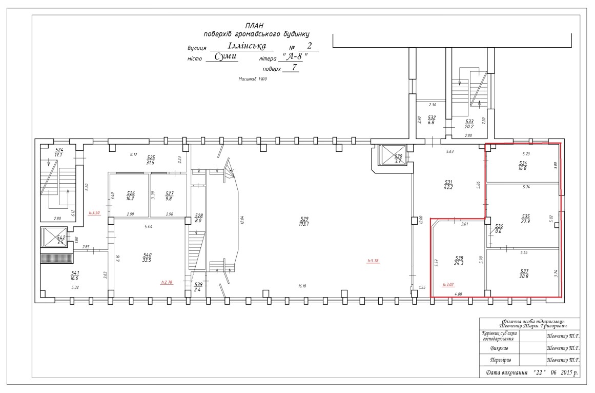
Сумська обл., м. Суми, вул. Іллінська, буд. 2. Оренда – офісні приміщення 7-го поверху площею 89,80 кв.м. (В)

2 694.00 грн
30.00 грн / м2
Україна, Сумська обл., м. Суми, вул. Іллінська, буд. 2
Перейти до аукціону на сайті
  • Інформація
  • Опис
  • Документи
Дата оголошення пропозиції:
01 травня 2025
Площа:
89.80 м2
Тип об’єкта:
Офіс
Тип аукціону:
Англійський аукціон
Статус аукціону:
Аукціон не відбувся
Тип угоди:
Оренда
Розмір мінімального кроку:
100.00 ₴
Розмір гарантійного внеску:
1 616.40 ₴
Початок прийому пропозицій:
01.05.2025 11:39:45
Завершення прийому пропозицій:
02.06.2025 20:00:00
Проведення аукціону:
03.06.2025 12:25:00
Лот:
CLE001-UA-20250501-37072
№ лоту (УТК):
UTK060922_07P
Лот виставляється на торги (раз):
10
Стислий опис майна:
Пропонується до оренди офісні приміщення 7-го поверху площею 89,80 кв. м.на восьмиповерхового будинку зв`язку в центральній частині міста. Окремий вхід з фасаду будівлі. Чудова візуалізація з дороги, поруч зупинки, магазини, аптеки, універмаг. Відсутній доступ до приміщення маломобільних груп населення. Ліфт потребує капітального ремонту (відключений). Характеристики: кількість поверхів – 8; Загальна площа – 11 677,00 кв. м.; Площа запропонована до оренди – 89,80 кв. м; Опалення, електропостачання, санвузол та водопостачання - наявні; земельна ділянка – 0.6776 га (договір оренди ЗД); стан приміщення – добрий
Адреса місцезнаходження майна:
Україна, Сумська обл., м. Суми, вул. Іллінська, буд. 2
Схожі пропозиції
02.09.2025
Сумська обл., м. Путивль, вул. Першотравнева, буд. 86. Оренда – офісні приміщення 2-го поверху площею 54,60 кв.м. (В)
518.70 грн
9.50 грн / м2
Офіс
Сумська обл., м. Путивль, вул. Першотравнева, буд. 86. Оренда – офісні приміщення 2-го поверху площею 54,60 кв.м. (В)
Україна, Сумська обл., м. Путивль, вул. Першотравнева, буд. 86
14.02.2024
Сумська обл., м. Суми, вул. Іллінська, буд. 2. Оренда – офісні приміщення 8-го поверху площею 81,30 кв.м. (В)
4 774.75 грн
58.73 грн / м2
Офіс
Сумська обл., м. Суми, вул. Іллінська, буд. 2. Оренда – офісні приміщення 8-го поверху площею 81,30 кв.м. (В)
Україна, Сумська обл., м. Суми, вул. Іллінська, буд. 2
11.11.2022
Сумська обл., Роменський р-н, смт. Липова Долина, вул. Загорянка, буд. 2. Оренда – офісні приміщення 1-го поверху площею 84,10 кв.м. (В)
488.62 грн
5.81 грн / м2
Офіс
Сумська обл., Роменський р-н, смт. Липова Долина, вул. Загорянка, буд. 2. Оренда – офісні приміщення 1-го поверху площею 84,10 кв.м. (В)
Україна, Сумська обл., Роменський р-н, смт. Липова Долина, вул. Загорянка, буд. 2
05.06.2024
Сумська обл., Сумський р-н, смт. Краснопілля, вул. Сумська, 5. Оренда – офісне приміщення 1-го поверху площею 20,10 кв.м. (В)
530.64 грн
26.40 грн / м2
Офіс
Сумська обл., Сумський р-н, смт. Краснопілля, вул. Сумська, 5. Оренда – офісне приміщення 1-го поверху площею 20,10 кв.м. (В)
Україна, Сумська обл., Сумський р-н, смт. Краснопілля, вул. Сумська, 5
Переглянуті пропозиції
14.09.2022
Сумська обл., Сумський р-н., с. Річки, вул. Центральна, буд. 6. Оренда – приміщення 2-го поверху площею 20,90 кв. м
404.62 грн
19.36 грн / м2
Приміщення
Сумська обл., Сумський р-н., с. Річки, вул. Центральна, буд. 6. Оренда – приміщення 2-го поверху площею 20,90 кв. м
Україна, Сумська обл., Річки, вул. Центральна, буд. 6
19.01.2023
Одеська обл., м. Одеса, вул. Генерала Петрова, 30/2. Оренда – приміщення гаражу, майстерні загальною площею 79,20 кв.м та 2 парко-місця (В)
3 659.04 грн
46.20 грн / м2
Приміщення
Одеська обл., м. Одеса, вул. Генерала Петрова, 30/2. Оренда – приміщення гаражу, майстерні загальною площею 79,20 кв.м та 2 парко-місця (В)
Україна, Одеська обл., м. Одеса, вул. Генерала Петрова, 30/2
15.07.2025
Сумська обл., Сумський р-н, с. Супрунівка, вул. Центральна, буд. 15. Оренда – нежитлове приміщення площею 26,00 кв. м. (В)
546.78 грн
21.03 грн / м2
Приміщення
Сумська обл., Сумський р-н, с. Супрунівка, вул. Центральна, буд. 15. Оренда – нежитлове приміщення площею 26,00 кв. м. (В)
Україна, Сумська обл., Супрунівка, Супрунівка, вул. Центральна, буд. 15
28.12.2023
Івано-Франківська обл., м. Івано-Франківськ, вул. В.Симоненка,1;   Оренда – приміщення 3-го поверху, площею 800,2 м.кв (В)
50 444.61 грн
63.04 грн / м2
Приміщення
Івано-Франківська обл., м. Івано-Франківськ, вул. В.Симоненка,1; Оренда – приміщення 3-го поверху, площею 800,2 м.кв (В)
Україна, Івано-Франківська обл., Івано-Франківськ, вул. Василя Симоненка,1