Сумська обл., Охтирський р-н, с. Буймер, вул. Центральна, буд. 31 . Оренда – нежитлове приміщення площею 35,30 кв. м. (В)

847.20 грн
24.00 грн / м2
Україна, Сумська обл., Буймер, Буймер, вул. Центральна, буд. 31
Перейти до аукціону на сайті
  • Інформація
  • Опис
  • Документи
Дата оголошення пропозиції:
01 травня 2025
Площа:
35.30 м2
Тип об’єкта:
Приміщення
Тип аукціону:
Англійський аукціон
Статус аукціону:
Аукціон не відбувся
Тип угоди:
Оренда
Розмір мінімального кроку:
50.00 ₴
Розмір гарантійного внеску:
508.32 ₴
Початок прийому пропозицій:
01.05.2025 12:06:52
Завершення прийому пропозицій:
02.06.2025 20:00:00
Проведення аукціону:
03.06.2025 11:50:00
Лот:
CLE001-UA-20250501-19391
№ лоту (УТК):
UTK130524_02U
Лот виставляється на торги (раз):
1
Стислий опис майна:
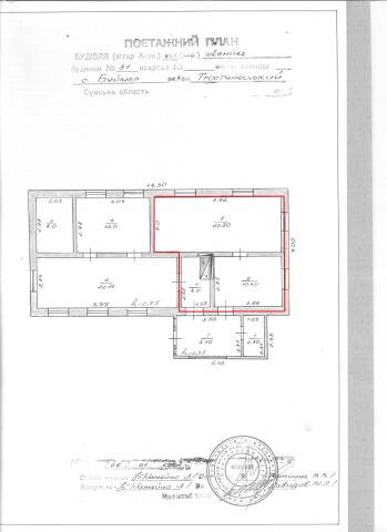
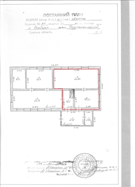
Пропонується до оренди нежитлове приміщення площею 35,30 кв. м. Знаходиться в центральній частині села. Поруч приватний сектор. Характеристики: • Кількість поверхів – 1 • Загальна площа – 35,30 кв. м. • Площа запропонована до оренди – 35,30 кв. м. • Електроенергія – наявне, • Водопостачання, опалення – відсутні; • Земельна ділянка – 0,211 га (договір оренди ЗД) • Стан приміщення - задовільний
Адреса місцезнаходження майна:
Україна, Сумська обл., Буймер, Буймер, вул. Центральна, буд. 31
Схожі пропозиції
01.02.2023
Сумська обл., м. Шостка, вул. Онупрієнка, буд. 15с. Оренда – нежитлове приміщення 1-го поверху площею 41,20 кв.м. (В)
820.29 грн
19.91 грн / м2
Приміщення
Сумська обл., м. Шостка, вул. Онупрієнка, буд. 15с. Оренда – нежитлове приміщення 1-го поверху площею 41,20 кв.м. (В)
Україна, Сумська обл., м. Шостка, вул. Онупрієнка, буд. 15
Сумська обл., м. Середино-Буда, вул. Європейська, 10. Оренда – приміщення 1-го та 2-го поверхів
2 121.08 грн
7.98 грн / м2
Приміщення
Сумська обл., м. Середино-Буда, вул. Європейська, 10. Оренда – приміщення 1-го та 2-го поверхів
Україна, Сумська обл., м. Середино-Буда, вул. Європейська, 10
14.02.2023
Сумська обл., м. Кролевець, вул. Миру, буд. 8. Оренда – приміщення 2-го поверху, площею 17,52 кв.м. (В)
508.08 грн
29.00 грн / м2
Приміщення
Сумська обл., м. Кролевець, вул. Миру, буд. 8. Оренда – приміщення 2-го поверху, площею 17,52 кв.м. (В)
Україна, Сумська обл., Кролевець, проспект Миру, 8
15.10.2025
Сумська обл., Роменський р-н, с. Байрак, вул. Миру, буд. 46. Оренда – нежитлове приміщення площею 49,50 кв. м. (В)
684.09 грн
13.82 грн / м2
Приміщення
Сумська обл., Роменський р-н, с. Байрак, вул. Миру, буд. 46. Оренда – нежитлове приміщення площею 49,50 кв. м. (В)
Україна, Сумська обл., Байрак, вул. Миру, буд. 46
Переглянуті пропозиції
19.05.2023
Сумська обл., Сумський р-н., с. Воронівка, вул. Миру, буд. 15. Оренда – нежитлове приміщення площею 22,4 кв.м. (В)
500.64 грн
22.35 грн / м2
Приміщення
Сумська обл., Сумський р-н., с. Воронівка, вул. Миру, буд. 15. Оренда – нежитлове приміщення площею 22,4 кв.м. (В)
Україна, Сумська обл., Воронівка, вул. Миру, буд. 15