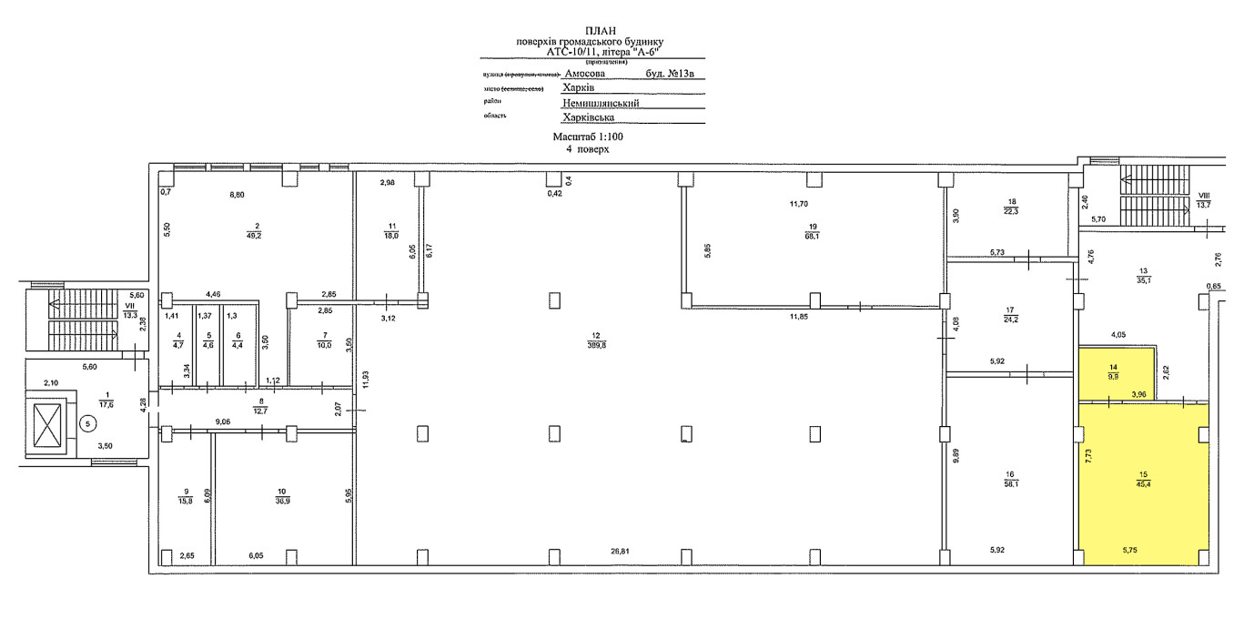
м. Харків, вул. Амосова,13 в. Оренда – приміщення 4-го поверху площею 55,3 кв.м (В)

2 534.40 грн
45.83 грн / м2
Україна, Харківська обл., м. Харків, вул. Амосова,13 в
Перейти до аукціону на сайті
  • Інформація
  • Опис
  • Документи
Дата оголошення пропозиції:
02 травня 2025
Площа:
55.30 м2
Тип об’єкта:
Приміщення
Тип аукціону:
Англійський аукціон
Статус аукціону:
Аукціон не відбувся
Тип угоди:
Оренда
Розмір мінімального кроку:
100.00 ₴
Розмір гарантійного внеску:
1 520.64 ₴
Початок прийому пропозицій:
02.05.2025 11:34:47
Завершення прийому пропозицій:
03.06.2025 20:00:00
Проведення аукціону:
04.06.2025 11:35:00
Лот:
CLE001-UA-20250502-24855
№ лоту (УТК):
UTK210225_09P
Лот виставляється на торги (раз):
3
Стислий опис майна:
Пропонується до оренди приміщення 4-го поверху площею 55,3 кв.м. Будівля в спальному районі міста Харкова. 10 хв до зупинки транспорту. Характеристики: Кількість поверхів – 5; Загальна площа – 4838,00 кв.м_ Площа запропонована до оренди -55,3 кв.м Дозволена потужність – 3 кВт Теплопостачання-централізоване Земельна ділянка – 0,4825 га
Адреса місцезнаходження майна:
Україна, Харківська обл., м. Харків, вул. Амосова,13 в
Схожі пропозиції
31.08.2023
м.Харків, вул. Амосова,13 в. Оренда - приміщення цокольного поверху площею 107,1 кв.м (П)
6 586.65 грн
61.50 грн / м2
Приміщення
м.Харків, вул. Амосова,13 в. Оренда - приміщення цокольного поверху площею 107,1 кв.м (П)
Україна, Харківська обл., м.Харків, вул. Амосова,13 в
Харківська обл., м. Харків, вул. Нетіченська набережна, 8. Оренда – приміщення першого поверху площею 136,0 кв.м. (В)
12 240.00 грн
90.00 грн / м2
Приміщення
Харківська обл., м. Харків, вул. Нетіченська набережна, 8. Оренда – приміщення першого поверху площею 136,0 кв.м. (В)
Україна, Харківська обл., м. Харків, вул. Нетіченська набережна, 8
21.08.2024
м. Харків, вул. Конторська,14.Оренда – приміщення 2-го поверху площею 26,3 кв.м (В)
1 822.59 грн
69.30 грн / м2
Приміщення
м. Харків, вул. Конторська,14.Оренда – приміщення 2-го поверху площею 26,3 кв.м (В)
Україна, Харківська обл., м. Харків, вул. Конторська,14
03.06.2025
м. Харків, вул. Конторська,14.Оренда – приміщення 2-го поверху площею 26,3 кв.м (В)
789.00 грн
30.00 грн / м2
Приміщення
м. Харків, вул. Конторська,14.Оренда – приміщення 2-го поверху площею 26,3 кв.м (В)
Україна, Харківська обл., м. Харків, вул. Конторська,14