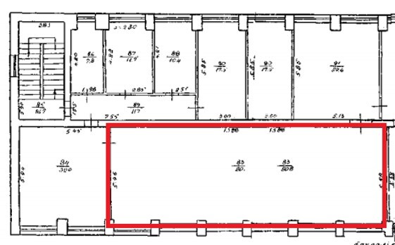
Рівненська обл., Вараський р-н. смт. Зарічне, вул. Центральна, 6а. Оренда – приміщення 3 поверху площею 80,80 м. кв. ( В )

3 781.44 грн
46.80 грн / м2
Україна, Рівненська обл., Зарічне, Зарічне, вул. Центральна, 6а
Перейти до аукціону на сайті
  • Інформація
  • Опис
  • Документи
Дата оголошення пропозиції:
03 травня 2025
Площа:
80.80 м2
Тип об’єкта:
Приміщення
Тип аукціону:
Англійський аукціон
Статус аукціону:
Аукціон не відбувся
Тип угоди:
Оренда
Розмір мінімального кроку:
100.00 ₴
Розмір гарантійного внеску:
2 268.86 ₴
Початок прийому пропозицій:
03.05.2025 14:23:13
Завершення прийому пропозицій:
03.06.2025 20:00:00
Проведення аукціону:
04.06.2025 12:35:00
Лот:
CLE001-UA-20250503-51556
№ лоту (УТК):
UTK020525_03U
Лот виставляється на торги (раз):
1
Стислий опис майна:
Пропонується до оренди приміщення 3-го поверху, площею 80,8 м. кв. Будівля знаходиться в центральній частині міста, розвинена інфраструктура, поряд відділення Укрпошти, автостанція, магазини та адміністративні приміщення. Територія огороджена та частково впорядкована. Характеристики: • Кількість поверхів – 3; • Загальна площа – 1127,4 м.кв.; • Площа, запропонована до оренди – 80,8 м.кв.; • Опалення – централізоване; • Земельна ділянка - площа 0,2019 га.
Адреса місцезнаходження майна:
Україна, Рівненська обл., Зарічне, Зарічне, вул. Центральна, 6а
Схожі пропозиції
09.09.2022
Рівненська обл., м. Вараш, м-н Незалежності, 4. Оренда – приміщення 2 поверху, площею 290,5 м.кв. ( В
8 104.95 грн
27.90 грн / м2
Приміщення
Рівненська обл., м. Вараш, м-н Незалежності, 4. Оренда – приміщення 2 поверху, площею 290,5 м.кв. ( В
Україна, Рівненська обл., Вараш, майдан Незалежності, 4
16.11.2022
Рівненська обл., Рівненський р-н, с. Річиця, вул. Центральна, 5. Оренда – приміщення 1-го поверху площею 19,30 м.кв. (В)
500.06 грн
25.91 грн / м2
Приміщення
Рівненська обл., Рівненський р-н, с. Річиця, вул. Центральна, 5. Оренда – приміщення 1-го поверху площею 19,30 м.кв. (В)
Україна, Рівненська обл., Рівненський р-н, с. Річиця, вул. Центральна, 5
22.09.2022
Рівненська обл., м. Рівне вул. Орлова, 37. Оренда – приміщення 4го поверху площею 326,3 м. кв. (В)
18 941.72 грн
58.05 грн / м2
Приміщення
Рівненська обл., м. Рівне вул. Орлова, 37. Оренда – приміщення 4го поверху площею 326,3 м. кв. (В)
Україна, Рівненська обл., м. Рівне, вул. Орлова, 37
05.09.2025
Рівненська обл., Вараський р-н, с. Більська Воля, вул. Шкільна, 14. Оренда – нежитлові приміщення площею 62,8 кв.м. (В)
753.60 грн
12.00 грн / м2
Приміщення
Рівненська обл., Вараський р-н, с. Більська Воля, вул. Шкільна, 14. Оренда – нежитлові приміщення площею 62,8 кв.м. (В)
Україна, Рівненська обл., Більська Воля, вулиця Шкільна, 14