Дніпропетровська обл., м. Кам’янське, просп. Свободи, 44. Оренда – приміщення 2-го поверху загальною площею 95,30 кв.м

1 143.00 грн
11.99 грн / м2
Україна, Дніпропетровська обл., м. Кам’янське, просп. Свободи, 44
Перейти до аукціону на сайті
  • Інформація
  • Опис
  • Документи
Дата оголошення пропозиції:
07 травня 2025
Площа:
95.30 м2
Тип об’єкта:
Приміщення
Тип аукціону:
Англійський аукціон
Статус аукціону:
Аукціон не відбувся
Тип угоди:
Оренда
Розмір мінімального кроку:
200.00 ₴
Розмір гарантійного внеску:
686.16 ₴
Початок прийому пропозицій:
07.05.2025 14:42:24
Завершення прийому пропозицій:
05.06.2025 20:00:00
Проведення аукціону:
06.06.2025 11:35:00
Лот:
CLE001-UA-20250507-81559
№ лоту (УТК):
UTK230224_18P
Лот виставляється на торги (раз):
10
Стислий опис майна:
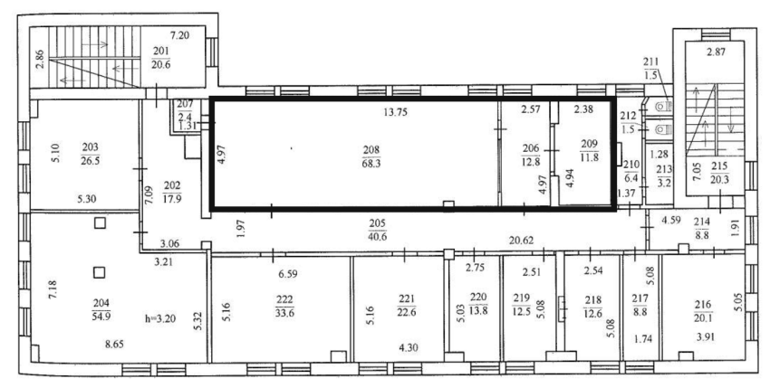
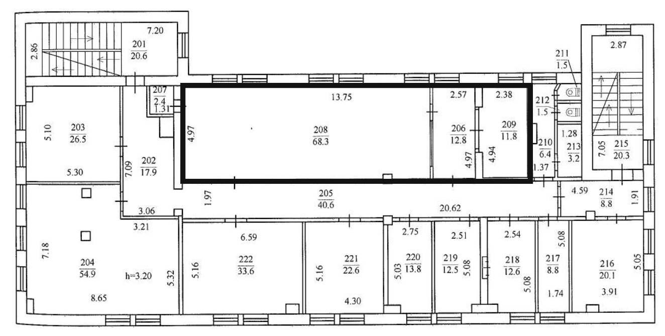
Пропонується до оренди приміщення 2-го поверху площею 95,30 кв.м (прим.№№206-209). Будівля в центрі міста. Поруч знаходяться об’єкти соціальної інфраструктури: відділення пошти та банку, клініка, магазини, ринок тощо. Стан приміщення відмінний, підходить для офісу, ідеальне місце під розвиток будь-якого бізнесу. Зручна транспортна розв’язка та інфраструктура. Характеристики: Кількість поверхів – 5 Загальна площа – 2506,00 кв.м Площа запропонована до оренди – 95,30 кв.м Електропостачання, водопостачання, теплопостачання Земельна ділянка – 0,2324 га (договір оренди) Ресурсні податки – 2,68 грн за 1 кв.м
Адреса місцезнаходження майна:
Україна, Дніпропетровська обл., м. Кам’янське, просп. Свободи, 44
Схожі пропозиції
07.02.2025
Дніпропетровська обл., м. Дніпро, вул. Пушкіна, 75А. Оренда – приміщення технічного поверху площею 66,80 кв.м (В)
6 710.06 грн
100.45 грн / м2
Приміщення
Дніпропетровська обл., м. Дніпро, вул. Пушкіна, 75А. Оренда – приміщення технічного поверху площею 66,80 кв.м (В)
Україна, Дніпропетровська обл., м. Дніпро, вул. Пушкіна, 75А
10.09.2024
Дніпропетровська обл., м. Жовті Води, вул. Свободи, 39;  Оренда – приміщення 3-го поверху площею 32,5 кв.м. (В)
487.50 грн
15.00 грн / м2
Приміщення
Дніпропетровська обл., м. Жовті Води, вул. Свободи, 39; Оренда – приміщення 3-го поверху площею 32,5 кв.м. (В)
Україна, Дніпропетровська обл., Жовті Води, бульвар Свободи, 39
07.02.2025
Дніпропетровська обл., м.Кривий Ріг, вул. Головка Адмірала, 71;   Оренда–приміщення 3-го поверху, площею 777,3 кв.м. (В)
6 855.79 грн
8.82 грн / м2
Приміщення
Дніпропетровська обл., м.Кривий Ріг, вул. Головка Адмірала, 71; Оренда–приміщення 3-го поверху, площею 777,3 кв.м. (В)
Україна, Дніпропетровська обл., Кривий Ріг, вулиця Адмірала Головка, 71
22.10.2025
Дніпропетровська обл., м. Жовті Води, бул. Свободи, 39. Оренда – приміщення 3-го поверху 130,3 кв.м. (В)
3 489.43 грн
26.78 грн / м2
Приміщення
Дніпропетровська обл., м. Жовті Води, бул. Свободи, 39. Оренда – приміщення 3-го поверху 130,3 кв.м. (В)
Україна, Дніпропетровська обл., Жовті Води, бульвар Свободи, 39
Переглянуті пропозиції
24.11.2022
Сумська обл., Сумський р-н., м. Ворожба, пров. Слобідський, буд. 15. Оренда – нежитлове приміщення площею 64,60 кв.м. (В)
1 304.27 грн
20.19 грн / м2
Приміщення
Сумська обл., Сумський р-н., м. Ворожба, пров. Слобідський, буд. 15. Оренда – нежитлове приміщення площею 64,60 кв.м. (В)
Україна, Сумська обл., Сумський р-н., м. Ворожба, пров. Слобідський, буд. 15
Львівська обл., м. Золочів, вул. Л.Українки,16. Оренда – одноповерхова будівля площею 248,5 кв.м. (В)
3 357.24 грн
13.51 грн / м2
Будівля
Львівська обл., м. Золочів, вул. Л.Українки,16. Оренда – одноповерхова будівля площею 248,5 кв.м. (В)
Україна, Львівська обл., м. Золочів, вул. Л.Українки,16
25.06.2024
Дніпропетровська обл., смт. Софіївка, бул. Шевченка, 17А;   Оренда – приміщення 1-го поверху площею 11,6 кв.м. (В)
290.00 грн
25.00 грн / м2
Приміщення
Дніпропетровська обл., смт. Софіївка, бул. Шевченка, 17А; Оренда – приміщення 1-го поверху площею 11,6 кв.м. (В)
Україна, Дніпропетровська обл., смт. Софіївка, бул. Шевченка, 17А
04.03.2025
м.Харків, вул. Конторська,14. Оренда – приміщення 1-го поверху, площею 96,9 кв.м (В)
2 907.00 грн
30.00 грн / м2
Приміщення
м.Харків, вул. Конторська,14. Оренда – приміщення 1-го поверху, площею 96,9 кв.м (В)
Україна, Харківська обл., м. Харків, вул. Конторська,14