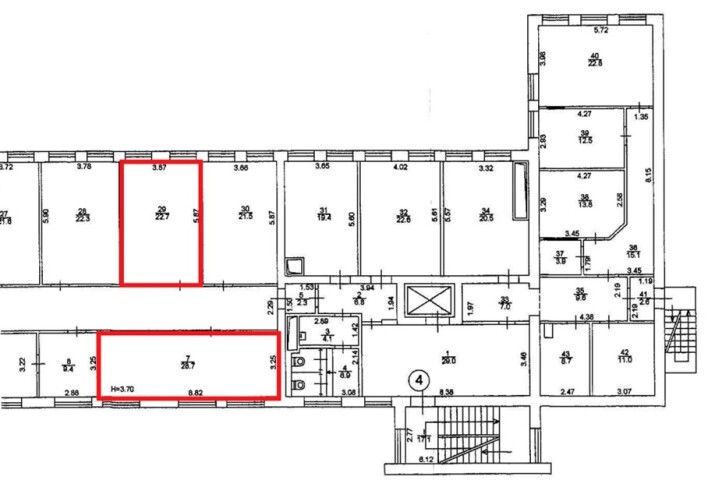
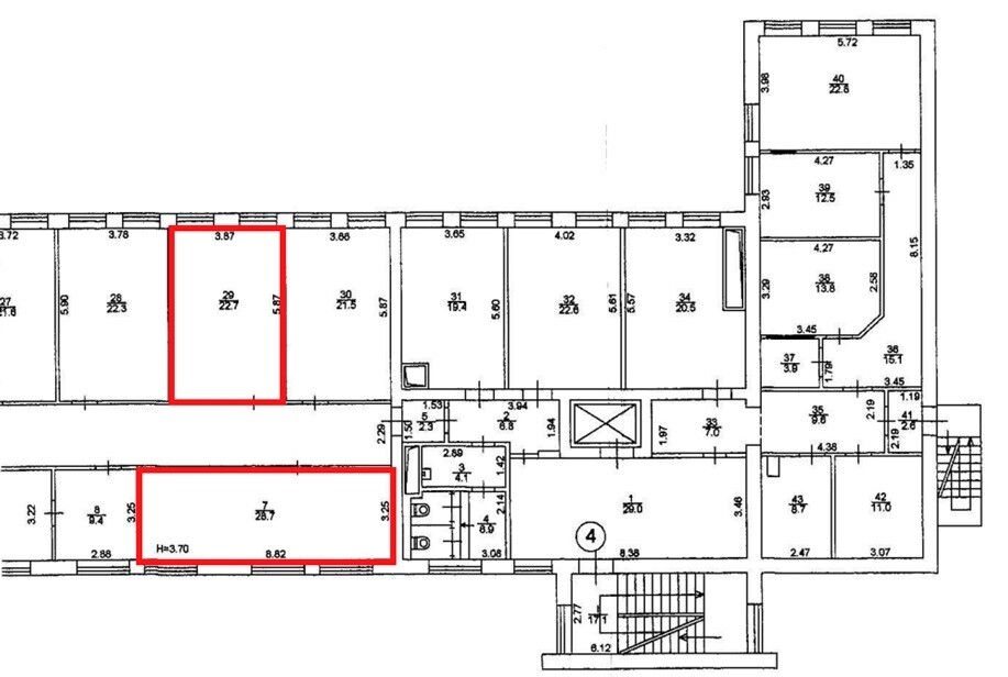
Дніпропетровська обл., м. Дніпро, вул. Князя Ярослава Мудрого, 3. Оренда – приміщення 4-го поверху площею 51,40 кв.м (В)

6 075.48 грн
118.20 грн / м2
Україна, Дніпропетровська обл., м. Дніпро, вул. Князя Ярослава Мудрого, 3
Перейти до аукціону на сайті
  • Інформація
  • Опис
  • Документи
Дата оголошення пропозиції:
07 травня 2025
Площа:
51.40 м2
Тип об’єкта:
Приміщення
Тип аукціону:
Англійський аукціон
Статус аукціону:
Аукціон не відбувся
Тип угоди:
Оренда
Розмір мінімального кроку:
500.00 ₴
Розмір гарантійного внеску:
3 645.29 ₴
Початок прийому пропозицій:
07.05.2025 14:48:48
Завершення прийому пропозицій:
05.06.2025 20:00:00
Проведення аукціону:
06.06.2025 12:40:00
Лот:
CLE001-UA-20250507-56704
№ лоту (УТК):
UTK270924_04P
Лот виставляється на торги (раз):
6
Стислий опис майна:
Пропонуються до оренди приміщення 4-го поверху площею 51,40 кв.м. Розташування - будівля знаходиться в центральному районі міста. Поруч знаходяться об’єкти соціальної інфраструктури, високий автомобільний і пішохідний потоки. Стан приміщення задовільний, підходить для офісу, для дитячої студії, школи розвитку. Ідеальне місце під розвиток будь-якого бізнесу. Характеристики: Кількість поверхів – 6 Загальна площа – 3793,00 кв.м Площа запропонована до оренди – 51,40 кв.м Електропостачання, водопостачання, теплопостачання Земельна ділянка – 0, 2030 га (договір оренди) Ресурсні податки – 6,21 грн за 1 кв.м
Адреса місцезнаходження майна:
Україна, Дніпропетровська обл., м. Дніпро, вул. Князя Ярослава Мудрого, 3
Схожі пропозиції
06.10.2023
Дніпропетровська обл., м. Синельникове, вул. Богми, 4. Оренда – приміщення гаражу площею 30,7 кв.м. (В)
368.40 грн
12.00 грн / м2
Приміщення
Дніпропетровська обл., м. Синельникове, вул. Богми, 4. Оренда – приміщення гаражу площею 30,7 кв.м. (В)
Україна, Дніпропетровська обл., Синельникове, вулиця Богми, 4
21.04.2023
Дніпропетровська обл., м. Дніпро, пр. Богдана Хмельницького, 28а. Оренда – приміщення підвалу, 2-го, 3-го та 4-го поверхів, загальною площею 1910,90 кв.м. (В)
88 283.58 грн
46.20 грн / м2
Приміщення
Дніпропетровська обл., м. Дніпро, пр. Богдана Хмельницького, 28а. Оренда – приміщення підвалу, 2-го, 3-го та 4-го поверхів, загальною площею 1910,90 кв.м. (В)
Україна, Дніпропетровська обл., м. Дніпро, пр. Богдана Хмельницького, 28а
10.09.2024
Дніпропетровська обл., м. Дніпро, пров. Вільний, 12.Оренда – приміщення 1-го поверху площею 61,50 кв.м (В)
5 570.67 грн
90.58 грн / м2
Приміщення
Дніпропетровська обл., м. Дніпро, пров. Вільний, 12.Оренда – приміщення 1-го поверху площею 61,50 кв.м (В)
Україна, Дніпропетровська обл., м. Дніпро, пров. Вільний, 12
25.11.2022
Дніпропетровська обл., м. Дніпро, вул. Князя Ярослава Мудрого, 3. Оренда – приміщення 5-го поверху площею 12,10 кв.м. (В)
808.28 грн
66.80 грн / м2
Приміщення
Дніпропетровська обл., м. Дніпро, вул. Князя Ярослава Мудрого, 3. Оренда – приміщення 5-го поверху площею 12,10 кв.м. (В)
Україна, Дніпропетровська обл., м. Дніпро, вул. Князя Ярослава Мудрого, 3
Переглянуті пропозиції
26.11.2024
Дніпропетровська обл., м. Дніпро, вул. Князя Ярослава Мудрого, 3. Оренда – приміщення 5-го поверху площею 23,10 кв.м. (В)
2 763.91 грн
119.65 грн / м2
Приміщення
Дніпропетровська обл., м. Дніпро, вул. Князя Ярослава Мудрого, 3. Оренда – приміщення 5-го поверху площею 23,10 кв.м. (В)
Україна, Дніпропетровська обл., м. Дніпро, вул. Князя Ярослава Мудрого, 3
06.12.2023
ДОВОСТРОКОВА ОРЕНДА! Львівська обл., м. Львів, проспект Червоної Калини,5. Оренда – комплекс будівель площею 2697,60 кв.м. (П)
391 691.52 грн
145.20 грн / м2
Будівля
ДОВОСТРОКОВА ОРЕНДА! Львівська обл., м. Львів, проспект Червоної Калини,5. Оренда – комплекс будівель площею 2697,60 кв.м. (П)
Україна, Львівська обл., м. Львів, проспект Червоної Калини,5
19.08.2022
Закарпатська обл., м. Ужгород, пл. Кирила та Мефодія, 4. Оренда – приміщення 1-го поверху площею 70,0 кв. м (В)
15 331.40 грн
219.02 грн / м2
Приміщення
Закарпатська обл., м. Ужгород, пл. Кирила та Мефодія, 4. Оренда – приміщення 1-го поверху площею 70,0 кв. м (В)
Україна, Закарпатська обл., Ужгород, площа Кирила і Мефодія, 4
30.04.2024
м. Харків, вул. Конторська,14.Оренда – приміщення 2-го поверху площею 20,5 кв.м (В)
1 420.65 грн
69.30 грн / м2
Приміщення
м. Харків, вул. Конторська,14.Оренда – приміщення 2-го поверху площею 20,5 кв.м (В)
Україна, Харківська обл., м. Харків, вул. Конторська,14