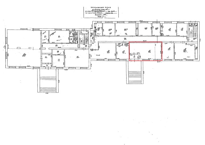
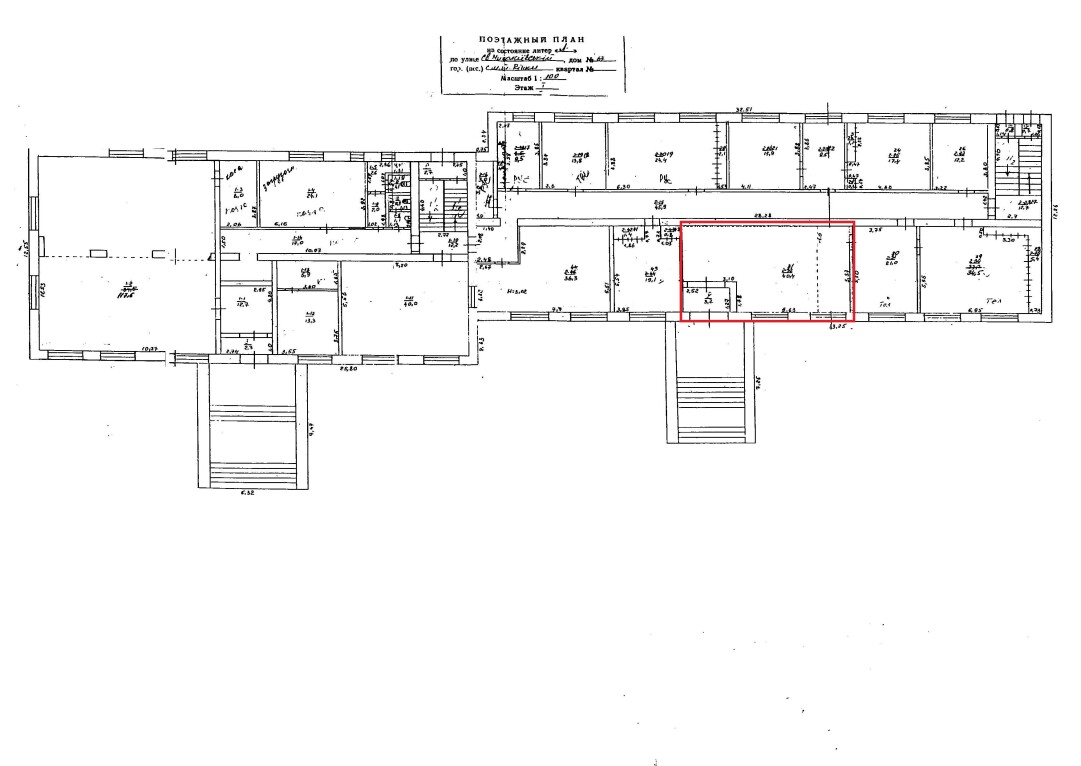
Чернігівська обл., с-ще Ріпки, вул. Святомиколаївська, 67. Оренда – приміщення 1-го поверху, площею 49,10 кв.м (В)

2 003.28 грн
40.80 грн / м2
Україна, Чернігівська обл., Ріпки, 15000, с-ще. Ріпки, вул. Святомиколаївська, 67
Перейти до аукціону на сайті
  • Інформація
  • Опис
  • Документи
Дата оголошення пропозиції:
23 травня 2025
Площа:
49.10 м2
Тип об’єкта:
Приміщення
Тип аукціону:
Англійський аукціон
Статус аукціону:
Аукціон не відбувся
Тип угоди:
Оренда
Розмір мінімального кроку:
100.00 ₴
Розмір гарантійного внеску:
1 201.97 ₴
Початок прийому пропозицій:
23.05.2025 08:30:39
Завершення прийому пропозицій:
23.06.2025 20:00:00
Проведення аукціону:
24.06.2025 12:00:00
Лот:
CLE001-UA-20250523-31789
№ лоту (УТК):
UTK180425_11U
Лот виставляється на торги (раз):
2
Стислий опис майна:
Пропонується до оренди приміщення 1-го поверху площею 49,10 кв.м. Будівля знаходиться в наближеній до центральної частини селища. Приміщення має окремий фасадний вхід , може бути застосовано під торгові або офісні площі. Характеристики: • кількість поверхів – 2 • Площа оренди - 49,1 м² • Дозволена електрична потужність на приміщення до 7 кВт • земельна ділянка – 0,5678 га (договір оренди)
Адреса місцезнаходження майна:
Україна, Чернігівська обл., Ріпки, 15000, с-ще. Ріпки, вул. Святомиколаївська, 67
Схожі пропозиції
01.05.2024
м. Чернігів, вул. Ринкова, 20. Оренда – приміщення 4-го поверху площею 71,40 кв. м (В)
6 102.56 грн
85.47 грн / м2
Приміщення
м. Чернігів, вул. Ринкова, 20. Оренда – приміщення 4-го поверху площею 71,40 кв. м (В)
Україна, Чернігівська обл., м. Чернігів, вул. Ринкова, 20
27.10.2023
Чернігівська обл., м. Городня, вул. Чернігівська (Чорновуса), 7. Оренда – гаражно-складське приміщення загальною площею 223,1 кв.м. (В)
1 258.28 грн
5.64 грн / м2
Приміщення
Чернігівська обл., м. Городня, вул. Чернігівська (Чорновуса), 7. Оренда – гаражно-складське приміщення загальною площею 223,1 кв.м. (В)
Україна, Чернігівська обл., Городня, вулиця Чернігівська, 7
Чернігівська обл., м. Ніжин, вул. Московська, 5-А. Оренда – приміщення 3 поверху площею 49,00 кв.м. (В)
1 790.46 грн
36.54 грн / м2
Приміщення
Чернігівська обл., м. Ніжин, вул. Московська, 5-А. Оренда – приміщення 3 поверху площею 49,00 кв.м. (В)
Україна, Чернігівська обл., м. Ніжин, вул. Московська, 5-А
22.11.2022
Чернігівська обл., м. Чернігів, проспект Миру, 28. Оренда – приміщення 2 поверху площею 287,55 кв.м. (В)
42 701.18 грн
148.50 грн / м2
Приміщення
Чернігівська обл., м. Чернігів, проспект Миру, 28. Оренда – приміщення 2 поверху площею 287,55 кв.м. (В)
Україна, Чернігівська обл., Чернігів, проспект Миру, 28
Переглянуті пропозиції
15.07.2025
Полтавська обл., м. Решетилівка, вулиця Старокиївська, 2. Оренда – приміщення 3-го поверху загальною площею 420,10 кв.м. (В)
5 041.20 грн
12.00 грн / м2
Приміщення
Полтавська обл., м. Решетилівка, вулиця Старокиївська, 2. Оренда – приміщення 3-го поверху загальною площею 420,10 кв.м. (В)
Україна, Полтавська обл., Решетилівка, Решетилівка, вулиця Старокиївська, 2
05.11.2024
Харківська обл., м. Харків, вул. Рибалка, 3-А. Оренда – приміщення одноповерхової будівлі площею 10,00 кв.м. (В)
502.60 грн
50.26 грн / м2
Приміщення
Харківська обл., м. Харків, вул. Рибалка, 3-А. Оренда – приміщення одноповерхової будівлі площею 10,00 кв.м. (В)
Україна, Харківська обл., м. Харків, вул. Рибалка, 3-А
22.04.2025
м. Харків, вул. Конторська,14.Оренда – приміщення 4-го поверху площею 25,8 кв.м (В)
774.00 грн
30.00 грн / м2
Приміщення
м. Харків, вул. Конторська,14.Оренда – приміщення 4-го поверху площею 25,8 кв.м (В)
Україна, Харківська обл., м. Харків, вул. Конторська,14