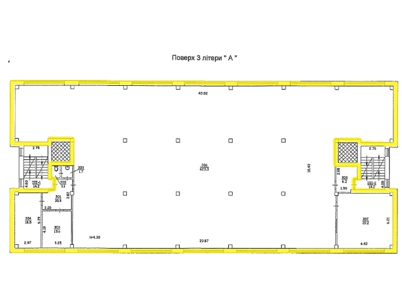
ДОЛВГОСТРОКОВА ОРЕНДА! Дніпропетровська обл., м. Дніпро, пр. Богдана Хмельницького, 28а. Оренда – приміщення 3-го поверху загальною площею 713,90 кв.м(В)

34 802.63 грн
48.75 грн / м2
Україна, Дніпропетровська обл., пр. Богдана Хмельницького, 28а, м. Дніпро
Перейти до аукціону на сайті
  • Інформація
  • Опис
  • Документи
Дата оголошення пропозиції:
09 травня 2025
Площа:
713.90 м2
Тип об’єкта:
Приміщення
Тип аукціону:
Англійський аукціон
Статус аукціону:
Аукціон не відбувся
Тип угоди:
Оренда
Розмір мінімального кроку:
1 000.00 ₴
Розмір гарантійного внеску:
20 881.58 ₴
Початок прийому пропозицій:
09.05.2025 13:19:15
Завершення прийому пропозицій:
09.06.2025 20:00:00
Проведення аукціону:
10.06.2025 12:35:00
Лот:
CLE001-UA-20250509-10832
№ лоту (УТК):
UTK210125_03P
Лот виставляється на торги (раз):
4
Стислий опис майна:
Пропонується до оренди приміщення 3-го поверху загальною площею 713,90 кв.м. Будівля в діловому центрі міста. Поруч розташовані відділення пошти, торговий центр, супермаркети, магазини тощо. Вхід в приміщення спільний. Зручна транспортна розв’язка та інфраструктура. Характеристики: Кількість поверхів – 4 Загальна площа – 3747,80 кв.м. Загальна площа будівель на ЗД – 3807,40 кв.м. Площа запропонована до оренди – 713,90 кв.м. Електропостачання, водопостачання, теплопостачання (від’єднано) Земельна ділянка – 0,3088 га (договір оренди) Ресурсні податки – 7,57 грн за 1 кв.м.
Адреса місцезнаходження майна:
Україна, Дніпропетровська обл., пр. Богдана Хмельницького, 28а, м. Дніпро
Схожі пропозиції
06.06.2025
Дніпропетровська обл., Верхньодніпровський р-н, с. Малоолександрівка, вул. Центральна, 45. Оренда – приміщення площею 37,30 кв.м. (В)
559.50 грн
15.00 грн / м2
Приміщення
Дніпропетровська обл., Верхньодніпровський р-н, с. Малоолександрівка, вул. Центральна, 45. Оренда – приміщення площею 37,30 кв.м. (В)
Україна, Дніпропетровська обл., Верхньодніпровський р-н, с. Малоолександрівка, вул. Центральна, 45
07.02.2025
Дніпропетровська обл., м. Нікополь, вулиця Патріотів України, буд.113-А;  Оренда – перший поверх, загальною площею 1104,3 кв.м.(В)
8 591.45 грн
7.78 грн / м2
Приміщення
Дніпропетровська обл., м. Нікополь, вулиця Патріотів України, буд.113-А; Оренда – перший поверх, загальною площею 1104,3 кв.м.(В)
Україна, Дніпропетровська обл., Нікополь, вул. Патріотів України, буд. 113-А
26.11.2024
Дніпропетровська обл., м. Кривий Ріг, вул. Водоп`янова, 1а;  Оренда – приміщення 3-го поверху, площею 812,3 кв.м. (В)
7 310.70 грн
9.00 грн / м2
Приміщення
Дніпропетровська обл., м. Кривий Ріг, вул. Водоп`янова, 1а; Оренда – приміщення 3-го поверху, площею 812,3 кв.м. (В)
Україна, Дніпропетровська обл., Кривий Ріг, вулиця Водоп'янова, 1а
28.10.2022
Дніпропетровська обл., м. Кривий Ріг, вул. Дніпропетровське шосе, 48. Оренда – приміщення 4-го поверху, площею 640,0 кв.м. (В)
15 923.20 грн
24.88 грн / м2
Приміщення
Дніпропетровська обл., м. Кривий Ріг, вул. Дніпропетровське шосе, 48. Оренда – приміщення 4-го поверху, площею 640,0 кв.м. (В)
Україна, Дніпропетровська обл., Кривий Ріг, вулиця Дніпровське шосе, 48
Переглянуті пропозиції
14.02.2024
Сумська обл., м. Путивль, вул. Першотравнева, буд. 86. Оренда – офісні приміщення 1-го поверху площею 14,80 кв.м. (В)
500.98 грн
33.85 грн / м2
Офіс
Сумська обл., м. Путивль, вул. Першотравнева, буд. 86. Оренда – офісні приміщення 1-го поверху площею 14,80 кв.м. (В)
Україна, Сумська обл., м. Путивль, вул. Першотравнева, буд. 86
28.09.2023
Львівська область, с. Батьків, вул. Центральна, 28. Оренда – приміщення 1-го поверху площею 21,20 кв.м. (В)
318.00 грн
3.71 грн / м2
Приміщення
Львівська область, с. Батьків, вул. Центральна, 28. Оренда – приміщення 1-го поверху площею 21,20 кв.м. (В)
Україна, Львівська обл., с. Батьків, вул. Центральна, 28
09.09.2025
м. Київ, вул. Дегтярівська, 28А, літ. «А» (Шевченківський р-н). Оренда – приміщення на 1-му поверсі, площею – 35,20 кв.м (В)
4 536.58 грн
128.88 грн / м2
Приміщення
м. Київ, вул. Дегтярівська, 28А, літ. «А» (Шевченківський р-н). Оренда – приміщення на 1-му поверсі, площею – 35,20 кв.м (В)
Україна, м.Київ, Київ, 04119, м. Київ, вул. Дегтярівська, 28А, літ. «А» (Шевченківський р-н