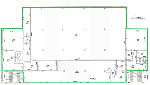
ДОВГОСТРОКОВА ОРЕНДА! Львівська обл., м. Львів, вул. Берестяна, 2. Оренда – приміщення 5-го поверху площею 780,60 кв.м. (В)

46 836.00 грн
60.00 грн / м2
Україна, Львівська обл., м. Львів, вул. Берестяна, 2
Перейти до аукціону на сайті
  • Інформація
  • Опис
  • Документи
Дата оголошення пропозиції:
12 червня 2025
Площа:
780.60 м2
Тип об’єкта:
Приміщення
Тип аукціону:
Англійський аукціон
Статус аукціону:
Аукціон не відбувся
Тип угоди:
Оренда
Розмір мінімального кроку:
1 000.00 ₴
Розмір гарантійного внеску:
28 101.60 ₴
Початок прийому пропозицій:
12.06.2025 13:21:26
Завершення прийому пропозицій:
16.07.2025 20:00:00
Проведення аукціону:
17.07.2025 12:05:00
Лот:
CLE001-UA-20250612-83949
№ лоту (УТК):
UTK230822_12P
Лот виставляється на торги (раз):
10
Стислий опис майна:
Пропонуються до оренди приміщення 5-го поверху площею 780,60 кв.м. Будівля знаходиться у прицентральній частині міста, в районі з розвиненою інфраструктурою і відмінною транспортною розв’язкою. Стан приміщень задовільний. Характеристики: кількість поверхів – 6; опалення централізоване, водопостачання, електропостачання, каналізаційна мережа; Вільне до споживання електропостачання – 10 кВт; земельна ділянка – 0,3548 га (договір оренди)
Адреса місцезнаходження майна:
Україна, Львівська обл., м. Львів, вул. Берестяна, 2
Схожі пропозиції
26.08.2022
Львівська обл., смт. Добротвір, вул. Шевченка, 3. Оренда – приміщення 1-го поверху площею 68,00 кв. м. (В)
937.04 грн
13.78 грн / м2
Приміщення
Львівська обл., смт. Добротвір, вул. Шевченка, 3. Оренда – приміщення 1-го поверху площею 68,00 кв. м. (В)
Україна, Львівська обл., смт. Добротвір, вул. Шевченка, 3
07.12.2023
Львівська обл., м. Новий Розділ, пр. Шевченка, 30. Оренда – приміщення 1-го поверху, площею 8,90 кв.м. (В)
267.00 грн
30.00 грн / м2
Приміщення
Львівська обл., м. Новий Розділ, пр. Шевченка, 30. Оренда – приміщення 1-го поверху, площею 8,90 кв.м. (В)
Україна, Львівська обл., м. Новий Розділ, пр. Шевченка, 30
25.08.2023
Львівська обл., с. Нове місто, вул. Центральна,1. Оренда – приміщення площею 19,40 кв. м (В)
254.14 грн
13.10 грн / м2
Приміщення
Львівська обл., с. Нове місто, вул. Центральна,1. Оренда – приміщення площею 19,40 кв. м (В)
Україна, Львівська обл., с. Нове місто, с. Нове місто, вул. Центральна,1
17.07.2025
Львівська обл., м. Дрогобич, вул. Д.Галицького, 21. Оренда – приміщення 2-го поверху площею 85,70 кв.м. (В)
3 059.49 грн
35.70 грн / м2
Приміщення
Львівська обл., м. Дрогобич, вул. Д.Галицького, 21. Оренда – приміщення 2-го поверху площею 85,70 кв.м. (В)
Україна, Львівська обл., м. Дрогобич, вул. Д.Галицького, 21
Переглянуті пропозиції
05.04.2024
Одеська обл., м. Подільськ, вул. Соборна, буд.№72. Оренда – приміщення 3-го поверху площею 14,30 кв.м. (В)
257.40 грн
18.00 грн / м2
Приміщення
Одеська обл., м. Подільськ, вул. Соборна, буд.№72. Оренда – приміщення 3-го поверху площею 14,30 кв.м. (В)
Україна, Одеська обл., м. Подільськ, вул. Соборна, буд.№72
26.11.2025
Чернігівська обл., м. Чернігів, проспект Миру, 28. Оренда – приміщення 3- го поверху площею 56,6 кв.м (В)
1 698.00 грн
30.00 грн / м2
Приміщення
Чернігівська обл., м. Чернігів, проспект Миру, 28. Оренда – приміщення 3- го поверху площею 56,6 кв.м (В)
Україна, Чернігівська обл., м. Чернігів, проспект Миру, 28