Довгострокова Дніпропетровська обл., м. Жовті Води, бул. Свободи, 39

30 154.32 грн
44.64 грн / м2
Україна, Дніпропетровська обл., Жовті Води, бульвар Свободи, 39
Перейти до аукціону на сайті
  • Інформація
  • Опис
  • Документи
Дата оголошення пропозиції:
13 червня 2025
Площа:
675.50 м2
Тип об’єкта:
Приміщення
Тип аукціону:
Англійський аукціон
Статус аукціону:
Аукціон не відбувся
Тип угоди:
Оренда
Розмір мінімального кроку:
1 600.00 ₴
Розмір гарантійного внеску:
18 092.59 ₴
Початок прийому пропозицій:
13.06.2025 14:59:13
Завершення прийому пропозицій:
15.07.2025 20:00:00
Проведення аукціону:
16.07.2025 11:50:00
Лот:
CLE001-UA-20250613-41462
№ лоту (УТК):
UTK_130625_08U
Лот виставляється на торги (раз):
1
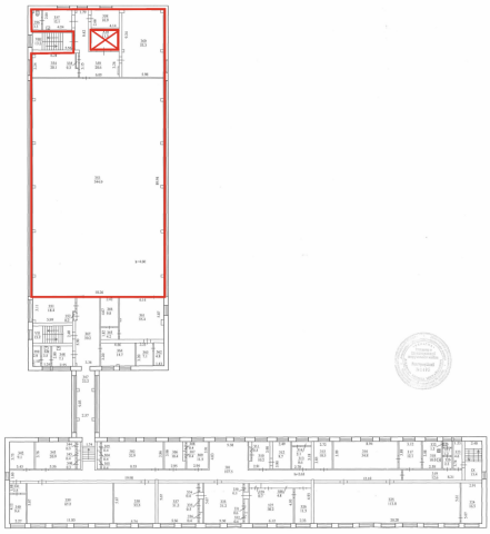
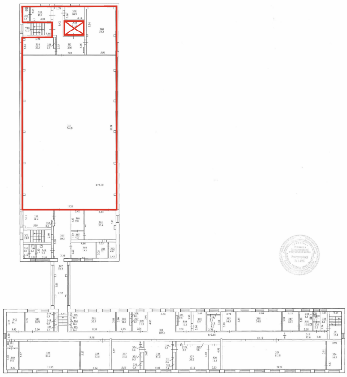
Стислий опис майна:
Пропонується до оренди група приміщень 3-го поверху загальною площею 675,50 кв.м. Розташування: будівля знаходиться в центрі міста. Поруч знаходяться автомобільний і пішохідний потоки. Стан приміщення – потребує ремонту, підходить під для розміщення спортивного, танцювального залу, спортивної секції або дитячого центру. Можливість передачі будівлі в суборенду. Характеристики кількість поверхів – 3 Загальна площа – 3622,5 кв.м.; Площа запропонована до оренди – 675,50 кв.м. електропостачання, теплопостачання, водопостачання. земельна ділянка – 0,6030 га (договір оренди) Ресурсні податки – 4,80 грн. за 1 кв.м.
Адреса місцезнаходження майна:
Україна, Дніпропетровська обл., Жовті Води, бульвар Свободи, 39
Схожі пропозиції
21.11.2025
Довгострокова оренда! Дніпропетровська обл., м. Дніпро, вул. Князя Ярослава Мудрого, 3. Оренда – приміщення 3-го поверху площею 211,90 кв.м.(В)
17 310.11 грн
105.95 грн / м2
Приміщення
Довгострокова оренда! Дніпропетровська обл., м. Дніпро, вул. Князя Ярослава Мудрого, 3. Оренда – приміщення 3-го поверху площею 211,90 кв.м.(В)
Україна, Дніпропетровська обл., Дніпро, 49000, Дніпропетровська обл., м. Дніпро, вул. Князя Ярослава Мудрого, 3
31.12.2024
Дніпропетровська обл., м. Дніпро, вул. Січових Стрільців, 10. Оренда – приміщення 1-го поверху площею 214,10 кв.м (В)
29 481.57 грн
137.70 грн / м2
Приміщення
Дніпропетровська обл., м. Дніпро, вул. Січових Стрільців, 10. Оренда – приміщення 1-го поверху площею 214,10 кв.м (В)
Україна, Дніпропетровська обл., м. Дніпро, вул. Січових Стрільців, 10
18.03.2025
Дніпропетровська обл., м. Дніпро, вул. Пушкіна, 75А. Оренда – приміщення технічного поверху площею 66,80 кв.м (В)
6 710.06 грн
100.45 грн / м2
Приміщення
Дніпропетровська обл., м. Дніпро, вул. Пушкіна, 75А. Оренда – приміщення технічного поверху площею 66,80 кв.м (В)
Україна, Дніпропетровська обл., м. Дніпро, вул. Пушкіна, 75А
01.03.2024
Дніпропетровська обл, смт. Петриківка, пр. Петра Калнишевського, 52.Оренда – приміщення 1-го поверху загальною площею 102,60 кв.м (В)
7 202.52 грн
70.20 грн / м2
Приміщення
Дніпропетровська обл, смт. Петриківка, пр. Петра Калнишевського, 52.Оренда – приміщення 1-го поверху загальною площею 102,60 кв.м (В)
Україна, Дніпропетровська обл., смт. Петриківка, пр. Петра Калнишевського, 52
Переглянуті пропозиції
16.07.2025
м. Харків, вул. Старошишківська,5а. Оренда – приміщення 1-го поверху площею 36,0 кв.м (В)
1 598.76 грн
44.41 грн / м2
Приміщення
м. Харків, вул. Старошишківська,5а. Оренда – приміщення 1-го поверху площею 36,0 кв.м (В)
Україна, Харківська обл., м. Харків, вул. Старошишківська,5а
03.06.2025
м. Харків, Салтівське шосе, 2. Оренда – приміщення 2-го поверху, площею 343,7 кв.м (В)
10 654.70 грн
31.00 грн / м2
Приміщення
м. Харків, Салтівське шосе, 2. Оренда – приміщення 2-го поверху, площею 343,7 кв.м (В)
Україна, Харківська обл., м. Харків, Салтівське шосе, 2