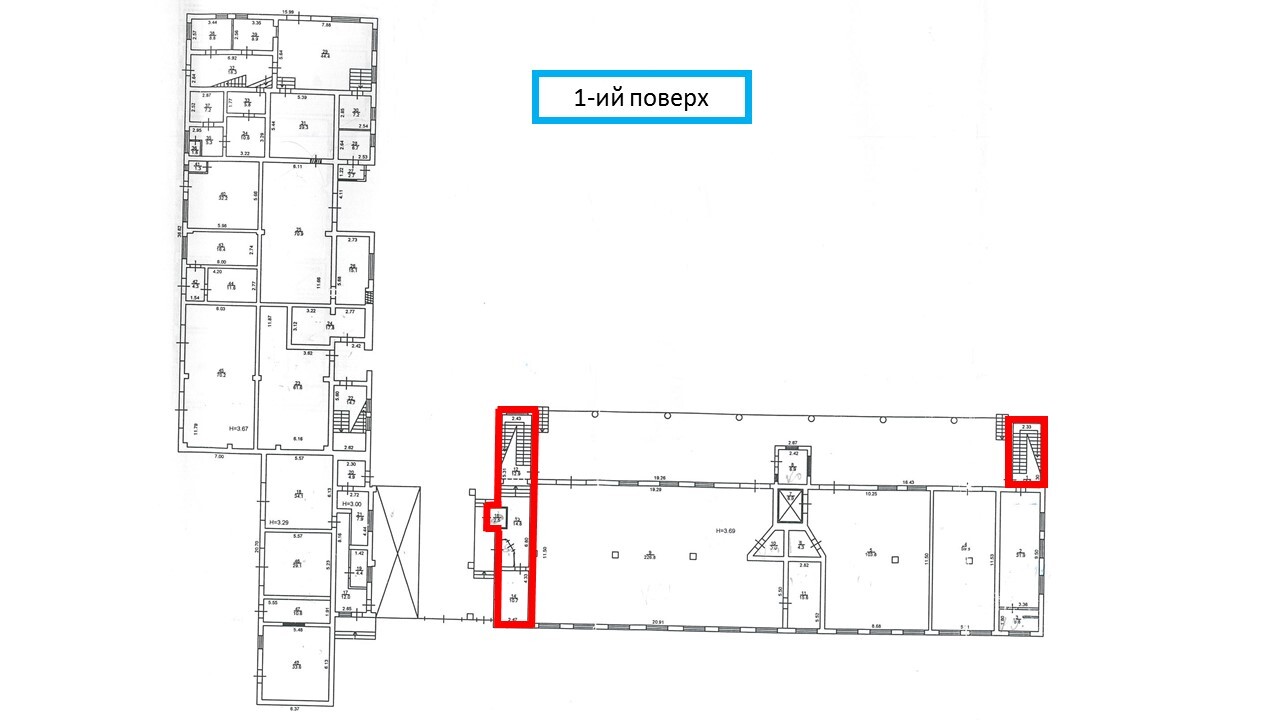
Івано-Франківська обл., м. Івано-Франківськ, вул. Ребета, 2. Оренда – Приміщення 2-го та 3-го поверху адміністративно-складської будівлі, площею 1518,30 кв.м. (В)

91 098.00 грн
60.00 грн / м2
Україна, Івано-Франківська обл., Івано-Франківськ, Івано-Франківськ, вул. Ребета, 2
Перейти до аукціону на сайті
  • Інформація
  • Опис
  • Документи
Дата оголошення пропозиції:
16 червня 2025
Площа:
1518.30 м2
Тип об’єкта:
Приміщення
Тип аукціону:
Англійський аукціон
Статус аукціону:
Аукціон не відбувся
Тип угоди:
Оренда
Розмір мінімального кроку:
1 000.00 ₴
Розмір гарантійного внеску:
54 658.80 ₴
Початок прийому пропозицій:
16.06.2025 08:49:17
Завершення прийому пропозицій:
16.07.2025 20:00:00
Проведення аукціону:
17.07.2025 12:25:00
Лот:
CLE001-UA-20250616-14038
№ лоту (УТК):
UTK060721_12U
Лот виставляється на торги (раз):
2
Стислий опис майна:
Пропонуються до оренди приміщення 2-го та 3-го поверху адміністративно-складської будівлі, площею 1518,30 кв.м. Будівля знаходиться на околиці міста в промисловій зоні, розвинена інфраструктура, поруч склади, товарні бази, виробничі цехи. Приміщення можуть використовуватись під склад, виробництво, тощо. • кількість поверхів – 3; • опалення газове; • земельна ділянка – 0,6744 га (договір оренди).
Адреса місцезнаходження майна:
Україна, Івано-Франківська обл., Івано-Франківськ, Івано-Франківськ, вул. Ребета, 2
Схожі пропозиції
16.05.2023
Івано-Франківська обл., Калуський район, смт. Рожнятів, площа Єдності, 9, оренда – Приміщення 3-го поверху площею 109,6 м.кв. (В)
500.87 грн
4.57 грн / м2
Приміщення
Івано-Франківська обл., Калуський район, смт. Рожнятів, площа Єдності, 9, оренда – Приміщення 3-го поверху площею 109,6 м.кв. (В)
Україна, Івано-Франківська обл., Рожнятів, площа Єдності, 9
м. Івано-Франківськ, вул. В.Симоненка, 1. Оренда – приміщення 1-го поверху площею 45,0 кв.м(В)
1 078.20 грн
23.96 грн / м2
Приміщення
м. Івано-Франківськ, вул. В.Симоненка, 1. Оренда – приміщення 1-го поверху площею 45,0 кв.м(В)
Україна, Івано-Франківська обл., Івано-Франківськ, вул. В.Симоненка, 1
16.09.2025
 Івано-Франківська обл., Коломийський р-н, м.Городенка, вул. Будівельна, 1а. Оренда –нежитлова будівля, площею 388,0 кв.м.(В)
15 062.16 грн
38.82 грн / м2
Приміщення
Івано-Франківська обл., Коломийський р-н, м.Городенка, вул. Будівельна, 1а. Оренда –нежитлова будівля, площею 388,0 кв.м.(В)
Україна, Івано-Франківська обл., Городенка, вулиця Будівельна 1а
08.10.2025
м. Івано-Франківськ, вул. Довга, 58. Оренда – приміщення підвалу виробничого будинку, площею 57,6 кв.м. (В)
4 298.11 грн
74.62 грн / м2
Приміщення
м. Івано-Франківськ, вул. Довга, 58. Оренда – приміщення підвалу виробничого будинку, площею 57,6 кв.м. (В)
Україна, Івано-Франківська обл., м. Івано-Франківськ, вул. Довга, 58