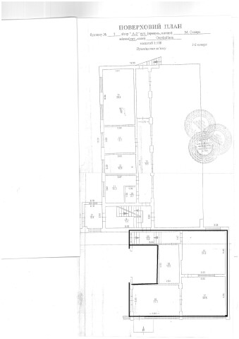
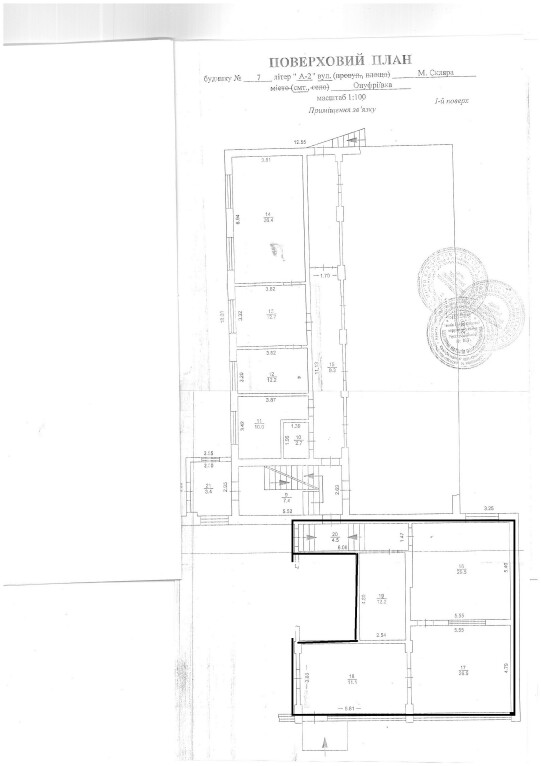
Кіровоградська обл., смт Онуфріївка, вул. М. Скляра, 7. Оренда – приміщення 1-го та 2-го поверху площею 312,80 кв.м.(В)

3 753.60 грн
12.00 грн / м2
Україна, Кіровоградська обл., смт Онуфріївка, вул. М. Скляра, 7
Перейти до аукціону на сайті
  • Інформація
  • Опис
  • Документи
Дата оголошення пропозиції:
16 червня 2025
Площа:
312.80 м2
Тип об’єкта:
Приміщення
Тип аукціону:
Англійський аукціон
Статус аукціону:
Аукціон не відбувся
Тип угоди:
Оренда
Розмір мінімального кроку:
40.00 ₴
Розмір гарантійного внеску:
2 252.16 ₴
Початок прийому пропозицій:
16.06.2025 10:30:48
Завершення прийому пропозицій:
17.07.2025 20:00:00
Проведення аукціону:
18.07.2025 12:15:00
Лот:
CLE001-UA-20250616-38547
№ лоту (УТК):
UTK130921_06P
Лот виставляється на торги (раз):
10
Стислий опис майна:
Пропонується до оренди приміщення 1-го та 2-го поверху площею 312,80кв.м. Розташування - будівля знаходиться у центральній частині селища. Поруч знаходяться віділення банка, продуктові магазини, високий автомобільний і пішохідний потоки. Стан приміщення не задовільний, підходить для магазину, офісу, склад. Ідеальне місце під розвиток будь-якого бізнесу. Можливість передачі приміщень в суборенду. Характеристики: - Кількість поверхів – 2; - Загальна площа – 524,10 кв.м.; - Площа запропонована до оренди – 312,80 кв.м.; - Електропостачання; - Земельна ділянка – 0,0721 га (договір оренди)
Адреса місцезнаходження майна:
Україна, Кіровоградська обл., смт Онуфріївка, вул. М. Скляра, 7
Схожі пропозиції
06.06.2025
Кіровоградська обл., смт Новоархангельск, вул. Центральна, 22/25. Оренда – приміщенння 3-го поверху площею 128,20 кв.м.(В)
1 538.40 грн
12.00 грн / м2
Приміщення
Кіровоградська обл., смт Новоархангельск, вул. Центральна, 22/25. Оренда – приміщенння 3-го поверху площею 128,20 кв.м.(В)
Україна, Кіровоградська обл., Новоархангельск, Новоархангельск, вул. Центральна, 22/25
Кіровоградська обл., смт. Устинівка, вул. Гагаріна, 2. Оренда – приміщення 1-го поверху площею 112,3 кв.м.
1 149.95 грн
10.24 грн / м2
Приміщення
Кіровоградська обл., смт. Устинівка, вул. Гагаріна, 2. Оренда – приміщення 1-го поверху площею 112,3 кв.м.
Україна, Кіровоградська обл., смт. Устинівка, вул. Гагаріна, 2
м. Кропивницький, вул. Степняка Кравчинського, 8. Оренда – приміщень 1-го та 2-го поверху комплексу будівель площею 854,50 кв. м (В)
39 477.90 грн
46.20 грн / м2
Приміщення
м. Кропивницький, вул. Степняка Кравчинського, 8. Оренда – приміщень 1-го та 2-го поверху комплексу будівель площею 854,50 кв. м (В)
Україна, Кіровоградська обл., м. Кропивницький, вул. Степняка Кравчинського, 8
02.08.2024
Кіровоградська обл., м. Олександрія, проспект Соборний, 60. Оренда – приміщення 3-го, 4-го та 5-го поверху площею 856,74 кв.м.(В)
4 506.45 грн
5.26 грн / м2
Приміщення
Кіровоградська обл., м. Олександрія, проспект Соборний, 60. Оренда – приміщення 3-го, 4-го та 5-го поверху площею 856,74 кв.м.(В)
Україна, Кіровоградська обл., м. Олександрія, проспект Соборний, 60