Дніпропетровська обл., м. Кривий Ріг, вул. Героїв АТО, 30. Оренда – приміщення 1-го поверху площею 76,90 кв. м. (В)

2 892.21 грн
37.61 грн / м2
Україна, Дніпропетровська обл., м. Кривий Ріг, вул. Героїв АТО, 30
Перейти до аукціону на сайті
  • Інформація
  • Опис
  • Документи
Дата оголошення пропозиції:
16 червня 2025
Площа:
76.90 м2
Тип об’єкта:
Приміщення
Тип аукціону:
Англійський аукціон
Статус аукціону:
Аукціон не відбувся
Тип угоди:
Оренда
Розмір мінімального кроку:
200.00 ₴
Розмір гарантійного внеску:
1 735.33 ₴
Початок прийому пропозицій:
16.06.2025 14:02:00
Завершення прийому пропозицій:
17.07.2025 20:00:00
Проведення аукціону:
18.07.2025 12:55:00
Лот:
CLE001-UA-20250616-61432
№ лоту (УТК):
UTK291124_01P
Лот виставляється на торги (раз):
6
Стислий опис майна:
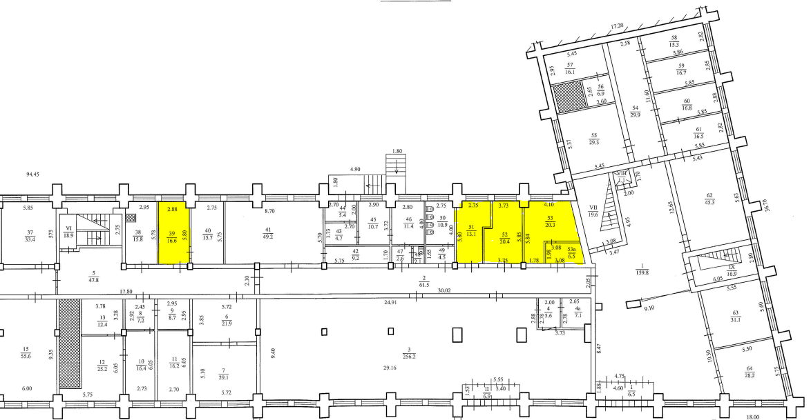
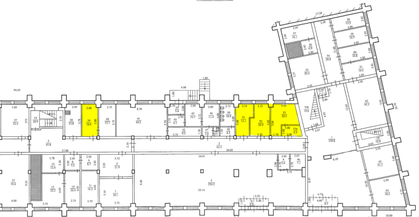
Пропонується до оренди приміщення 1-го поверху площею 76,90 кв. м (приміщення №№39,51-53,53а). Будівля знаходиться в центральному районі міста. Стан приміщення задовільний, підходить для офісу, Ідеальне місце під розвиток будь-якого бізнесу. Можливість передачі приміщень в суборенду. Характеристики: Кількість поверхів – 4-5 Загальна площа – 13040,10 кв.м. Площа запропонована до оренди – 76,90 кв. м. Електропостачання, теплопостачання, водопостачання централізоване; Площа земельної ділянки-0,4712 га (договір оренди) Ресурсні податки 8,77 грн.
Адреса місцезнаходження майна:
Україна, Дніпропетровська обл., м. Кривий Ріг, вул. Героїв АТО, 30
Схожі пропозиції
Дніпропетровська обл., м. Дніпро, вул. Князя Ярослава Мудрого, 3. Оренда – приміщення  5-го  поверху площею 18,60 кв.м. (В)
2 174.34 грн
116.90 грн / м2
Приміщення
Дніпропетровська обл., м. Дніпро, вул. Князя Ярослава Мудрого, 3. Оренда – приміщення 5-го поверху площею 18,60 кв.м. (В)
Україна, Дніпропетровська обл., м. Дніпро, вул. Князя Ярослава Мудрого, 3
26.11.2024
Дніпропетровська обл., м.Кривий Ріг, вул.Дніпропетровське шосе,48;   Оренда–приміщення 2-го поверху, площею 446,0 кв.м. (В)
6 859.48 грн
15.38 грн / м2
Приміщення
Дніпропетровська обл., м.Кривий Ріг, вул.Дніпропетровське шосе,48; Оренда–приміщення 2-го поверху, площею 446,0 кв.м. (В)
Україна, Дніпропетровська обл., Кривий Ріг, вулиця Дніпровське шосе, 48
02.08.2024
Дніпропетровська обл., м. Дніпро, вул. Чернишевського, 27. Оренда – приміщення 2-го поверху площею 154,00 кв.м. (В)
7 797.02 грн
50.63 грн / м2
Приміщення
Дніпропетровська обл., м. Дніпро, вул. Чернишевського, 27. Оренда – приміщення 2-го поверху площею 154,00 кв.м. (В)
Україна, Дніпропетровська обл., м. Дніпро, вул. Чернишевського, 27
20.04.2023
Дніпропетровська обл., м. Кривий Ріг, вул. Головка Адмірала, 71. Оренда – приміщення 2-го поверху, площею 306,9 кв.м. (В)
8 986.03 грн
29.28 грн / м2
Приміщення
Дніпропетровська обл., м. Кривий Ріг, вул. Головка Адмірала, 71. Оренда – приміщення 2-го поверху, площею 306,9 кв.м. (В)
Україна, Дніпропетровська обл., Кривий Ріг, вулиця Адмірала Головка, 71
Переглянуті пропозиції
Чернігівська обл., м. Чернігів, вул. Бєлова, 21, Оренда – приміщення будівлі АТС площею 155,35 кв.м. (П)
942.97 грн
6.07 грн / м2
Приміщення
Чернігівська обл., м. Чернігів, вул. Бєлова, 21, Оренда – приміщення будівлі АТС площею 155,35 кв.м. (П)
Україна, Чернігівська обл., Чернігів, вул. Бєлова, 21
Чернігівська обл., м. Чернігів, просп. Миру, 28. Оренда – приміщення 2-го поверху площею 90,40 кв.м. (В)
12 294.40 грн
136.00 грн / м2
Приміщення
Чернігівська обл., м. Чернігів, просп. Миру, 28. Оренда – приміщення 2-го поверху площею 90,40 кв.м. (В)
Україна, Чернігівська обл., Чернігів, просп. Миру, 28