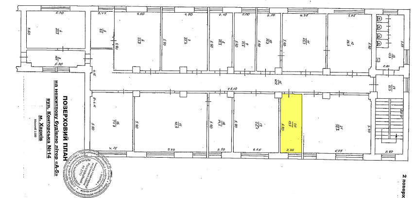
м. Харків, вул.Конторська,14. Оренда – приміщення другого поверху площею 13,7 кв.м (В)

1 274.79 грн
93.05 грн / м2
Україна, Харківська обл., Харків, вулиця Конторська, 14
Перейти до аукціону на сайті
  • Інформація
  • Опис
  • Документи
Дата оголошення пропозиції:
15 травня 2025
Площа:
13.70 м2
Тип об’єкта:
Приміщення
Тип аукціону:
Англійський аукціон
Статус аукціону:
Аукціон не відбувся
Тип угоди:
Оренда
Розмір мінімального кроку:
50.00 ₴
Розмір гарантійного внеску:
764.87 ₴
Початок прийому пропозицій:
15.05.2025 17:41:40
Завершення прийому пропозицій:
16.06.2025 20:00:00
Проведення аукціону:
17.06.2025 11:20:00
Лот:
CLE001-UA-20250515-88683
№ лоту (УТК):
UTK160525_01U
Лот виставляється на торги (раз):
1
Стислий опис майна:
Пропонується до оренди приміщення другого поверху площею 13,7 кв.м. Будівля в центрі міста Харкова. 15 хв до метро Центральний ринок. Характеристики: Кількість поверхів – 4; Загальна площа – 5611,00 кв.м_ Площа запропонована до оренди – 13,7 кв.м Дозволена потужність – 1,0 кВт Теплопостачання - відсутнє Земельна ділянка – 0,5169 га
Адреса місцезнаходження майна:
Україна, Харківська обл., Харків, вулиця Конторська, 14
Схожі пропозиції
03.06.2025
м.Харків, вул. Конторська,14. Оренда – приміщення 2-го поверху площею 14,8 кв.м (В)
518.00 грн
35.00 грн / м2
Приміщення
м.Харків, вул. Конторська,14. Оренда – приміщення 2-го поверху площею 14,8 кв.м (В)
Україна, Харківська обл., м. Харків, вул. Конторська,14
26.11.2025
ДОВГОСТРОКОВА ОРЕНДА! м. Харків, вул. Сумгаїтська, 9а.Оренда – приміщення 4-го поверху, площею 643,1 кв.м (В)
19 293.00 грн
30.00 грн / м2
Приміщення
ДОВГОСТРОКОВА ОРЕНДА! м. Харків, вул. Сумгаїтська, 9а.Оренда – приміщення 4-го поверху, площею 643,1 кв.м (В)
Україна, Харківська обл., м. Харків, вул. Сумгаїтська, 9а
01.03.2024
Харківська обл., Лозівський р-н, м. Первомайський, 3-й мікрорайон, буд.1-А. Оренда – приміщення на 1-му поверсі загальною площею 221,70 кв.м. (В)
10 331.22 грн
46.60 грн / м2
Приміщення
Харківська обл., Лозівський р-н, м. Первомайський, 3-й мікрорайон, буд.1-А. Оренда – приміщення на 1-му поверсі загальною площею 221,70 кв.м. (В)
Україна, Харківська обл., Лозівський р-н, м. Первомайський, 3-й мікрорайон, буд.1-А
21.03.2024
м. Харків, вул. Конторська,14.Оренда – приміщення 4-го поверху площею 25,8 кв.м (В)
1 787.94 грн
69.30 грн / м2
Приміщення
м. Харків, вул. Конторська,14.Оренда – приміщення 4-го поверху площею 25,8 кв.м (В)
Україна, Харківська обл., м. Харків, вул. Конторська,14
Переглянуті пропозиції
17.06.2025
м. Київ, вул. Наталії Ужвій 1 (Подільський р-н). Оренда – приміщення 3-го поверху, загальною площею – 113,20 м. кв. (В)
10 364.59 грн
91.56 грн / м2
Приміщення
м. Київ, вул. Наталії Ужвій 1 (Подільський р-н). Оренда – приміщення 3-го поверху, загальною площею – 113,20 м. кв. (В)
Україна, м.Київ, Київ, вулиця Наталії Ужвій, 1
16.07.2025
м. Харків, вул. Старошишківська,5а. Оренда – приміщення 1-го поверху площею 36,0 кв.м (В)
1 598.76 грн
44.41 грн / м2
Приміщення
м. Харків, вул. Старошишківська,5а. Оренда – приміщення 1-го поверху площею 36,0 кв.м (В)
Україна, Харківська обл., м. Харків, вул. Старошишківська,5а
03.06.2025
м. Харків, Салтівське шосе, 2. Оренда – приміщення 2-го поверху, площею 343,7 кв.м (В)
10 654.70 грн
31.00 грн / м2
Приміщення
м. Харків, Салтівське шосе, 2. Оренда – приміщення 2-го поверху, площею 343,7 кв.м (В)
Україна, Харківська обл., м. Харків, Салтівське шосе, 2