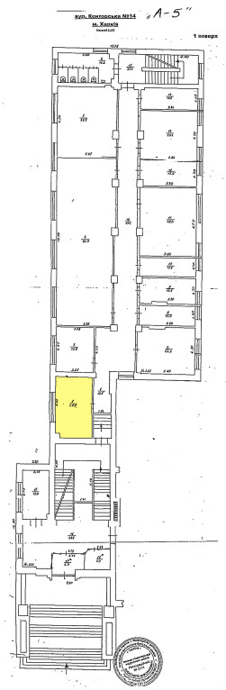
м. Харків, вул.Конторська,14. Оренда – приміщення першого поверху площею 20,9 кв.м (В)

1 944.75 грн
93.05 грн / м2
Україна, Харківська обл., Харків, вулиця Конторська, 14
Перейти до аукціону на сайті
  • Інформація
  • Опис
  • Документи
Дата оголошення пропозиції:
15 травня 2025
Площа:
20.90 м2
Тип об’єкта:
Приміщення
Тип аукціону:
Англійський аукціон
Статус аукціону:
Аукціон не відбувся
Тип угоди:
Оренда
Розмір мінімального кроку:
50.00 ₴
Розмір гарантійного внеску:
1 166.85 ₴
Початок прийому пропозицій:
15.05.2025 17:55:50
Завершення прийому пропозицій:
16.06.2025 20:00:00
Проведення аукціону:
17.06.2025 12:25:00
Лот:
CLE001-UA-20250515-65083
№ лоту (УТК):
UTK160525_03U
Лот виставляється на торги (раз):
1
Стислий опис майна:
Пропонується до оренди приміщення першого поверху площею 20,9 кв.м. Будівля в центрі міста Харкова. 15 хв до метро Центральний ринок. Характеристики: Кількість поверхів – 4; Загальна площа – 5611,00 кв.м_ Площа запропонована до оренди – 20,9 кв.м Дозволена потужність – 1,0 кВт Теплопостачання - відсутнє Земельна ділянка – 0,5169 га
Адреса місцезнаходження майна:
Україна, Харківська обл., Харків, вулиця Конторська, 14
Схожі пропозиції
Харківська обл., Ізюмський р-н, смт. Донець, вул. Центральна, 42. Оренда – приміщення 1-го поверху будівлі “А-2” площею 127,40 кв.м. (В)
5 766.12 грн
45.26 грн / м2
Приміщення
Харківська обл., Ізюмський р-н, смт. Донець, вул. Центральна, 42. Оренда – приміщення 1-го поверху будівлі “А-2” площею 127,40 кв.м. (В)
Україна, Харківська обл., Ізюмський р-н, смт. Донець, вул. Центральна, 42
21.01.2025
м. Харків, вул.Сумгаїтська, 9а. Оренда – приміщення 1-го поверху, площею 67,1 кв.м  (В)
5 749.13 грн
85.68 грн / м2
Приміщення
м. Харків, вул.Сумгаїтська, 9а. Оренда – приміщення 1-го поверху, площею 67,1 кв.м (В)
Україна, Харківська обл., м. Харків, вул. Сумгаїтська, 9а
24.06.2025
м. Харків, вул.Конторська,14 Оренда – приміщення цокольного поверху площею 219,7 кв.м (В)
17 376.07 грн
79.09 грн / м2
Приміщення
м. Харків, вул.Конторська,14 Оренда – приміщення цокольного поверху площею 219,7 кв.м (В)
Україна, Харківська обл., Харків, вулиця Конторська, 14
Харківська обл., м. Балаклія, провул. Серпуховський, 1А.Оренда – приміщення 2-го поверху площею 107,00 кв.м. (В)
2 439.60 грн
22.80 грн / м2
Приміщення
Харківська обл., м. Балаклія, провул. Серпуховський, 1А.Оренда – приміщення 2-го поверху площею 107,00 кв.м. (В)
Україна, Харківська обл., Балаклія, провул. Серпуховський, 1А