м. Київ, вул. Миколи Голего, 8. Оренда – приміщення 1-го поверху площею 30,90 кв.м (В)

3 598.00 грн
116.44 грн / м2
Україна, м.Київ, Київ, вулиця Миколи Голего, 8
Перейти до аукціону на сайті
  • Інформація
  • Опис
  • Документи
Дата оголошення пропозиції:
17 червня 2025
Площа:
30.90 м2
Тип об’єкта:
Приміщення
Тип аукціону:
Англійський аукціон
Статус аукціону:
Аукціон не відбувся
Тип угоди:
Оренда
Розмір мінімального кроку:
100.00 ₴
Розмір гарантійного внеску:
2 158.80 ₴
Початок прийому пропозицій:
17.06.2025 14:51:12
Завершення прийому пропозицій:
21.07.2025 20:00:00
Проведення аукціону:
22.07.2025 12:40:00
Лот:
CLE001-UA-20250617-17756
№ лоту (УТК):
UTK280225_63U
Лот виставляється на торги (раз):
4
Стислий опис майна:
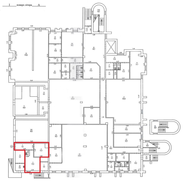
Пропонуються до оренди приміщення 1-го поверху площею 30,90 кв.м.. Розташування будівлі: у Солом'янському районі міста Києва, місцевість Караваєві дачі. Поруч розвинена інфраструктура, зупинки маршрутного транспорту, магазини, кафе, аптеки, середній автомобільний і пішохідний потоки. Доступ 24/7. Характеристики • загальна площа будівлі – 5639,80 м2 ; • сан. вузол, каналізація, водопостачання – присутне; • кількість поверхів – 4; • енергетична потужність – 3 кВт; • опалення централізоване (міське); • площа земельної ділянки – 0,3625 га.
Адреса місцезнаходження майна:
Україна, м.Київ, Київ, вулиця Миколи Голего, 8
Схожі пропозиції
17.06.2025
м. Київ, вул. Наталії Ужвій, 1 (Подільський р-н). Оренда – приміщення 2-го поверху, загальною площею – 78,90 м. кв. (В)
7 224.08 грн
91.56 грн / м2
Приміщення
м. Київ, вул. Наталії Ужвій, 1 (Подільський р-н). Оренда – приміщення 2-го поверху, загальною площею – 78,90 м. кв. (В)
Україна, м.Київ, Київ, вулиця Наталії Ужвій, 1
06.04.2023
м. Київ, вул. Василя Макуха (Івана Шевцова), 5 Оренда – приміщення 1-го поверху будівлі, площею 401,5 м2 (В)
87 787.98 грн
218.65 грн / м2
Приміщення
м. Київ, вул. Василя Макуха (Івана Шевцова), 5 Оренда – приміщення 1-го поверху будівлі, площею 401,5 м2 (В)
Україна, м.Київ, м. Київ, вулиця Василя Макуха (Івана Шевцова), 5
22.01.2025
ДОВГОСТРОКОВА ОРЕНДА!  м. Київ, вул. Петра Курінного, 2-Б;  Оренда – приміщення 3-го поверху площею - 614,80 кв.м. (В)
86 815.90 грн
141.21 грн / м2
Приміщення
ДОВГОСТРОКОВА ОРЕНДА! м. Київ, вул. Петра Курінного, 2-Б; Оренда – приміщення 3-го поверху площею - 614,80 кв.м. (В)
Україна, м.Київ, Київ, вулиця Петра Курінного, 2-Б
16.08.2022
м. Київ, вул. Володимирська, 10 Оренда – Приміщення 1-го поверху, площею 201,1 м2 (В)
43 236.50 грн
215.00 грн / м2
Приміщення
м. Київ, вул. Володимирська, 10 Оренда – Приміщення 1-го поверху, площею 201,1 м2 (В)
Україна, м.Київ, Київ, вул. Володимирська, 10
Переглянуті пропозиції
26.11.2025
Полтавська обл., Кременчуцький р-н, с. Великі Кринки, вулиця Полтавська, 29. Оренда – приміщення 1-го поверху загальною площею 49,50 кв.м (В)
594.00 грн
12.00 грн / м2
Приміщення
Полтавська обл., Кременчуцький р-н, с. Великі Кринки, вулиця Полтавська, 29. Оренда – приміщення 1-го поверху загальною площею 49,50 кв.м (В)
Україна, Полтавська обл., Кременчуцький р-н, с. Великі Кринки, вул. Полтавська, 29
20.02.2024
м. Київ, вул. Антоновича, 40;  Оренда–Будівля, площею 253,0 кв.м. (В)
55 670.12 грн
220.04 грн / м2
Приміщення
м. Київ, вул. Антоновича, 40; Оренда–Будівля, площею 253,0 кв.м. (В)
Україна, м.Київ, Київ, вул. Антоновича, 40