Рівненська обл., м. Рівне вул. В. Чорновола, 1. Оренда – підвальні приміщення загальною площею 261,7 м.кв. (В)

15 702.00 грн
60.00 грн / м2
Україна, Рівненська обл., м. Рівне, вул. В. Чорновола, 1
Перейти до аукціону на сайті
  • Інформація
  • Опис
  • Документи
Дата оголошення пропозиції:
20 червня 2025
Площа:
261.70 м2
Тип об’єкта:
Приміщення
Тип аукціону:
Англійський аукціон
Статус аукціону:
Аукціон не відбувся
Тип угоди:
Оренда
Розмір мінімального кроку:
500.00 ₴
Розмір гарантійного внеску:
9 421.20 ₴
Початок прийому пропозицій:
20.06.2025 12:51:13
Завершення прийому пропозицій:
24.07.2025 20:00:00
Проведення аукціону:
25.07.2025 12:55:00
Лот:
CLE001-UA-20250620-71949
№ лоту (УТК):
UTK191121_18P
Лот виставляється на торги (раз):
10
Стислий опис майна:
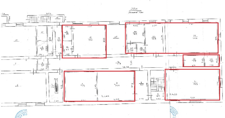
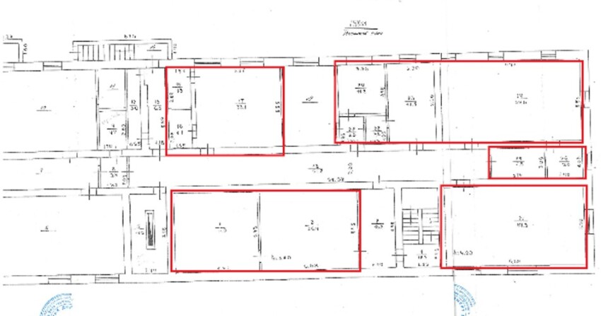
Пропонується до оренди підвальні приміщення загальною площею 261,7 м. кв. Будівля знаходиться в центральній частині міста. Розвинена інфраструктура, високі автомобільний та пішохідний потоки. Поряд центральна площа та міський парк. Приміщення потребують ремонту та реконструкції електромережі . Характеристики: Кількість поверхів – 5; Загальна площа – 2032,6 м. кв ; Площа, запропонована до оренди – загальною площею 261,7 м.кв. Опалення – централізоване; Земельна ділянка - площа 0,1652 га. (договір оренди)
Адреса місцезнаходження майна:
Україна, Рівненська обл., м. Рівне, вул. В. Чорновола, 1
Схожі пропозиції
03.04.2024
Рівненська обл., Рівненський р-н, с. Пустомити, вул. Радянська, 41. Оренда – виробничі приміщення площею 21,80 кв.м. (В)
375.18 грн
17.21 грн / м2
Приміщення
Рівненська обл., Рівненський р-н, с. Пустомити, вул. Радянська, 41. Оренда – виробничі приміщення площею 21,80 кв.м. (В)
Україна, Рівненська обл., Рівненський р-н, с. Пустомити, вул. Радянська, 41
Рівненська обл., смт. Млинів вул. Рівненська, 2. Оренда – приміщення 2-го поверху
904.80 грн
24.00 грн / м2
Приміщення
Рівненська обл., смт. Млинів вул. Рівненська, 2. Оренда – приміщення 2-го поверху
Україна, Рівненська обл., смт. Млинів , вул. Рівненська, буд. 2
Рівненська обл., м. Рівне, вул. Орлова, 37. Оренда приміщень 5-го поверху площею 662,00 кв.м.(В)
4 594.28 грн
6.94 грн / м2
Приміщення
Рівненська обл., м. Рівне, вул. Орлова, 37. Оренда приміщень 5-го поверху площею 662,00 кв.м.(В)
Україна, Рівненська обл., м. Рівне , вул. Орлова, 37
Рівненська обл., Вараський р-н. смт. Володимирець  вул. Поштова, 23. Оренда – приміщення 1-го поверху площею 52,8 кв.м. (В)
1 172.16 грн
22.20 грн / м2
Приміщення
Рівненська обл., Вараський р-н. смт. Володимирець вул. Поштова, 23. Оренда – приміщення 1-го поверху площею 52,8 кв.м. (В)
Україна, Рівненська обл., Вараський р-н. смт. Володимирець , вул. Поштова ,23
Переглянуті пропозиції
05.06.2024
Харківська обл., м. Харків, вул. Коцарська, 45, літер «А-4»;  Оренда – приміщення на 2-му поверсі загальною площею 14,30 кв.м. (В)
768.77 грн
53.76 грн / м2
Приміщення
Харківська обл., м. Харків, вул. Коцарська, 45, літер «А-4»; Оренда – приміщення на 2-му поверсі загальною площею 14,30 кв.м. (В)
Україна, Харківська обл., Харків, вулиця Коцарська, 45
20.12.2024
Полтавська обл., Кременчуцький р-н, с. Пришиб, вулиця Центральна, 12. Оренда – приміщення будівлі, загальною площею 50,20 кв.м. (В)
5 216.78 грн
103.92 грн / м2
Приміщення
Полтавська обл., Кременчуцький р-н, с. Пришиб, вулиця Центральна, 12. Оренда – приміщення будівлі, загальною площею 50,20 кв.м. (В)
Україна, Полтавська обл., Кременчуцький р-н, с. Пришиб, вулиця Центральна, 12
12.01.2024
м. Київ, бульвар Бучми Амвросія, 5;   Оренда – приміщення 3-го та 4-го поверхів технічної будівлі АТС-550 (літ. «Б»), площею 1006,83 кв.м. (В)
92 628.36 грн
92.00 грн / м2
Приміщення
м. Київ, бульвар Бучми Амвросія, 5; Оренда – приміщення 3-го та 4-го поверхів технічної будівлі АТС-550 (літ. «Б»), площею 1006,83 кв.м. (В)
Україна, м.Київ, м. Київ, вулиця Амвросія Бучми, 5 літ.Б