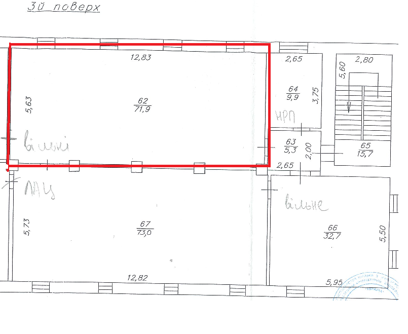
Рівненська обл., м. Дубровиця, вул. Шевченка, 53. Оренда – приміщення 3 поверху, площею 71,9 м. кв. (В)

1 658.73 грн
23.07 грн / м2
Україна, Рівненська обл., м. Дубровиця, вул. Шевченка, 53
Перейти до аукціону на сайті
  • Інформація
  • Опис
  • Документи
Дата оголошення пропозиції:
19 березня 2022
Площа:
71.90 м2
Тип об’єкта:
Приміщення
Тип аукціону:
Англійський аукціон
Статус аукціону:
Аукціон не відбувся
Тип угоди:
Оренда
Розмір мінімального кроку:
100.00 ₴
Розмір гарантійного внеску:
995.24 ₴
Початок прийому пропозицій:
19.03.2022 10:32:02
Завершення прийому пропозицій:
18.04.2022 20:00:00
Лот:
UA-PS-2022-03-19-000007-2
№ лоту (УТК):
UTK080222_11P
Лот виставляється на торги (раз):
2
Стислий опис майна:
Пропонуються до оренди приміщення 3-го поверху площею 71,9 м.кв. Будівля знаходиться в центрі міста, розвинена інфраструктура, поряд відділення Укрпошти та Ощадбанку, магазини та адміністративні приміщення. Вхід в приміщення спільний. Територія огороджена та частково впорядкована. Потребує реконструкції системи електроживлення. Характеристики: Кількість поверхів – 3; Загальна площа – 1149,3 м.кв.; Площа, запропонована до оренди – 71,9 м.кв.; Дозволена потужність – 10 кВт.; Теплопостачання – централізоване; Земельна ділянка - площа 0,1345 га.(договір оренди)
Адреса місцезнаходження майна:
Україна, Рівненська обл., м. Дубровиця, вул. Шевченка, 53
Схожі пропозиції
18.10.2022
Рівненська обл., Рівненський р-н., с. Вітковичі, вул. Ковальська, 1. Оренда – частина приміщення одноповерхової будівлі, площею 10,8 кв.м. (В)
500.04 грн
46.30 грн / м2
Приміщення
Рівненська обл., Рівненський р-н., с. Вітковичі, вул. Ковальська, 1. Оренда – частина приміщення одноповерхової будівлі, площею 10,8 кв.м. (В)
Україна, Рівненська обл., Рівненський р-н., с. Вітковичі, вул. Ковальська, 1
17.05.2023
Рівненська обл., смт. Володимирець вул. Поштова ,23. Оренда – приміщення 1-го поверху загальною площею 80,5 м.кв. (В)
1 787.10 грн
22.20 грн / м2
Приміщення
Рівненська обл., смт. Володимирець вул. Поштова ,23. Оренда – приміщення 1-го поверху загальною площею 80,5 м.кв. (В)
Україна, Рівненська обл., смт. Володимирець, вул. Поштова ,23
28.02.2025
Рівненська обл., Рівненський р-н, с. Олександрія, вулиця Свято-Преображенська, 64 . Оренда – нежитлові приміщення 1 –го та 2 –го поверху загальною площею 433,6 кв. м. (В)
5 203.20 грн
12.00 грн / м2
Приміщення
Рівненська обл., Рівненський р-н, с. Олександрія, вулиця Свято-Преображенська, 64 . Оренда – нежитлові приміщення 1 –го та 2 –го поверху загальною площею 433,6 кв. м. (В)
Україна, Рівненська обл., Рівненський р-н, с. Олександрія, вулиця Свято-Преображенська, 64
30.07.2024
Рівненська обл., Рівненський р-н., м. Здолбунів, вул. Б.Хмельницького, 7. Оренда – приміщення підвалу, 2 поверху та надвірної будівлі загальною площею 661,4 кв.м. (В)
8 928.90 грн
13.50 грн / м2
Приміщення
Рівненська обл., Рівненський р-н., м. Здолбунів, вул. Б.Хмельницького, 7. Оренда – приміщення підвалу, 2 поверху та надвірної будівлі загальною площею 661,4 кв.м. (В)
Україна, Рівненська обл., Рівненський р-н., м. Здолбунів, вул. Б.Хмельницького, 7
Переглянуті пропозиції
15.07.2025
ДОВГОСТРОКОВА ОРЕНДА! Харківська обл., м. Харків, Нетіченська набережна, 8.Оренда – приміщення на 9-му поверсі загальною площею 513,50 кв.м. (В)
15 405.00 грн
30.00 грн / м2
Приміщення
ДОВГОСТРОКОВА ОРЕНДА! Харківська обл., м. Харків, Нетіченська набережна, 8.Оренда – приміщення на 9-му поверсі загальною площею 513,50 кв.м. (В)
Україна, Харківська обл., м. Харків, Нетіченська набережна, 8
10.01.2024
Чернігівська обл., Ніжинський р-н, с. Нова Басань, вул. Шевченка, 43;   Оренда – приміщення 1-го поверху площею  27,1 кв.м. (В)
501.62 грн
18.51 грн / м2
Приміщення
Чернігівська обл., Ніжинський р-н, с. Нова Басань, вул. Шевченка, 43; Оренда – приміщення 1-го поверху площею 27,1 кв.м. (В)
Україна, Чернігівська обл., Нова Басань, вул. Шевченка, 43
м. Чернігів, вул. Ринкова, 2. Оренда – приміщення 2-го поверху
11 548.16 грн
25.60 грн / м2
Приміщення
м. Чернігів, вул. Ринкова, 2. Оренда – приміщення 2-го поверху
Україна, Чернігівська обл., м. Чернігів, вул. Ринкова, буд. 2
18.04.2025
Сумська область, м. Конотоп, просп. Миру, 4. Оренда – офісне приміщення на 2-му поверсі площею 16,8 кв.м. (В)
681.74 грн
40.58 грн / м2
Офіс
Сумська область, м. Конотоп, просп. Миру, 4. Оренда – офісне приміщення на 2-му поверсі площею 16,8 кв.м. (В)
Україна, Сумська обл., м. Конотоп, просп. Миру, 4