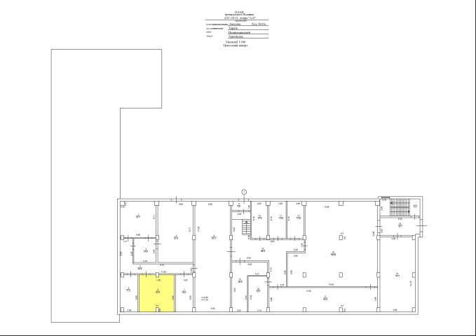
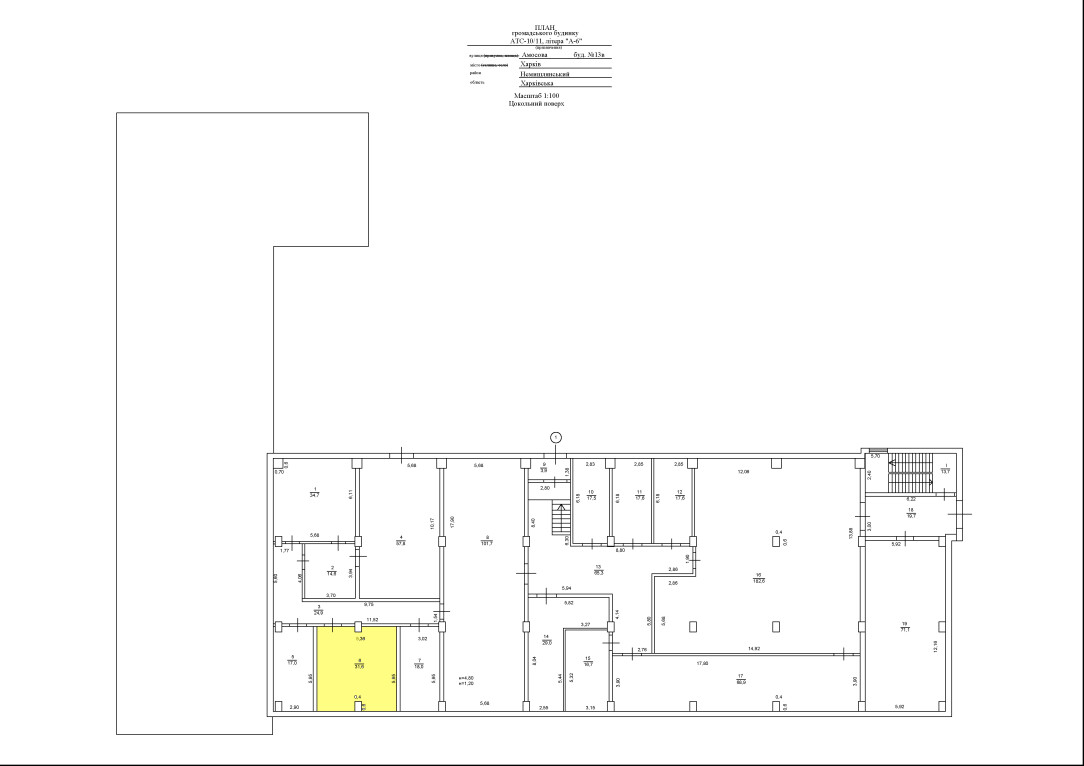
м. Харків, вул. Амосова,13 в. Оренда – приміщення цокольного поверху площею 31,60 кв.м (В)

1 206.80 грн
38.19 грн / м2
Україна, Харківська обл., м. Харків, вул. Амосова,13 в
Перейти до аукціону на сайті
  • Інформація
  • Опис
  • Документи
Дата оголошення пропозиції:
04 липня 2025
Площа:
31.60 м2
Тип об’єкта:
Приміщення
Тип аукціону:
Англійський аукціон
Статус аукціону:
Аукціон не відбувся
Тип угоди:
Оренда
Розмір мінімального кроку:
50.00 ₴
Розмір гарантійного внеску:
724.08 ₴
Початок прийому пропозицій:
04.07.2025 12:45:11
Завершення прийому пропозицій:
04.08.2025 20:00:00
Проведення аукціону:
05.08.2025 12:50:00
Лот:
CLE001-UA-20250704-20367
№ лоту (УТК):
UTK140225_01P
Лот виставляється на торги (раз):
5
Стислий опис майна:
Пропонується до оренди приміщення цокольного поверху площею 31,60 кв.м. Будівля в спальному районі міста Харкова. 10 хв до зупинки транспорту. Характеристики: Кількість поверхів – 5; Загальна площа – 4838,00 кв.м_ Площа запропонована до оренди -31,6кв.м Дозволена потужність – 1,5 кВт Теплопостачання-централізоване Земельна ділянка – 0,4825 га
Адреса місцезнаходження майна:
Україна, Харківська обл., м. Харків, вул. Амосова,13 в
Схожі пропозиції
12.07.2024
м. Харків, вул. Конторська,14.Оренда – приміщення 4-го поверху площею 16,6 кв.м (В)
1 150.38 грн
69.30 грн / м2
Приміщення
м. Харків, вул. Конторська,14.Оренда – приміщення 4-го поверху площею 16,6 кв.м (В)
Україна, Харківська обл., м. Харків, вул. Конторська,14
02.04.2024
Харківська обл., м. Барвінкове, вул. Центральна, 68;   Оренда – приміщення на 1-му поверсі, площею 75,4 кв.м. (В)
527.80 грн
7.00 грн / м2
Приміщення
Харківська обл., м. Барвінкове, вул. Центральна, 68; Оренда – приміщення на 1-му поверсі, площею 75,4 кв.м. (В)
Україна, Харківська обл., Барвінкове, вул. Центральна, 68
02.09.2025
Харківська обл., м. Харків, вул. Коцарська, 45, літер «А-4». Оренда – приміщення на 2-му поверсі загальною площею 48,70 кв.м. (В)
1 461.00 грн
30.00 грн / м2
Приміщення
Харківська обл., м. Харків, вул. Коцарська, 45, літер «А-4». Оренда – приміщення на 2-му поверсі загальною площею 48,70 кв.м. (В)
Україна, Харківська обл., Харків, м. Харків, вул. Коцарська, 45, літер «А-4»
27.09.2024
м. Харків, пр-т Г.Сталінграду, 3. Оренда –  приміщення 4-го поверху площею 684,80 кв.м (В)
37 390.08 грн
54.60 грн / м2
Приміщення
м. Харків, пр-т Г.Сталінграду, 3. Оренда – приміщення 4-го поверху площею 684,80 кв.м (В)
Україна, Харківська обл., м. Харків, пр-т Г.Сталінграду, 3