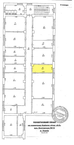
м.Харків, вул. Конторська,14 в. Оренда – приміщення 2-го поверху площею 14,5 кв.м (В)

674.69 грн
46.53 грн / м2
Україна, Харківська обл., м. Харків, вул. Конторська,14
Перейти до аукціону на сайті
  • Інформація
  • Опис
  • Документи
Дата оголошення пропозиції:
25 липня 2025
Площа:
14.50 м2
Тип об’єкта:
Приміщення
Тип аукціону:
Англійський аукціон
Статус аукціону:
Аукціон не відбувся
Тип угоди:
Оренда
Розмір мінімального кроку:
50.00 ₴
Розмір гарантійного внеску:
404.81 ₴
Початок прийому пропозицій:
25.07.2025 12:25:11
Завершення прийому пропозицій:
25.08.2025 20:00:00
Проведення аукціону:
26.08.2025 11:55:00
Лот:
CLE001-UA-20250725-19990
№ лоту (УТК):
UTK210225_11P
Лот виставляється на торги (раз):
5
Стислий опис майна:
Пропонується до оренди приміщення 2-го поверху площею 14,5 кв.м. Будівля в центрі міста Харкова. 15 хв до метро Центральний ринок. Характеристики: Кількість поверхів – 4; Загальна площа – 5611,00 кв.м_ Площа запропонована до оренди – 42,9 кв.м Дозволена потужність – 1,5 кВт Теплопостачання - відсутнє Земельна ділянка – 0,5169 га
Адреса місцезнаходження майна:
Україна, Харківська обл., м. Харків, вул. Конторська,14
Схожі пропозиції
19.12.2023
Харківська обл., Богодухівський р-н, м. Богодухів, пл. Поштова, 5. Оренда – приміщення 1-го поверху площею 86,80 кв.м. (В)
3 958.08 грн
45.60 грн / м2
Приміщення
Харківська обл., Богодухівський р-н, м. Богодухів, пл. Поштова, 5. Оренда – приміщення 1-го поверху площею 86,80 кв.м. (В)
Україна, Харківська обл., Богодухівський р-н, м. Богодухів, пл. Поштова, 5
30.04.2025
м. Харків, вул. Старошишківська,5а. Оренда – приміщення 1-го поверху площею 8,7 кв.м (В)
547.40 грн
62.92 грн / м2
Приміщення
м. Харків, вул. Старошишківська,5а. Оренда – приміщення 1-го поверху площею 8,7 кв.м (В)
Україна, Харківська обл., м. Харків, вул. Старошишківська,5а
Харківська обл., м. Харків, просп. Олександрівський, 83. Оренда – приміщення гаражу
508.42 грн
15.36 грн / м2
Приміщення
Харківська обл., м. Харків, просп. Олександрівський, 83. Оренда – приміщення гаражу
Україна, Харківська обл., м. Харків, просп. Олександрівський, 83
22.04.2025
Харківська обл., смт. Великий Бурлук, вул. Центральна, 5. Оренда – приміщення на 1-му поверсі площею 52,7 кв.м. (В)
632.40 грн
12.00 грн / м2
Приміщення
Харківська обл., смт. Великий Бурлук, вул. Центральна, 5. Оренда – приміщення на 1-му поверсі площею 52,7 кв.м. (В)
Україна, Харківська обл., смт. Великий Бурлук, вул. Центральна, 5