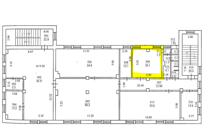
Дніпропетровська обл., м. Кам’янське, просп. Свободи, 44. Оренда – приміщення 5-го поверху загальною площею 26,10 кв.м (В)

522.00 грн
20.00 грн / м2
Україна, Дніпропетровська обл., м. Кам’янське, просп. Свободи, 44
Перейти до аукціону на сайті
  • Інформація
  • Опис
  • Документи
Дата оголошення пропозиції:
04 серпня 2025
Площа:
26.10 м2
Тип об’єкта:
Приміщення
Тип аукціону:
Англійський аукціон
Статус аукціону:
Аукціон не відбувся
Тип угоди:
Оренда
Розмір мінімального кроку:
100.00 ₴
Розмір гарантійного внеску:
313.20 ₴
Початок прийому пропозицій:
04.08.2025 16:17:27
Завершення прийому пропозицій:
02.09.2025 20:00:00
Проведення аукціону:
03.09.2025 12:50:00
Лот:
CLE001-UA-20250804-85150
№ лоту (УТК):
UTK230224_14P
Лот виставляється на торги (раз):
10
Стислий опис майна:
Пропонується до оренди приміщення 5-го поверху площею 26,10 кв.м (прим.№509). Будівля в центрі міста. Поруч знаходяться об’єкти соціальної інфраструктури: відділення пошти та банку, клініка, магазини, ринок тощо. Стан приміщення задовільний, підходить для офісу, ідеальне місце під розвиток будь-якого бізнесу. Зручна транспортна розв’язка та інфраструктура. Характеристики: Кількість поверхів – 5 Загальна площа – 2506,00 кв.м Площа запропонована до оренди – 26,10 кв.м Електропостачання, водопостачання, теплопостачання Земельна ділянка – 0,2324 га (договір оренди) Ресурсні податки – 2,68 грн за 1 кв.м
Адреса місцезнаходження майна:
Україна, Дніпропетровська обл., м. Кам’янське, просп. Свободи, 44
Схожі пропозиції
23.01.2024
Дніпропетровська обл., м. Синельникове, вул. Богми, 4;  Оренда – приміщення 2-го поверху, площею 213,5 кв.м. (В)
2 307.94 грн
10.81 грн / м2
Приміщення
Дніпропетровська обл., м. Синельникове, вул. Богми, 4; Оренда – приміщення 2-го поверху, площею 213,5 кв.м. (В)
Україна, Дніпропетровська обл., м. Синельникове, вулиця Богми, 4
21.04.2023
Дніпропетровська обл., м. Дніпро, пр. Богдана Хмельницького, 28а. Оренда – приміщення підвалу, 2-го, 3-го та 4-го поверхів, загальною площею 1910,90 кв.м. (В)
88 283.58 грн
46.20 грн / м2
Приміщення
Дніпропетровська обл., м. Дніпро, пр. Богдана Хмельницького, 28а. Оренда – приміщення підвалу, 2-го, 3-го та 4-го поверхів, загальною площею 1910,90 кв.м. (В)
Україна, Дніпропетровська обл., м. Дніпро, пр. Богдана Хмельницького, 28а
26.11.2024
Дніпропетровська обл., м. Дніпро, вул. Січових Стрільців, 10. Оренда – приміщення 1-го поверху площею 214,10 кв.м (В)
29 481.57 грн
137.70 грн / м2
Приміщення
Дніпропетровська обл., м. Дніпро, вул. Січових Стрільців, 10. Оренда – приміщення 1-го поверху площею 214,10 кв.м (В)
Україна, Дніпропетровська обл., м. Дніпро, вул. Січових Стрільців, 10
02.04.2024
Дніпропетровська обл., м. Дніпро, вул. Чернишевського, 27.Оренда – приміщення 2-го поверху площею 38,30 кв.м (В)
3 878.26 грн
101.26 грн / м2
Приміщення
Дніпропетровська обл., м. Дніпро, вул. Чернишевського, 27.Оренда – приміщення 2-го поверху площею 38,30 кв.м (В)
Україна, Дніпропетровська обл., м. Дніпро, вул. Чернишевського, 27